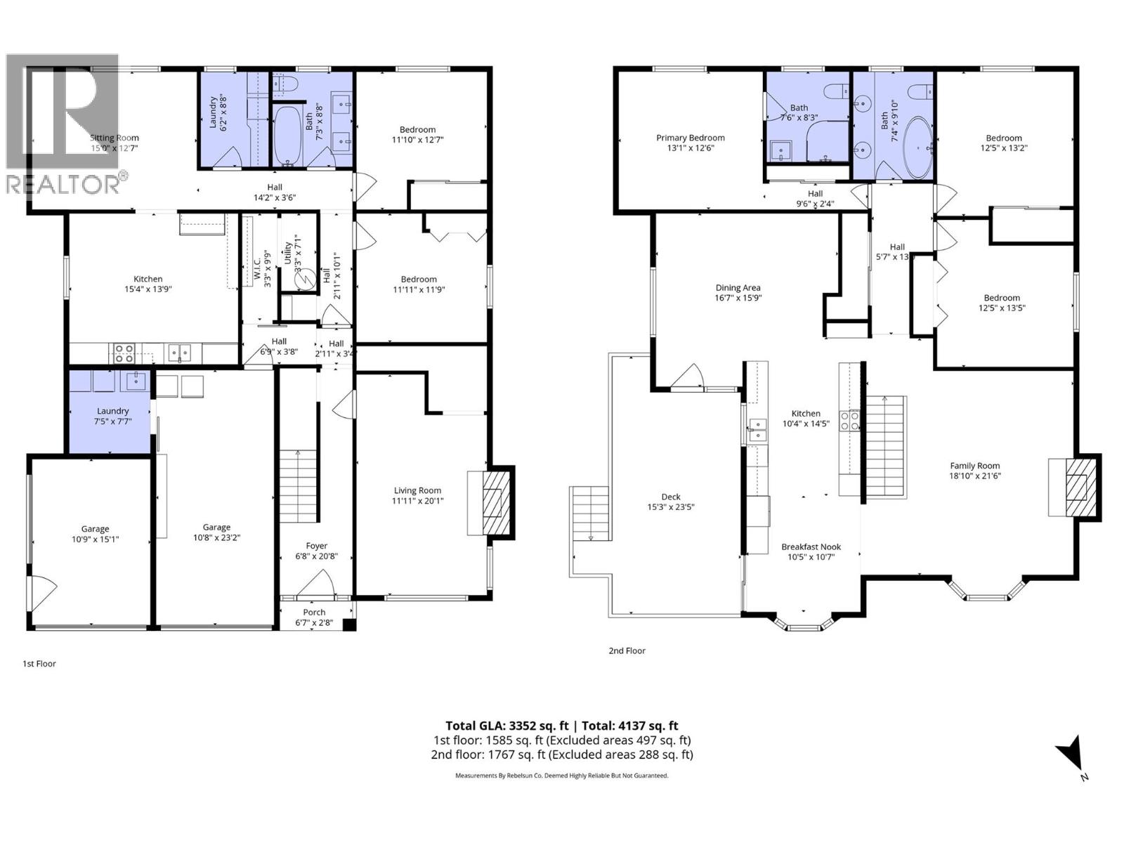
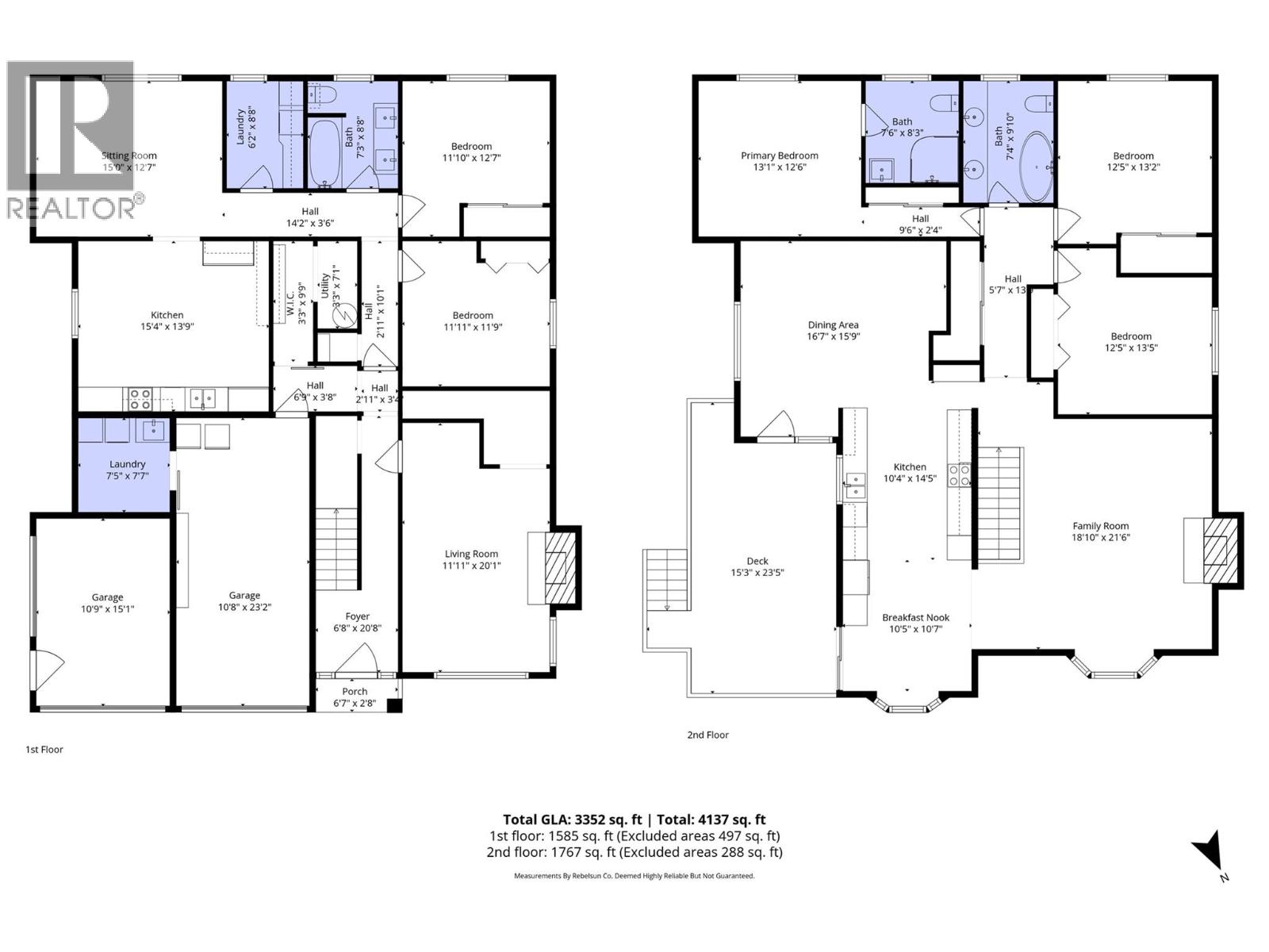
Exceptional opportunity for multi-generational living or investment, this substantially updated 3,380 sq ft home offers space, privacy, & a fully self-contained 2 BR suite. With 5 bedrooms and expansive living areas, the layout allows families to live together, yet separately, making it ideal for in-laws/tenants downstairs while the main family enjoys the upper level & Fam rm down. The main home features a bright open kitchen and dining area, both w/ access onto the deck, large living & family rooms, a spacious primary bedroom with 3-piece ensuite, and a 4-piece main bath. The suite has 2 bedrooms, a 5-piece bathroom & its own laundry room w/ sink. Substantially renovated 2021 through 2025, upgrades include a new kitchens, flooring, bathroom improvements, wiring /some plumbing upgrades & a new laundry room. The home is move-in ready & includes all appliances for both the main home and suite, plus water softener. Cozy wood-burning fireplaces are featured up and down, plus a wood stove insert in the basement family room. Outside, enjoy a fully landscaped/fenced private backyard, new sundeck, irrigated raised garden beds, insulated/wired 9x12 storage shed, and a charming fish pond w/ new liner & pump in the front yard. A large double garage provides excellent parking and workshop space. Efficient on-demand hot water heating supplies both heat and hot water in one system. A rare and versatile property offering comfort, independence, and long-term investment value. (id:47421)
Interested in obtaining the full price history for this property? Contact us!Contact us! Our real estate professionals would be happy to provide a complete listing history with historical sold prices and dates.
Detailed Information
Bedrooms
5
Bathrooms
3
Amenities Nearby
Park, Schools
Community Features
Family Oriented
Features
Level lot
Listing Contract Date
2026-01-05
Municipal ID
002-997-029
Ownership Type
Freehold
# of Parking Spaces
6
Property Type
Single Family
Storage
Storage Shed
Transaction Type
For sale
Building
Appliances
Oven - Built-In
Constructed Date
1986
Construction Style (Attachment)
Detached
Exterior Finish
Brick, Vinyl siding
Fireplace Fuel
Wood
Fireplace Present
Yes
# of Fireplaces
2
Fireplace Type
Conventional
Flooring Type
Laminate, Vinyl
Heating Type
Baseboard heaters, Hot Water, See remarks
Roof Material
Asphalt shingle
Roof Style
Unknown
Stories Total
2
Type
House
Utility Water
Municipal water
Rooms
Room
Level
Dimensions
Notes
Utility room
Lower level
7'6'' x 7'
Laundry room
Lower level
9' x 6'
Laundry room
Lower level
10'4'' x 6'
5pc Bathroom
Lower level
9' x 7'9''
Foyer
Lower level
6'8'' x 6'6''
Bedroom
Lower level
12'4'' x 12'
Bedroom
Lower level
13'2'' x 12'
Living room
Lower level
13'6'' x 12'4''
Kitchen
Lower level
13'10'' x 13'4''
Family room
Lower level
19'6'' x 12'
Bedroom
Main level
12'6'' x 11'10''
Bedroom
Main level
13'4'' x 11'10''
3pc Ensuite bath
Main level
6'10'' x 6'
4pc Bathroom
Main level
9' x 7'8''
Primary Bedroom
Main level
13'10'' x 12'6''
Living room
Main level
20' x 16'
Dining room
Main level
17'4'' x 13'
Dining nook
Main level
10' x 10'
Kitchen
Main level
13' x 10'3''
Parking Spaces
Name
Spaces
Attached Garage
2
RV
Utilities
Type
Description
Electricity
Available
Natural Gas
Available
Telephone
Available
Sewer
Available
Water
Available
Land
Total Size
0.16 acres
Access Type
Easy access
Amenities
Park, Schools
Landscape Features
Landscaped, Level
Sewer
Municipal sewage system
Size of Irregular Land
0.16
Terms of Use
Please review and agree to the following terms of use to access the listing content:
REALTOR®, REALTORS®, and the REALTOR® logo are certification marks that are owned by REALTOR® Canada Inc. and licensed exclusively to The Canadian Real Estate Association (CREA). These certification marks identify real estate professionals who are members of CREA and who must abide by CREA's By-Laws, Rules, and the REALTOR® Code. The MLS® trademark and the MLS® logo are owned by CREA and identify the quality of services provided by real estate professionals who are members of CREA;
The information contained on this site is based in whole or in part on information that is provided by members of CREA, who are responsible for its accuracy. CREA reproduces and distributes this information as a service for its members and assumes no responsibility for its accuracy;
This website is operated by a brokerage or salesperson who is a member of CREA;
The listing content on this website is protected by copyright and other laws, and is intended solely for the private, non-commercial use by individuals. Any other reproduction, distribution or use of the content, in whole or in part, is specifically forbidden. The prohibited uses include commercial use, "screen scraping", "database scraping", and any other activity intended to collect, store, reorganize or manipulate data on the pages produced by or displayed on this website.
The information contained on this site is based in whole or in part on information that is provided under copyright by the Toronto Regional Real Estate Board (TRREB) or by members of The Canadian Real Estate Association (CREA), who are responsible for its accuracy. TRREB and CREA reproduce and distribute this information as a service for their members and assume no responsibility for its accuracy. All information displayed is believed to be accurate but is not guaranteed and should be independently verified. No warranties or representations of any kind are made with respect to the accuracy of such information. The information provided herein must only be used by consumers that have a bona fide interest in the purchase, sale, or lease of real estate and may not be used for any commercial purpose or any other purpose.