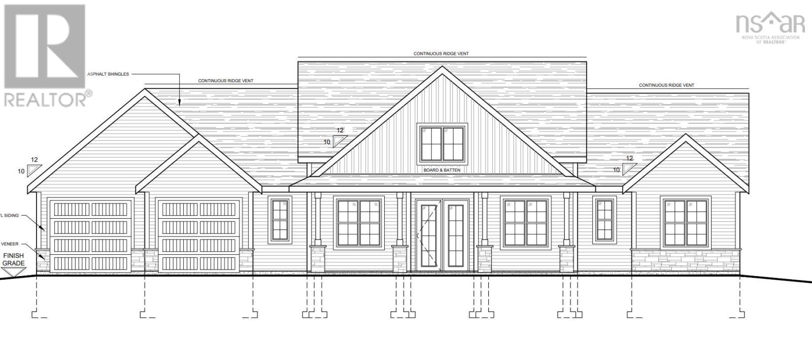
The Kingston - Marchand Homes. Welcome to the market, a current model home under construction for one of Marchand Homes custom bungalows, to be built on a stunning 3.38-acre lakefront lot on Drain Lake in the highly sought-after community of Indigo Shores. Surrounded by gorgeous trees and natural beauty, this executive residence will offer over 2,000 square feet of living space with 3 bedrooms, 2.5 bathrooms, and a spacious open-concept design. Built with the quality, craftsmanship, and thoughtful upgrades that Marchand Homes is known for, this home is designed to deliver modern comfort in a serene setting. Indigo Shores is a prestigious subdivision in Middle Sackville, featuring large, private lots and a welcoming community atmosphere. With quick highway access, you are only 10 minutes from all major amenities, close to excellent schools within the district, and just 25 minutes from Downtown Halifax. Experience the perfect blend of privacy, luxury, and lakeside living in Indigo Shoresa place youll be proud to call home. (id:47421)
Interested in obtaining the full price history for this property? Contact us!Contact us! Our real estate professionals would be happy to provide a complete listing history with historical sold prices and dates.
Detailed Information
Bedrooms
3
Bathrooms
3
Amenities Nearby
Park
Community Features
School Bus
Features
Treed
Listing Contract Date
2025-08-19
Location Description
Margeson Drive, to Midnight Run, to Gaspereau Run, to Bondi Drive, to Orchid Court
Municipal ID
41521998
Ownership Type
Freehold
Property Type
Single Family
Transaction Type
For sale
Views
Lake view
Waterfront Type
Waterfront on lake
Building
Appliances
None
Basement Type
None
Construction Style (Attachment)
Detached
Cooling Type
Wall unit, Heat Pump
Exterior Finish
Vinyl
Flooring Type
Laminate, Tile
Foundation Type
Concrete Slab
# of Half Bathrooms
1
Stories Total
1
Total Finished Area
2030 sqft
Type
House
Utility Water
Drilled Well
Rooms
Room
Level
Dimensions
Notes
Kitchen
Main level
10..6 x 11..7 /na
Dining room
Main level
11..6 x 11..8 /na
Great room
Main level
18..5 x 17..10 /na
Den
Main level
10..11 x 11..6 /na
Bath (# pieces 1-6)
Main level
6. x 6..8 /na
Primary Bedroom
Main level
14..10 x 16..2 /48
Ensuite (# pieces 2-6)
Main level
16..5 x 7..9 /na
Mud room
Main level
9..1 x 8..5 /48
Laundry room
Main level
6..2 x 8..5 /48
Bedroom
Main level
11..7 x 12..2 /48
Bedroom
Main level
12. x 11..8 /48
Bath (# pieces 1-6)
Main level
12..10 x 6..8 /48
Parking Spaces
Name
Spaces
Garage
Attached Garage
Heated Garage
Interlocked
Land
Total Size
3.3278 acres
Acreage
Yes
Amenities
Park
Sewer
Septic System
Size of Irregular Land
3.3278
Terms of Use
Please review and agree to the following terms of use to access the listing content:
REALTOR®, REALTORS®, and the REALTOR® logo are certification marks that are owned by REALTOR® Canada Inc. and licensed exclusively to The Canadian Real Estate Association (CREA). These certification marks identify real estate professionals who are members of CREA and who must abide by CREA's By-Laws, Rules, and the REALTOR® Code. The MLS® trademark and the MLS® logo are owned by CREA and identify the quality of services provided by real estate professionals who are members of CREA;
The information contained on this site is based in whole or in part on information that is provided by members of CREA, who are responsible for its accuracy. CREA reproduces and distributes this information as a service for its members and assumes no responsibility for its accuracy;
This website is operated by a brokerage or salesperson who is a member of CREA;
The listing content on this website is protected by copyright and other laws, and is intended solely for the private, non-commercial use by individuals. Any other reproduction, distribution or use of the content, in whole or in part, is specifically forbidden. The prohibited uses include commercial use, "screen scraping", "database scraping", and any other activity intended to collect, store, reorganize or manipulate data on the pages produced by or displayed on this website.
The information contained on this site is based in whole or in part on information that is provided under copyright by the Toronto Regional Real Estate Board (TRREB) or by members of The Canadian Real Estate Association (CREA), who are responsible for its accuracy. TRREB and CREA reproduce and distribute this information as a service for their members and assume no responsibility for its accuracy. All information displayed is believed to be accurate but is not guaranteed and should be independently verified. No warranties or representations of any kind are made with respect to the accuracy of such information. The information provided herein must only be used by consumers that have a bona fide interest in the purchase, sale, or lease of real estate and may not be used for any commercial purpose or any other purpose.