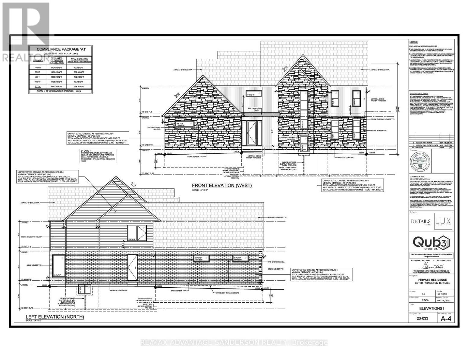
Welcome to beautiful Birr Estates! This is the custom home building opportunity you have been waiting for! Looking for more space than the 40'-60' building lots you are restricted to in the city? Looking to truly customize your dream home from the ground up? These stunning properties are 1.125 acres with the most spectacular sunsets and panoramic rolling farmland views, small-town community feel, excellent schools, all within a short 10 minute drive to all the amenities of North London. Our Anya model is a stately two-storey 3,360sf beauty with a beautiful stone & board and batten façade. The main floor features a large open concept living, dining, & kitchen area with lots of large windows to capture the beautiful country views. The kitchen is outfitted with beautiful custom cabinetry, stone counter tops & appliances are included! The walk-in pantry is finished to match the kitchen. Step through glass French doors into the large executive home office. A laundry room featuring custom cabinetry & stone counters, washer dryer set, separate mudroom, & powder room complete the main floor. Ascend the oak staircase to the second floor where you will find 4 large bedrooms, the 4th has its own ensuite with a glass shower. All bedrooms feature large closets and windows, and hardwood floors. Bedrooms 2 and 3 share a beautiful 4 pc bathroom. The large principal suite gives striking views through the oversized bedroom window and a 5-pc ensuite with a freestanding tub. All bathrooms are completed in custom cabinetry, stone countertops, tile tub & shower surrounds & beautiful fixtures. DETAILS Custom specializes in custom design + build projects, and does not believe you should be restricted to a specific house model or a selection of possible finishes. If The Anya is not quite perfect for you no problem! -an existing plan can be customized, or start fresh. They believe in working together to design your dream home it should be 100% you! To Be Built. This is Lot 4. (id:47421)
Interested in obtaining the full price history for this property? Contact us!Contact us! Our real estate professionals would be happy to provide a complete listing history with historical sold prices and dates.
Detailed Information
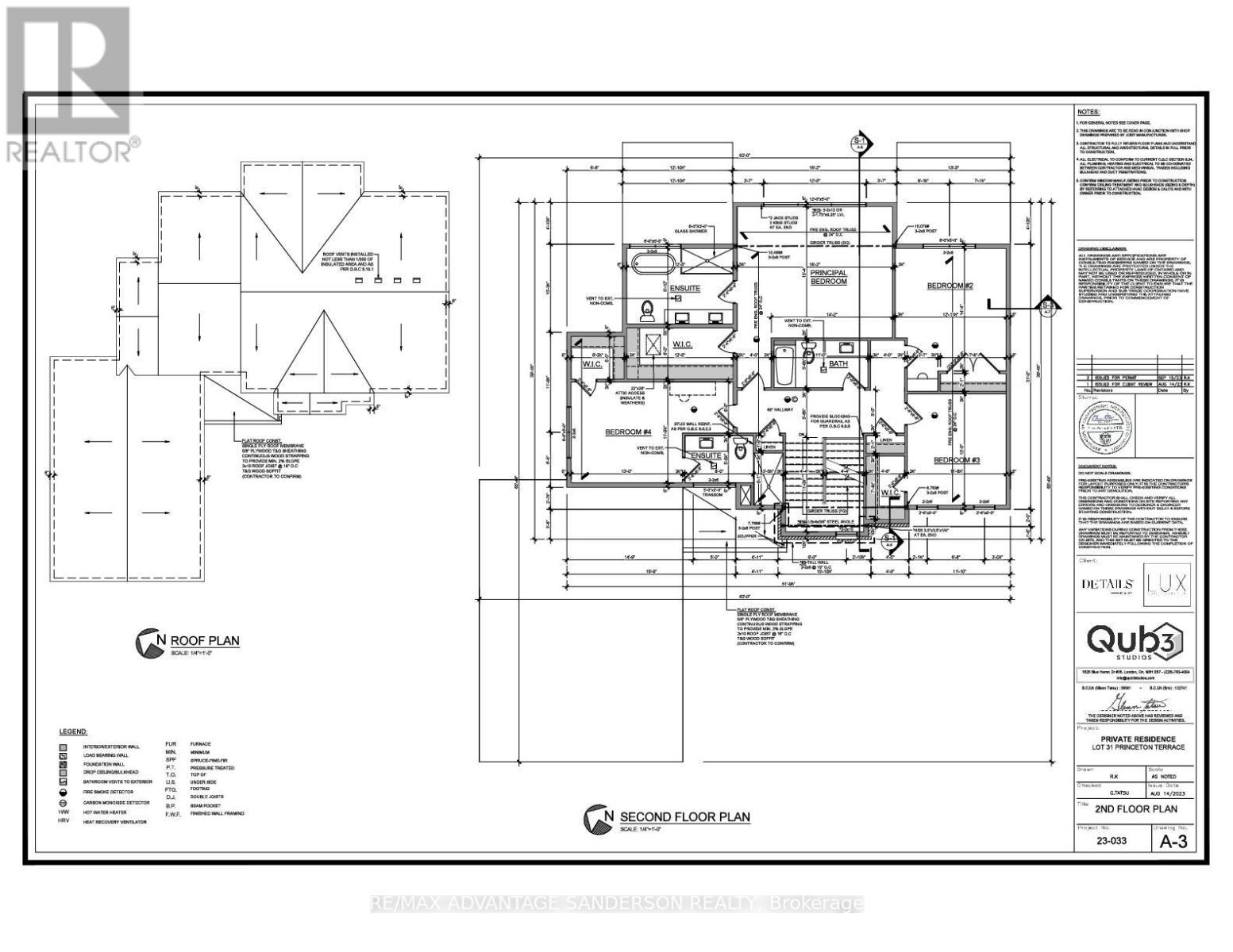
Bedrooms
4
Bathrooms
4
Lot
111 x 441 ft
Community Features
School Bus
Equipment
Water Heater, Water Heater - Tankless
Listing Contract Date
2025-11-17
Location Description
Cross Streets: Richmond Street. ** Directions: Richmond St north to Thirteen Mile turn West (left).
Ownership Type
Freehold
# of Parking Spaces
8
Property Type
Single Family
Rental Equipment
Water Heater, Water Heater - Tankless
Structures
Porch
Transaction Type
For sale
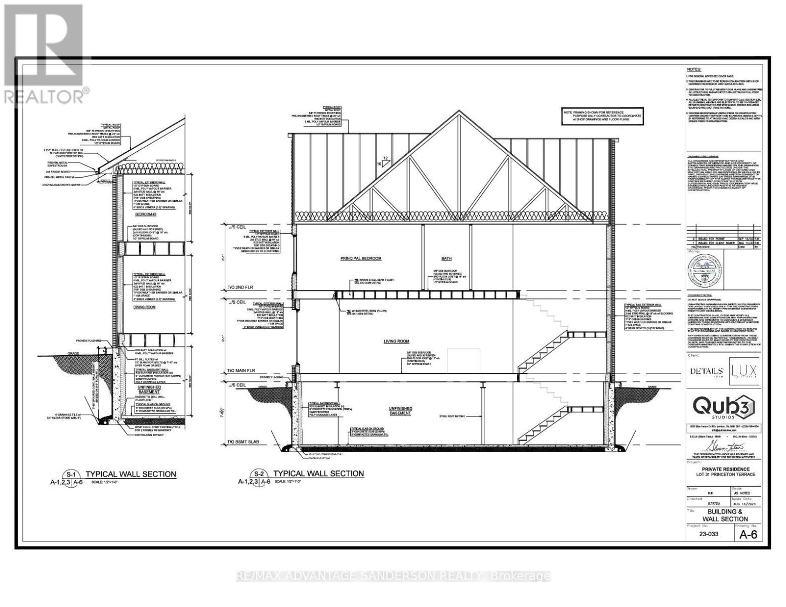
Building
Age
New building
Amenities
Fireplace(s)
Appliances
Dishwasher, Dryer, Stove, Washer, Refrigerator
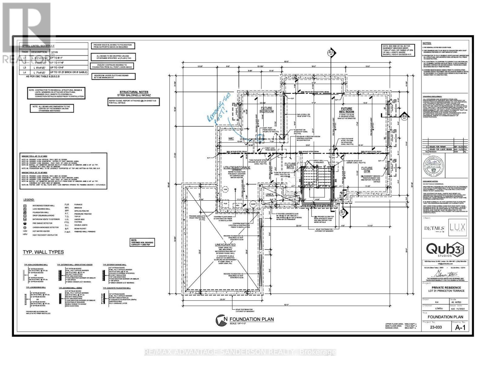
Basement Development
Unfinished
Basement Type
Full (Unfinished)
Construction Style (Attachment)
Detached
Cooling Type
Central air conditioning
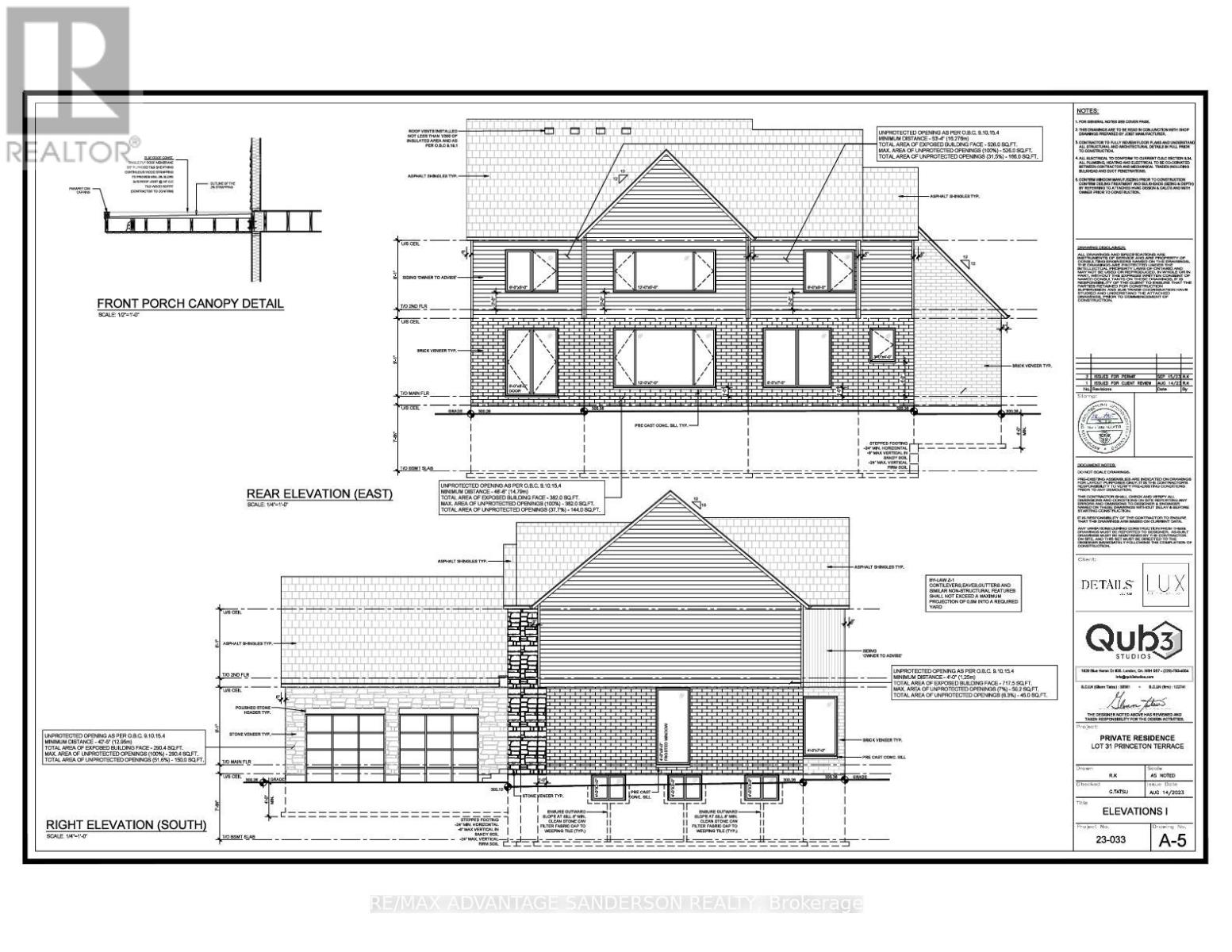
Exterior Finish
Brick
Fire Protection
Alarm system, Smoke Detectors
Fireplace Present
Yes
# of Fireplaces
1
Foundation Type
Poured Concrete
# of Half Bathrooms
2
Heating Fuel
Natural gas
Heating Type
Forced air
Stories Total
2
Type
House
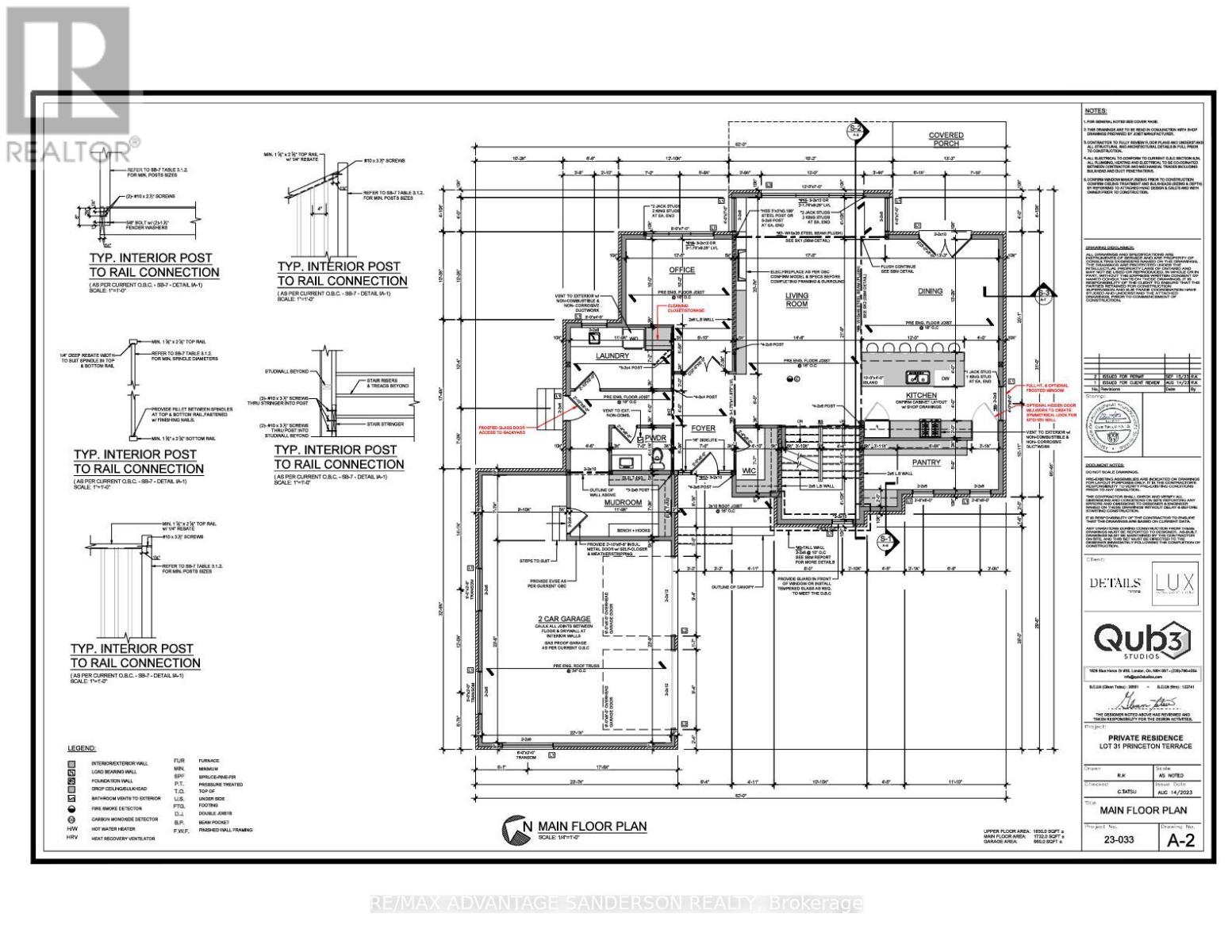
Rooms
Room
Level
Dimensions
Notes
Primary Bedroom
Second level
5.55 m x 4.69 m
Bedroom 2
Second level
3.69 m x 4.39 m
Bedroom 3
Second level
3.54 m x 3.96 m
Bedroom 4
Second level
3.96 m x 3.63 m
Mud room
Main level
3.63 m x 2.23 m
Laundry room
Main level
3.63 m x 2.19 m
Office
Main level
3.81 m x 3.05 m
Kitchen
Main level
4.88 m x 3.05 m
Living room
Main level
4.51 m x 6.31 m
Dining room
Main level
3.66 m x 4.02 m
Parking Spaces
Name
Spaces
Attached Garage
Garage
Land
Total Size
111 x 441 FT | 1/2 - 1.99 acres
Sewer
Septic System
Size of Irregular Land
111 x 441 FT
Terms of Use
Please review and agree to the following terms of use to access the listing content:
REALTOR®, REALTORS®, and the REALTOR® logo are certification marks that are owned by REALTOR® Canada Inc. and licensed exclusively to The Canadian Real Estate Association (CREA). These certification marks identify real estate professionals who are members of CREA and who must abide by CREA's By-Laws, Rules, and the REALTOR® Code. The MLS® trademark and the MLS® logo are owned by CREA and identify the quality of services provided by real estate professionals who are members of CREA;
The information contained on this site is based in whole or in part on information that is provided by members of CREA, who are responsible for its accuracy. CREA reproduces and distributes this information as a service for its members and assumes no responsibility for its accuracy;
This website is operated by a brokerage or salesperson who is a member of CREA;
The listing content on this website is protected by copyright and other laws, and is intended solely for the private, non-commercial use by individuals. Any other reproduction, distribution or use of the content, in whole or in part, is specifically forbidden. The prohibited uses include commercial use, "screen scraping", "database scraping", and any other activity intended to collect, store, reorganize or manipulate data on the pages produced by or displayed on this website.
The information contained on this site is based in whole or in part on information that is provided under copyright by the Toronto Regional Real Estate Board (TRREB) or by members of The Canadian Real Estate Association (CREA), who are responsible for its accuracy. TRREB and CREA reproduce and distribute this information as a service for their members and assume no responsibility for its accuracy. All information displayed is believed to be accurate but is not guaranteed and should be independently verified. No warranties or representations of any kind are made with respect to the accuracy of such information. The information provided herein must only be used by consumers that have a bona fide interest in the purchase, sale, or lease of real estate and may not be used for any commercial purpose or any other purpose.