TO BE BUILT. Welcome to the NEW ROBERT layout with a NEW PRICE by Vranic Homes. New price reflects the new HST rebate. Over 1450 sq ft of beauty and luxury. This 3 bedroom two storey home in beautiful Clear Skies is available with closing in early to mid 2026. Come and select your own finishings, and don't wait - our special pricing is first come first served, only one lot left at this price. Quartz counters throughout, plus design your own kitchen with our design consultant! See documents for a list of standard features. Visit our model at 133 Basil Cr in Ilderton, open Saturdays and Sundays from 2-4. Other models and lots are available, ask for the complete builder's package. (id:47421)
Interested in obtaining the full price history for this property? Contact us!Contact us! Our real estate professionals would be happy to provide a complete listing history with historical sold prices and dates.
Detailed Information
Bedrooms
3
Bathrooms
3
Lot
38.83 x 115.08 ft
Equipment
Water Heater
Listing Contract Date
2025-10-09
Location Description
Cross Streets: Stonefield and Hyde Park Rd. ** Directions: East off Hyde Park Rd onto Stonefield, turn north onto Bowman Crescent.
Ownership Type
Freehold
# of Parking Spaces
4
Property Type
Single Family
Rental Equipment
Water Heater
Transaction Type
For sale
Zoning Description
UR-1
Building
Age
New building
Appliances
Water Heater
Basement Development
Unfinished
Basement Type
N/A (Unfinished)
Construction Style (Attachment)
Detached
Cooling Type
Central air conditioning
Exterior Finish
Brick, Vinyl siding
Foundation Type
Poured Concrete
# of Half Bathrooms
1
Heating Fuel
Natural gas
Heating Type
Forced air
Stories Total
2
Type
House
Utility Water
Municipal water
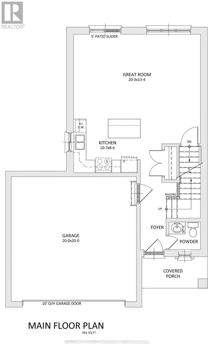
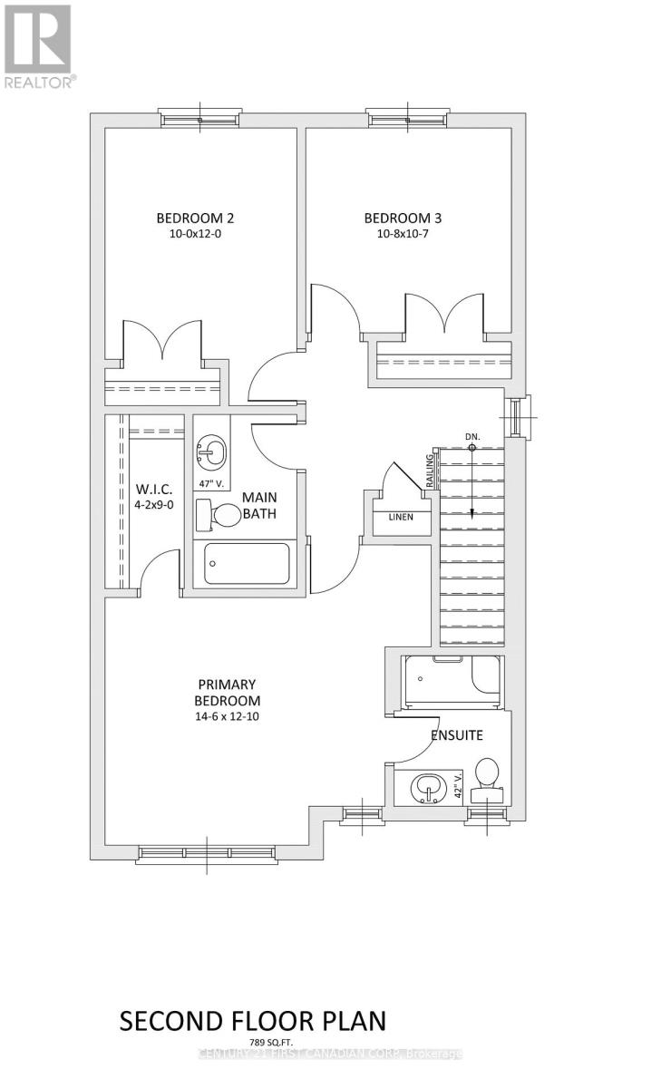
Rooms
Room
Level
Dimensions
Notes
Primary Bedroom
Second level
4.45 m x 3.69 m
Bedroom 2
Second level
3.05 m x 3.66 m
Bedroom 3
Second level
3.29 m x 3.26 m
Foyer
Main level
2.4 m x 2.4 m
Kitchen
Main level
3.26 m x 2.62 m
Great room
Main level
6.19 m x 4.08 m
Parking Spaces
Name
Spaces
Attached Garage
Garage
Land
Total Size
38.9 x 115.1 FT | under 1/2 acre
Sewer
Sanitary sewer
Size of Irregular Land
38.9 x 115.1 FT
Terms of Use
Please review and agree to the following terms of use to access the listing content:
REALTOR®, REALTORS®, and the REALTOR® logo are certification marks that are owned by REALTOR® Canada Inc. and licensed exclusively to The Canadian Real Estate Association (CREA). These certification marks identify real estate professionals who are members of CREA and who must abide by CREA's By-Laws, Rules, and the REALTOR® Code. The MLS® trademark and the MLS® logo are owned by CREA and identify the quality of services provided by real estate professionals who are members of CREA;
The information contained on this site is based in whole or in part on information that is provided by members of CREA, who are responsible for its accuracy. CREA reproduces and distributes this information as a service for its members and assumes no responsibility for its accuracy;
This website is operated by a brokerage or salesperson who is a member of CREA;
The listing content on this website is protected by copyright and other laws, and is intended solely for the private, non-commercial use by individuals. Any other reproduction, distribution or use of the content, in whole or in part, is specifically forbidden. The prohibited uses include commercial use, "screen scraping", "database scraping", and any other activity intended to collect, store, reorganize or manipulate data on the pages produced by or displayed on this website.
The information contained on this site is based in whole or in part on information that is provided under copyright by the Toronto Regional Real Estate Board (TRREB) or by members of The Canadian Real Estate Association (CREA), who are responsible for its accuracy. TRREB and CREA reproduce and distribute this information as a service for their members and assume no responsibility for its accuracy. All information displayed is believed to be accurate but is not guaranteed and should be independently verified. No warranties or representations of any kind are made with respect to the accuracy of such information. The information provided herein must only be used by consumers that have a bona fide interest in the purchase, sale, or lease of real estate and may not be used for any commercial purpose or any other purpose.