Welcome to your next opportunity in the beautiful Village of Midway, BC! This spacious 5-bedroom, 2.5-bath split-level home sits on a generous 0.271-acre lot and offers over 2,400 sq ft of living space, perfect for growing families or anyone looking to spread out. The roof was redone in 2019, and a brand-new deck was completed in 2023, adding great value and outdoor living space. Inside, you'll find a functional layout with plenty of natural light and room to personalize. Outside, the large yard provides ample space for gardening, entertaining, or simply relaxing in this peaceful community. Conveniently located close to schools, parks, and all that Midway has to offer, this home is full of potential. Don’t miss your chance to enjoy small-town charm with room to grow! (id:47421)
Interested in obtaining the full price history for this property? Contact us!Contact us! Our real estate professionals would be happy to provide a complete listing history with historical sold prices and dates.
Detailed Information
Bedrooms
5
Bathrooms
3
Amenities Nearby
Park, Schools
Community Features
Family Oriented
Features
Level lot, Corner Site
Listing Contract Date
2025-07-02
Municipal ID
009-857-923 & 009-857-931
Ownership Type
Freehold
# of Parking Spaces
6
Property Type
Single Family
Storage
Storage Shed
Transaction Type
For sale
Views
View (panoramic)
Building
Appliances
Refrigerator, Range - Electric, Freezer, Washer & Dryer
Architectural Style
Multi-level
Basement Type
Full
Constructed Date
1976
Construction Style (Attachment)
Detached
Construction Style (Split Level)
Other
Cooling Type
Heat Pump
Exterior Finish
Metal
Fireplace Fuel
Wood
Fireplace Present
Yes
# of Fireplaces
2
Fireplace Type
Conventional
Flooring Type
Carpeted, Hardwood, Linoleum
# of Half Bathrooms
1
Heating Fuel
Electric
Heating Type
Forced air, Heat Pump
Roof Material
Asphalt shingle
Roof Style
Unknown
Stories Total
2
Type
House
Utility Water
Municipal water
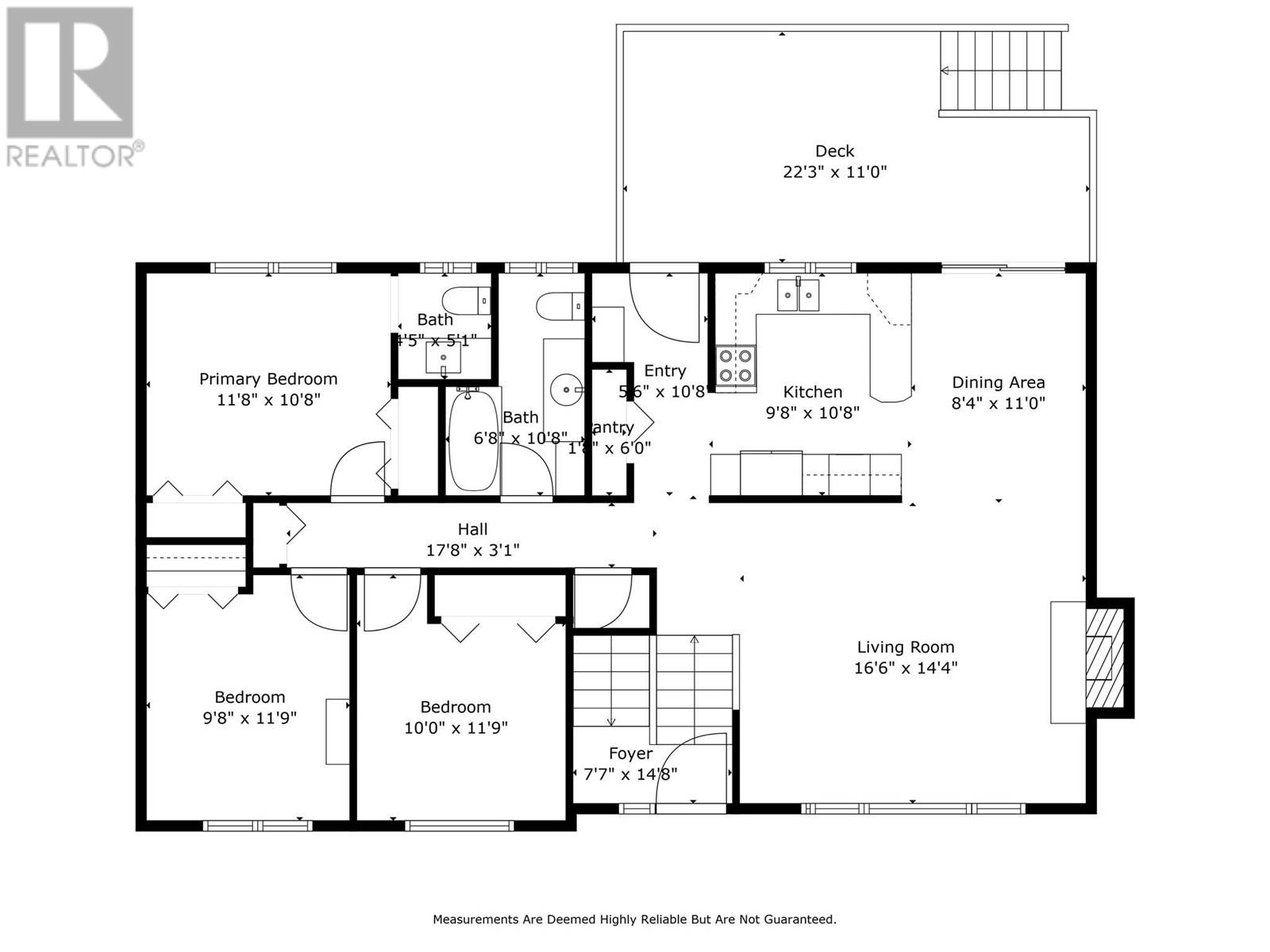
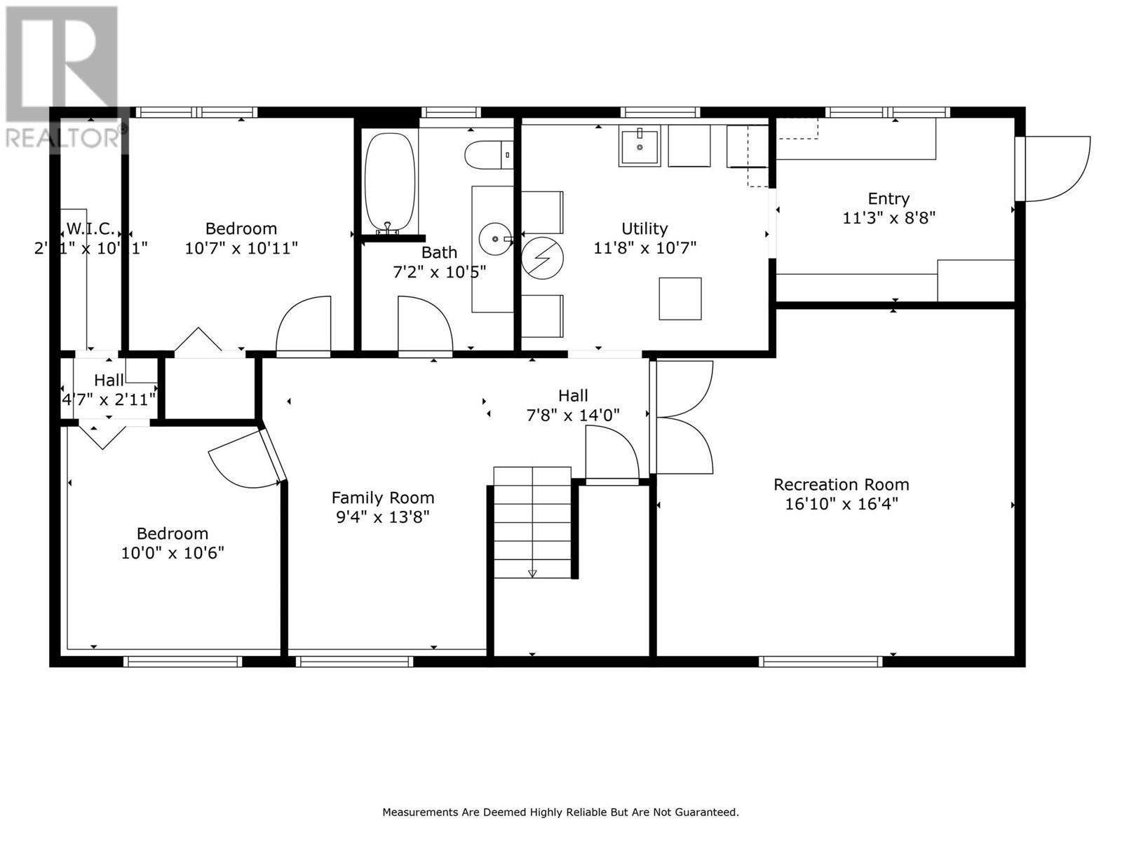
Rooms
Room
Level
Dimensions
Notes
Bedroom
Basement
10'7'' x 10'11''
Bedroom
Basement
10' x 10'6''
Full bathroom
Basement
Measurements not available
Storage
Basement
11'3'' x 8'8''
Utility room
Basement
11'8'' x 10'7''
Recreation room
Basement
16'10'' x 16'4''
Family room
Basement
9'4'' x 13'8''
Bedroom
Main level
9'8'' x 11'9''
Bedroom
Main level
10' x 11'9''
4pc Bathroom
Main level
Measurements not available
2pc Ensuite bath
Main level
Measurements not available
Primary Bedroom
Main level
11'8'' x 10'8''
Kitchen
Main level
9'8'' x 10'8''
Dining room
Main level
8'4'' x 11'
Living room
Main level
16'6'' x 14'4''
Parking Spaces
Name
Spaces
Carport
Utilities
Type
Description
Cable
Available
Electricity
Available
Telephone
Available
Sewer
Available
Water
Available
Land
Total Size
0.27 acres
Access Type
Easy access, Highway access
Amenities
Park, Schools
Landscape Features
Level, Underground sprinkler
Sewer
Municipal sewage system
Size of Irregular Land
0.27
Terms of Use
Please review and agree to the following terms of use to access the listing content:
REALTOR®, REALTORS®, and the REALTOR® logo are certification marks that are owned by REALTOR® Canada Inc. and licensed exclusively to The Canadian Real Estate Association (CREA). These certification marks identify real estate professionals who are members of CREA and who must abide by CREA's By-Laws, Rules, and the REALTOR® Code. The MLS® trademark and the MLS® logo are owned by CREA and identify the quality of services provided by real estate professionals who are members of CREA;
The information contained on this site is based in whole or in part on information that is provided by members of CREA, who are responsible for its accuracy. CREA reproduces and distributes this information as a service for its members and assumes no responsibility for its accuracy;
This website is operated by a brokerage or salesperson who is a member of CREA;
The listing content on this website is protected by copyright and other laws, and is intended solely for the private, non-commercial use by individuals. Any other reproduction, distribution or use of the content, in whole or in part, is specifically forbidden. The prohibited uses include commercial use, "screen scraping", "database scraping", and any other activity intended to collect, store, reorganize or manipulate data on the pages produced by or displayed on this website.
The information contained on this site is based in whole or in part on information that is provided under copyright by the Toronto Regional Real Estate Board (TRREB) or by members of The Canadian Real Estate Association (CREA), who are responsible for its accuracy. TRREB and CREA reproduce and distribute this information as a service for their members and assume no responsibility for its accuracy. All information displayed is believed to be accurate but is not guaranteed and should be independently verified. No warranties or representations of any kind are made with respect to the accuracy of such information. The information provided herein must only be used by consumers that have a bona fide interest in the purchase, sale, or lease of real estate and may not be used for any commercial purpose or any other purpose.