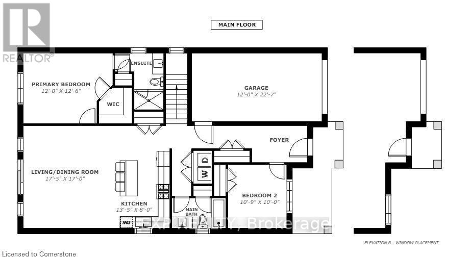
THE CROSSROADS model is for those looking to right size their home needs. A smaller bungalow with 2 bedrooms is a cozy and efficient home that offers a comfortable and single-level living experience for people of any age. Upon entering the home, you'll step into a welcoming foyer with a 9' ceiling height. The entryway includes a coat closet and a space for an entry table to welcome guests. Just off the entry is the first of 2 bedrooms. This bedroom can function for a child or as a home office, den, or guest room. The family bath is just around the corner past the main floor laundry closet. The central living space of the bungalow is designed for comfort and convenience. An open-concept layout combines the living room, dining area, and kitchen to create an inviting atmosphere for intimate family meals and gatherings. The primary bedroom is larger with views of the backyard and includes a good-sized walk-in closet, linen storage, and an ensuite bathroom for added privacy and comfort. The basement is roughed in for a future bath and awaits your optional finishing. BONUS: central air conditioning, asphalt paved driveway, garage door opener, holiday receptacle, perennial garden and walkway, sodded yards, egress window in basement, breakfast bar overhang, stone countertops in kitchen and baths, upgraded kitchen cabinets and more... Pick your own lot, floor plan, and colours with Finoro Homes at Maitland Meadows. Ask for a full list of incredible features! Several plans and lots to choose from Additional builder incentives available for a limited time only! Please note: Renderings are artists concept only and may not be exactly as shown. Exterior front porch posts included are full timber. (id:47421)
Interested in obtaining the full price history for this property? Contact us!Contact us! Our real estate professionals would be happy to provide a complete listing history with historical sold prices and dates.
Detailed Information
Bedrooms
2
Bathrooms
2
Lot
40.08 x 100.17 ft
Amenities Nearby
Place of Worship, Park, Schools
Community Features
Community Centre, School Bus
Equipment
Water Heater
Features
Flat site, Lighting, Sump Pump
Listing Contract Date
2025-04-14
Location Description
Cross Streets: John St W & Thackeray Way. ** Directions: From Elora St S, turn onto Anne St W, left on John St, left onto Thackeray Way.
Ownership Type
Freehold
# of Parking Spaces
3
Property Type
Single Family
Rental Equipment
Water Heater
Structures
Porch
Transaction Type
For sale
Zoning Description
R2
Building
Age
New building
Appliances
Garage door opener remote(s), Water Heater - Tankless
Architectural Style
Bungalow
Basement Development
Unfinished
Basement Type
Full (Unfinished)
Construction Style (Attachment)
Detached
Cooling Type
Central air conditioning
Exterior Finish
Brick, Stone
Foundation Type
Poured Concrete
Heating Fuel
Natural gas
Heating Type
Forced air
Stories Total
1
Type
House
Utility Water
Municipal water
Rooms
Room
Level
Dimensions
Notes
Foyer
Main level
2.87 m x 1.96 m
Bedroom 2
Main level
3.28 m x 3.3 m
Bathroom
Main level
2.97 m x 1.52 m
Kitchen
Main level
4.09 m x 2.59 m
Dining room
Main level
5.33 m x 2.59 m
Living room
Main level
5.33 m x 2.59 m
Primary Bedroom
Main level
3.81 m x 3.66 m
Bathroom
Main level
2.54 m x 2.82 m
Laundry room
Main level
1.75 m x 1.88 m
Parking Spaces
Name
Spaces
Attached Garage
Garage
Land
Total Size
40.1 x 100.2 FT
Amenities
Place of Worship, Park, Schools
Landscape Features
Landscaped
Sewer
Sanitary sewer
Size of Irregular Land
40.1 x 100.2 FT
Open Houses
Date & Time
Comments
14/03/2026 1:00 PM - 3:00 PM
15/03/2026 1:00 PM - 3:00 PM
16/03/2026 10:00 AM - 2:00 PM
18/03/2026 10:00 AM - 2:00 PM
23/03/2026 10:00 AM - 2:00 PM
25/03/2026 10:00 AM - 2:00 PM
30/03/2026 10:00 AM - 2:00 PM
01/04/2026 10:00 AM - 2:00 PM
Terms of Use
Please review and agree to the following terms of use to access the listing content:
REALTOR®, REALTORS®, and the REALTOR® logo are certification marks that are owned by REALTOR® Canada Inc. and licensed exclusively to The Canadian Real Estate Association (CREA). These certification marks identify real estate professionals who are members of CREA and who must abide by CREA's By-Laws, Rules, and the REALTOR® Code. The MLS® trademark and the MLS® logo are owned by CREA and identify the quality of services provided by real estate professionals who are members of CREA;
The information contained on this site is based in whole or in part on information that is provided by members of CREA, who are responsible for its accuracy. CREA reproduces and distributes this information as a service for its members and assumes no responsibility for its accuracy;
This website is operated by a brokerage or salesperson who is a member of CREA;
The listing content on this website is protected by copyright and other laws, and is intended solely for the private, non-commercial use by individuals. Any other reproduction, distribution or use of the content, in whole or in part, is specifically forbidden. The prohibited uses include commercial use, "screen scraping", "database scraping", and any other activity intended to collect, store, reorganize or manipulate data on the pages produced by or displayed on this website.
The information contained on this site is based in whole or in part on information that is provided under copyright by the Toronto Regional Real Estate Board (TRREB) or by members of The Canadian Real Estate Association (CREA), who are responsible for its accuracy. TRREB and CREA reproduce and distribute this information as a service for their members and assume no responsibility for its accuracy. All information displayed is believed to be accurate but is not guaranteed and should be independently verified. No warranties or representations of any kind are made with respect to the accuracy of such information. The information provided herein must only be used by consumers that have a bona fide interest in the purchase, sale, or lease of real estate and may not be used for any commercial purpose or any other purpose.