In-Law Suite / Income property. 10 Cedar is located in a desirable neighborhood! This unique 4-level split home includes a convenient in-law suite. Located close to all amenities, the main house offers an eat-in kitchen and dining area with patio doors leading to a private back deck, living room. The upper level features 3 bedrooms and a full bath. The lower level boasts a spacious family room with pellet stove, bedroom, full bath, and laundry. Bonus - The in-law suite is equipped with an open concept kitchen, dining, and living area, along with a full bath, 2 bedrooms, and laundry facilities. For added convenience, there is a 2-car garage with ample storage space and a large double paved driveway. The property is beautifully landscaped with perennials and shrubs. Both the main house and in-law suite have their own ducted heat pump systems and separate power meters. Don't miss out on this fantastic opportunity - call today to schedule a viewing! (id:47421)
Interested in obtaining the full price history for this property? Contact us!Contact us! Our real estate professionals would be happy to provide a complete listing history with historical sold prices and dates.
Detailed Information
Bedrooms
5+1
Bathrooms
3
Features
Treed, Balcony/Deck/Patio
Location Description
Head down Wellington St approx 3.8 kms, turn left on Lebreton Dr Travel 150 Meters, Turn Left onto Cedar St, Home will be on left
Municipal ID
40056772
Ownership Type
Freehold
Property Type
Single Family
Transaction Type
For sale
Building
Architectural Style
4 Level
Constructed Date
1988
Cooling Type
Heat Pump
Exterior Finish
Vinyl
Flooring Type
Ceramic, Laminate, Vinyl, Wood
Foundation Type
Concrete
Heating Type
Heat Pump
Total Finished Area
3207 sqft
Type
House
Utility Water
Well
Rooms
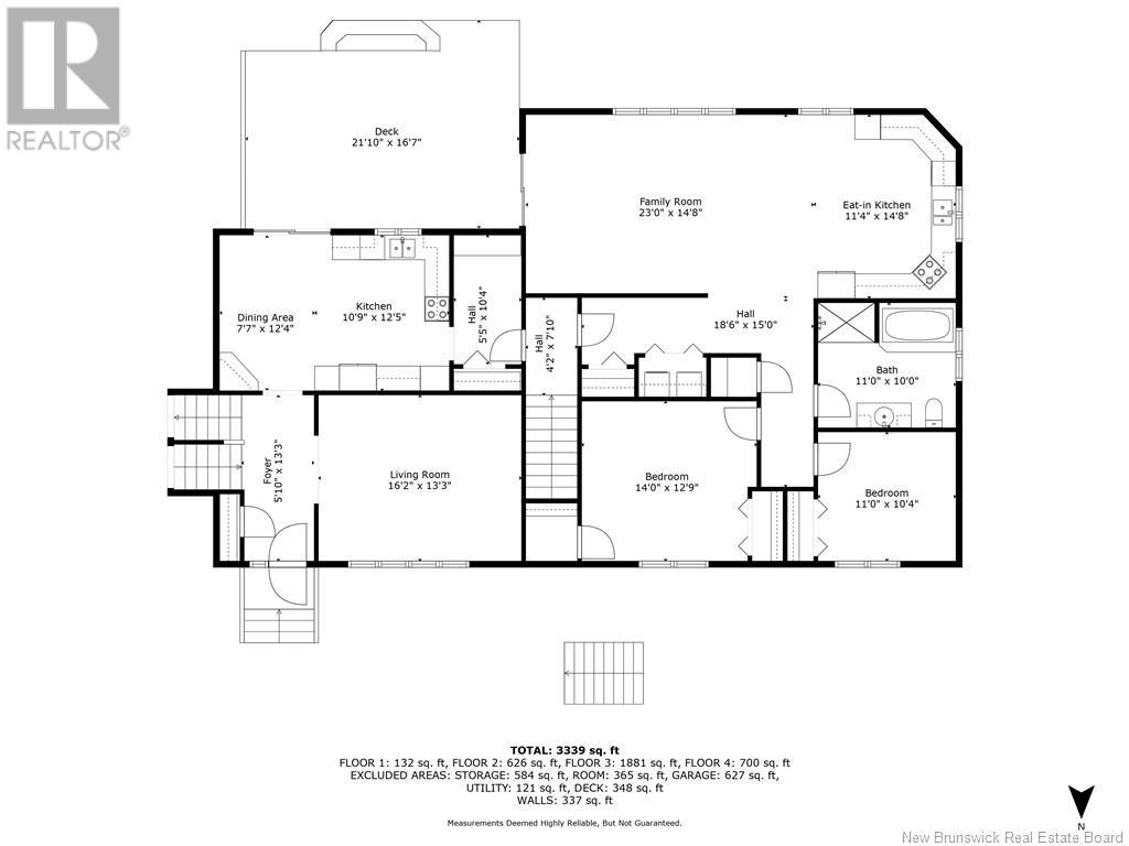
Room
Level
Dimensions
Notes
3pc Bathroom
Second level
9'5'' x 8'6''
3pc Bathroom
Second level
9'5'' x 5'2''
Bedroom
Second level
11'8'' x 11'2''
Bedroom
Second level
15'2'' x 11'5''
Primary Bedroom
Second level
14' x 13'8''
Bedroom
Basement
12'1'' x 10'4''
3pc Bathroom
Basement
12'5'' x 10'2''
Family room
Basement
23'1'' x 12'11''
3pc Bathroom
Main level
11' x 10'
Bedroom
Main level
11' x 10'4''
Bedroom
Main level
14' x 12'9''
Living room
Main level
23' x 14'8''
Kitchen/Dining room
Main level
14'8'' x 11'4''
Storage
Main level
10'4'' x 4'2''
Foyer
Main level
13'3'' x 5'10''
Living room
Main level
16'2'' x 13'3''
Kitchen/Dining room
Main level
17'4'' x 12'4''
Parking Spaces
Name
Spaces
Detached Garage
Garage
Land
Total Size
1553 square meters
Access Type
Year-round access, Public Road
Landscape Features
Landscaped
Sewer
Municipal sewage system
Size of Irregular Land
1553
Terms of Use
Please review and agree to the following terms of use to access the listing content:
REALTOR®, REALTORS®, and the REALTOR® logo are certification marks that are owned by REALTOR® Canada Inc. and licensed exclusively to The Canadian Real Estate Association (CREA). These certification marks identify real estate professionals who are members of CREA and who must abide by CREA's By-Laws, Rules, and the REALTOR® Code. The MLS® trademark and the MLS® logo are owned by CREA and identify the quality of services provided by real estate professionals who are members of CREA;
The information contained on this site is based in whole or in part on information that is provided by members of CREA, who are responsible for its accuracy. CREA reproduces and distributes this information as a service for its members and assumes no responsibility for its accuracy;
This website is operated by a brokerage or salesperson who is a member of CREA;
The listing content on this website is protected by copyright and other laws, and is intended solely for the private, non-commercial use by individuals. Any other reproduction, distribution or use of the content, in whole or in part, is specifically forbidden. The prohibited uses include commercial use, "screen scraping", "database scraping", and any other activity intended to collect, store, reorganize or manipulate data on the pages produced by or displayed on this website.
The information contained on this site is based in whole or in part on information that is provided under copyright by the Toronto Regional Real Estate Board (TRREB) or by members of The Canadian Real Estate Association (CREA), who are responsible for its accuracy. TRREB and CREA reproduce and distribute this information as a service for their members and assume no responsibility for its accuracy. All information displayed is believed to be accurate but is not guaranteed and should be independently verified. No warranties or representations of any kind are made with respect to the accuracy of such information. The information provided herein must only be used by consumers that have a bona fide interest in the purchase, sale, or lease of real estate and may not be used for any commercial purpose or any other purpose.