Photos shown are of an identical floor plan and accurately reflect the same unit size as advertised. This bright and spacious condo offers more space than most newly built units. Excellent opportunity for investors. Currently tenanted - perfect for those looking to buy low and enjoy steady rental income from day one, these prices won't last. Ideal layout for families or couples seeking privacy, with two generously sized bedrooms located on opposite sides of the suite. The sun-filled den provides the perfect space for a home office or an additional sitting area. Prime location within walking distance to Square One, schools, parks, and transit. With top-notch building amenities including an indoor pool, sauna, fitness room, and 24-hour security. (id:47421)
Interested in obtaining the full price history for this property? Contact us!Contact us! Our real estate professionals would be happy to provide a complete listing history with historical sold prices and dates.
Detailed Information
Bedrooms
2+1
Bathrooms
2
Amenities Nearby
Public Transit, Park, Schools
Community Features
Pets Allowed With Restrictions, Community Centre
Features
Carpet Free
Listing Contract Date
2026-01-06
Location Description
Hurontario St & Burnhamthorpe Rd W
Maintenance Fee Payment Frequency
Monthly
Maintenance Fee Type
Heat, Electricity, Water, Cable TV, Common Area Maintenance, Insurance, Parking
Management Company
Del Property Management
Ownership Type
Condominium/Strata
# of Parking Spaces
2
Pool
Indoor pool
Property Type
Single Family
Structures
Tennis Court, Squash & Raquet Court
Transaction Type
For sale
Building
Amenities
Party Room, Exercise Centre, Visitor Parking, Storage - Locker
Basement Type
None
Cooling Type
Central air conditioning
Exterior Finish
Concrete
Flooring Type
Laminate, Tile
Heating Fuel
Natural gas
Heating Type
Forced air
Type
Apartment
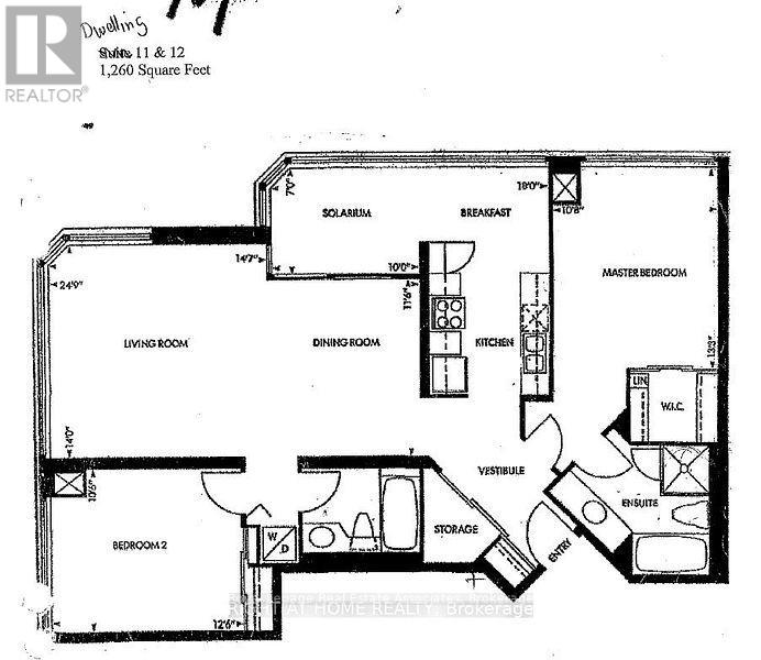
Rooms
Room
Level
Dimensions
Notes
Living room
Main level
4.5 m x 4.3 m
Dining room
Main level
3.1 m x 4.3 m
Kitchen
Main level
4.5 m x 2.5 m
Primary Bedroom
Main level
4.3 m x 4 m
Bedroom 2
Main level
4 m x 3.5 m
Solarium
Main level
3.1 m x 2.2 m
Parking Spaces
Name
Spaces
Underground
Garage
Land
Amenities
Public Transit, Park, Schools
Terms of Use
Please review and agree to the following terms of use to access the listing content:
REALTOR®, REALTORS®, and the REALTOR® logo are certification marks that are owned by REALTOR® Canada Inc. and licensed exclusively to The Canadian Real Estate Association (CREA). These certification marks identify real estate professionals who are members of CREA and who must abide by CREA's By-Laws, Rules, and the REALTOR® Code. The MLS® trademark and the MLS® logo are owned by CREA and identify the quality of services provided by real estate professionals who are members of CREA;
The information contained on this site is based in whole or in part on information that is provided by members of CREA, who are responsible for its accuracy. CREA reproduces and distributes this information as a service for its members and assumes no responsibility for its accuracy;
This website is operated by a brokerage or salesperson who is a member of CREA;
The listing content on this website is protected by copyright and other laws, and is intended solely for the private, non-commercial use by individuals. Any other reproduction, distribution or use of the content, in whole or in part, is specifically forbidden. The prohibited uses include commercial use, "screen scraping", "database scraping", and any other activity intended to collect, store, reorganize or manipulate data on the pages produced by or displayed on this website.
The information contained on this site is based in whole or in part on information that is provided under copyright by the Toronto Regional Real Estate Board (TRREB) or by members of The Canadian Real Estate Association (CREA), who are responsible for its accuracy. TRREB and CREA reproduce and distribute this information as a service for their members and assume no responsibility for its accuracy. All information displayed is believed to be accurate but is not guaranteed and should be independently verified. No warranties or representations of any kind are made with respect to the accuracy of such information. The information provided herein must only be used by consumers that have a bona fide interest in the purchase, sale, or lease of real estate and may not be used for any commercial purpose or any other purpose.