This brand new construction is located in the Sterling Meadows subdivision off of Shediac Road, and close to the Trans-Canada Highway and Harrisville Blvd. Kitchen appliances are included in the purchase price. A paved driveway, topsoil and seed to be included but will hold no warranty. The LUX New Home warranty is included in the purchase price. *This property qualifies for the First-Time Home Buyer GST/HST new housing rebate* (id:47421)
Interested in obtaining the full price history for this property? Contact us!Contact us! Our real estate professionals would be happy to provide a complete listing history with historical sold prices and dates.
Detailed Information
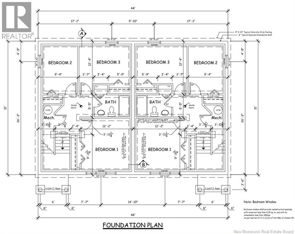
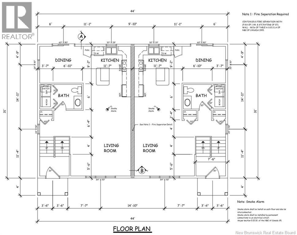
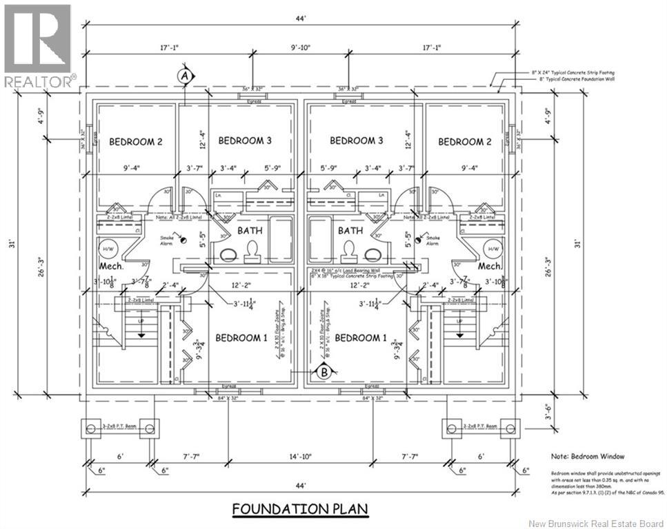
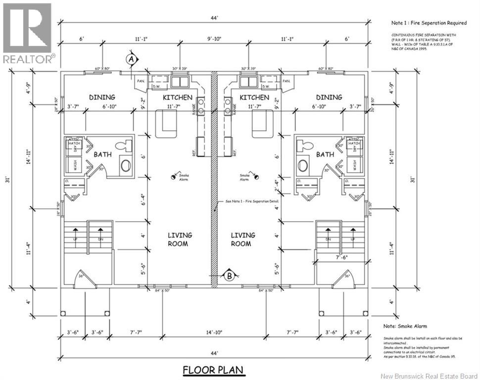
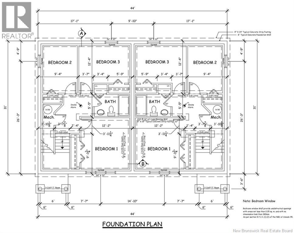
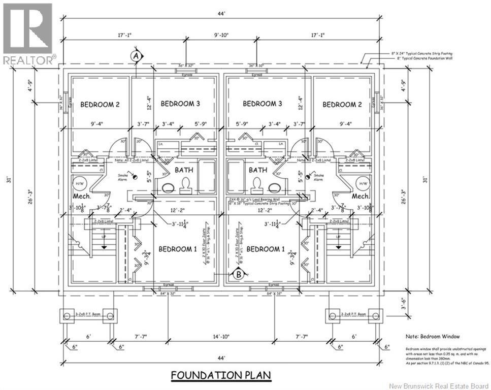
Bedrooms
0+3
Bathrooms
2
Location Description
From Macintosh Blvd turn onto MacCoun street.
Municipal ID
70716006
Ownership Type
Freehold
Property Type
Single Family
Transaction Type
For sale
Building
Architectural Style
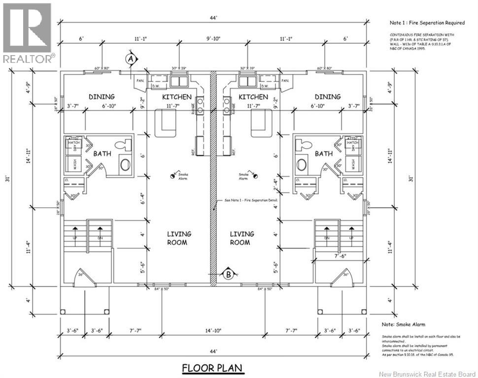
Split entry bungalow
Constructed Date
2025
Cooling Type
Heat Pump
Exterior Finish
Vinyl
Flooring Type
Laminate
Foundation Type
Concrete
# of Half Bathrooms
1
Heating Fuel
Electric
Heating Type
Baseboard heaters, Heat Pump
Stories Total
1
Total Finished Area
1364 sqft
Type
House
Utility Water
Municipal water
Land
Total Size
361 square meters
Access Type
Year-round access, Public Road
Sewer
Municipal sewage system
Size of Irregular Land
361
Terms of Use
Please review and agree to the following terms of use to access the listing content:
REALTOR®, REALTORS®, and the REALTOR® logo are certification marks that are owned by REALTOR® Canada Inc. and licensed exclusively to The Canadian Real Estate Association (CREA). These certification marks identify real estate professionals who are members of CREA and who must abide by CREA's By-Laws, Rules, and the REALTOR® Code. The MLS® trademark and the MLS® logo are owned by CREA and identify the quality of services provided by real estate professionals who are members of CREA;
The information contained on this site is based in whole or in part on information that is provided by members of CREA, who are responsible for its accuracy. CREA reproduces and distributes this information as a service for its members and assumes no responsibility for its accuracy;
This website is operated by a brokerage or salesperson who is a member of CREA;
The listing content on this website is protected by copyright and other laws, and is intended solely for the private, non-commercial use by individuals. Any other reproduction, distribution or use of the content, in whole or in part, is specifically forbidden. The prohibited uses include commercial use, "screen scraping", "database scraping", and any other activity intended to collect, store, reorganize or manipulate data on the pages produced by or displayed on this website.
The information contained on this site is based in whole or in part on information that is provided under copyright by the Toronto Regional Real Estate Board (TRREB) or by members of The Canadian Real Estate Association (CREA), who are responsible for its accuracy. TRREB and CREA reproduce and distribute this information as a service for their members and assume no responsibility for its accuracy. All information displayed is believed to be accurate but is not guaranteed and should be independently verified. No warranties or representations of any kind are made with respect to the accuracy of such information. The information provided herein must only be used by consumers that have a bona fide interest in the purchase, sale, or lease of real estate and may not be used for any commercial purpose or any other purpose.