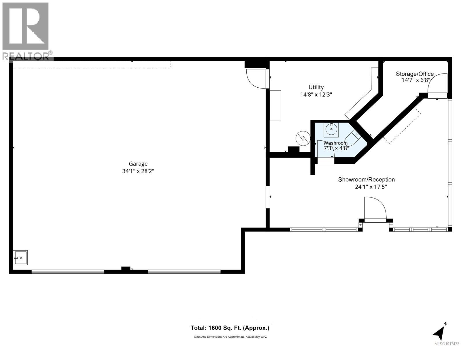
Commercial opportunity in downtown location with DT12 zoning, dual road frontages, and unbeatable exposure to over 45,000 vehicles per day. Situated on a fully fenced 10,586 sq ft lot with ample on-site parking, the property features a prominent backlit pylon sign and new overhead lighting to maximize visibility. The 1,600 sq ft building is equipped with two drive-in bays, a bright showroom/reception area, private office, washroom, 200-amp electrical service, 4-point hoist, swivel boom, and compressor. Heating is provided by a gas furnace for both the showroom and shop, along with electric heat for added efficiency. This well-equipped site offers excellent potential for a service-based businesses, with future development opportunities thanks to its flexible zoning and strategic proximity to downtown amenities, ferry terminals, Helijet, seaplane terminal, and shopping. A rare and versatile investment in the heart of the city. Measurements are approximate and data should be verified if important. (id:47421)
Interested in obtaining the full price history for this property? Contact us!Contact us! Our real estate professionals would be happy to provide a complete listing history with historical sold prices and dates.
Detailed Information
Features
Central location, Level lot, Corner Site, Other
Listing Contract Date
2025-10-14
Municipal ID
003-374-955
Ownership Type
Freehold
Property Type
Other
Signage
Pylon
Transaction Type
For sale
Zoning Description
DT-12
Zoning
Unknown
Building
Constructed Date
1965
Size (Exterior)
1600 square feet
Type
Commercial Mix
Land
Total Size
10454 square feet
Access Type
Road access
Size of Irregular Land
10454
Terms of Use
Please review and agree to the following terms of use to access the listing content:
REALTOR®, REALTORS®, and the REALTOR® logo are certification marks that are owned by REALTOR® Canada Inc. and licensed exclusively to The Canadian Real Estate Association (CREA). These certification marks identify real estate professionals who are members of CREA and who must abide by CREA's By-Laws, Rules, and the REALTOR® Code. The MLS® trademark and the MLS® logo are owned by CREA and identify the quality of services provided by real estate professionals who are members of CREA;
The information contained on this site is based in whole or in part on information that is provided by members of CREA, who are responsible for its accuracy. CREA reproduces and distributes this information as a service for its members and assumes no responsibility for its accuracy;
This website is operated by a brokerage or salesperson who is a member of CREA;
The listing content on this website is protected by copyright and other laws, and is intended solely for the private, non-commercial use by individuals. Any other reproduction, distribution or use of the content, in whole or in part, is specifically forbidden. The prohibited uses include commercial use, "screen scraping", "database scraping", and any other activity intended to collect, store, reorganize or manipulate data on the pages produced by or displayed on this website.
The information contained on this site is based in whole or in part on information that is provided under copyright by the Toronto Regional Real Estate Board (TRREB) or by members of The Canadian Real Estate Association (CREA), who are responsible for its accuracy. TRREB and CREA reproduce and distribute this information as a service for their members and assume no responsibility for its accuracy. All information displayed is believed to be accurate but is not guaranteed and should be independently verified. No warranties or representations of any kind are made with respect to the accuracy of such information. The information provided herein must only be used by consumers that have a bona fide interest in the purchase, sale, or lease of real estate and may not be used for any commercial purpose or any other purpose.