$789,900
FOR SALE

Detached

Bedrooms: 4Bathrooms: 3

723 Hendryx Street
Nelson, BC V1L 2B1

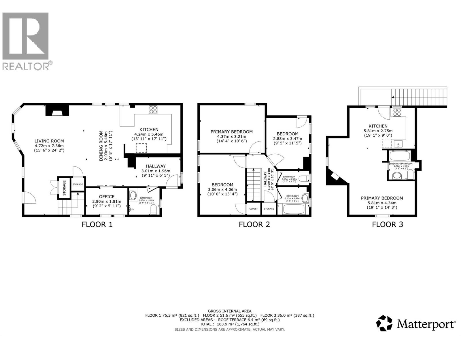
Situated in the heart of Nelson’s Lower Uphill neighbourhood, 723 Hendryx Street is a lovely heritage residence that marries timeless character with modern upgrades. Just three blocks from Baker Street, this home sits on a large corner lot, offering outdoor privacy and space seldom found in such a central location. The main floor is designed for a seamless flow, featuring an open-concept living area, a dedicated office and a practical mudroom with laundry that leads out to a fenced yard. Culinary enthusiasts will love the recently renovated kitchen, which showcases luxury touches including a premium six-burner gas range with a built-in pot filler and elegant finishes. Updates include a new furnace, hot water on demand, updated windows and a newly renovated main floor bathroom. Relax on the charming covered verandah, complete with a classic porch swing, ideal for enjoying quiet evenings. The upper level houses three bright bedrooms and a second full bathroom. A standout feature is the self-contained studio apartment on the upper floor; with its own separate entrance, it serves as a fantastic mortgage helper or a private guest suite. The unfinished basement provides massive storage and separate laundry for the suite. This property offers a unique opportunity to own a piece of history with lots of updates already done. Whether you are looking for a great family home or a savvy investment, this heritage gem delivers on every front in Nelson’s most walkable neighbourhood. (id:47421)
Share
Listed By Bennett Family Real Estate
Data Provided By Association of Interior REALTORS®
MLS® Listing Number 10373232
Last Updated May 05, 2026
Property Summary
Property Type Detached

More like this:
Neighbourhood Nelson
Price History

Interested in obtaining the full price history for this property?
Contact us!Contact us! Our real estate professionals would be happy to provide a complete listing history with historical sold prices and dates.

Detailed Information
Bedrooms 4
Bathrooms 3
Features One Balcony
Listing Contract Date 2026-01-19
Municipal ID 013-737-627
Ownership Type Freehold
Property Type Single Family
Transaction Type For sale
Building
Appliances Refrigerator, Dishwasher, Dryer, Range - Gas, Washer
Architectural Style Other
Basement Type Full
Constructed Date 1901
Construction Style (Attachment) Detached
Cooling Type Central air conditioning
Exterior Finish Other
Fireplace Fuel Gas
Fireplace Present Yes
# of Fireplaces 1
Fireplace Type Unknown
Flooring Type Hardwood, Linoleum, Vinyl
Heating Type Baseboard heaters, Forced air
Roof Material Asphalt shingle
Roof Style Unknown
Stories Total 3
Type House
Utility Water Municipal water
Rooms
Room Level Dimensions Notes
Full bathroomSecond level7' x 9'5''
BedroomSecond level9'5'' x 11'5''
BedroomSecond level10' x 13'4''
Primary BedroomSecond level14'4'' x 10'6''
Mud roomMain level9'11'' x 6'5''
Full bathroomMain level6'9'' x 5'11''
OfficeMain level9'2'' x 5'11''
Living roomMain level15'6'' x 24'2''
Dining roomMain level6'8'' x 17'11''
KitchenMain level13'11'' x 17'11''
Primary BedroomAdditional Accommodation14'10'' x 8'2''
Living roomAdditional Accommodation13'7'' x 8'6''
Full bathroomAdditional Accommodation5'9'' x 6'6''
KitchenAdditional Accommodation14'10'' x 9'
Parking Spaces
Name Spaces
Street
Land
Total Size 0.1 acres
Fence Type Fence
Sewer Municipal sewage system
Size of Irregular Land 0.1
External Links

The information contained on this site is based in whole or in part on information that is provided under copyright by the Toronto Regional Real Estate Board (TRREB) or by members of The Canadian Real Estate Association (CREA), who are responsible for its accuracy. TRREB and CREA reproduce and distribute this information as a service for their members and assume no responsibility for its accuracy. All information displayed is believed to be accurate but is not guaranteed and should be independently verified. No warranties or representations of any kind are made with respect to the accuracy of such information.
The information provided herein must only be used by consumers that have a bona fide interest in the purchase, sale, or lease of real estate and may not be used for any commercial purpose or any other purpose.

FREE ESTIMATES ARE COMING

Reserve Your Spot To Be Notified
or

Coming soon to select cities
in North America

(We'll never share your details)