$649,000
FOR SALE

Detached Contemporary

Bedrooms: 3+1Bathrooms: 3

2574 New Glasgow Road
New Glasgow, PE C0A 1N0

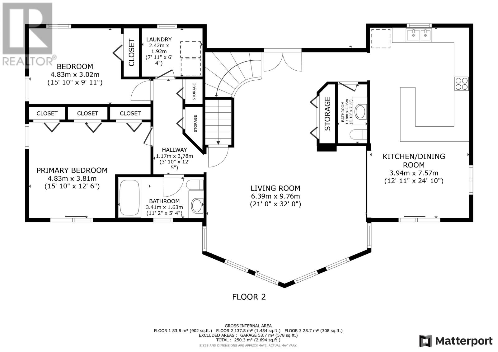
Stunner on over two private acres with southern exposure overlooking the rolling hills of New Glasgow. Main level: entrance opens to the living room with soaring ? two level ? ceilings, renovated kitchen opens to the dining area on the left, two bedrooms, full bath and separate laundry on the right. Curved staircase off the entrance leads to the loft area overlooking the living room and out through the 2nd story windows south over New Glasgow. Lower level: double garage, rec room, 3-piece bath, bedroom, utility room. Main level deck wraps around three sides of the home. There is an above ground pool in the back yard and an oversized shed. Hardwood trees dot the center of the property and evergreens provide privacy on the outer edges. A rare find. (id:47421)
Share
Listed By EXIT Realty PEI
Data Provided By Prince Edward Island Real Estate Association
MLS® Listing Number 202600025
Last Updated May 02, 2026
Property Summary
Property Type Detached

More like this:
Community New Glasgow
Price History

Interested in obtaining the full price history for this property?
Contact us!Contact us! Our real estate professionals would be happy to provide a complete listing history with historical sold prices and dates.

Detailed Information
Bedrooms 3+1
Bathrooms 3
Community Features School Bus
Equipment Water Heater
Features Paved driveway
Listing Contract Date 2026-01-02
Location Description New Glasgow Road in New Glasgow
Municipal ID 802637
Ownership Type Freehold
Pool Above ground pool
Property Type Single Family
Rental Equipment Water Heater
Structures Deck, Shed
Transaction Type For sale
Building
Appliances Oven - Propane, Dishwasher, Dryer - Electric, Washer, Refrigerator
Architectural Style Contemporary
Basement Development Finished
Basement Type Full (Finished)
Constructed Date 1994
Construction Style (Attachment) Detached
Cooling Type Air exchanger
Exterior Finish Wood siding
Fireplace Present Yes
Fireplace Type Woodstove
Flooring Type Carpeted, Ceramic Tile, Hardwood, Laminate
Foundation Type Poured Concrete
# of Half Bathrooms 1
Heating Fuel Oil, Wood
Heating Type Baseboard heaters, In Floor Heating
Total Finished Area 2869 sqft
Type House
Utility Water Well
Rooms
Room Level Dimensions Notes
OtherSecond level16.3 x 10.9 Loft
Recreational, Games roomLower level15.9 x 12
Bath (# pieces 1-6)Lower level5.7 x 7.2 (3pc)
BedroomLower level11.11 x 10.6
KitchenMain level12.9 x 15
Dining roomMain level12.9 x 9.11
Bath (# pieces 1-6)Main level3.11 x 6.1 (2pc)
Living roomMain level20.9 x 13.5
Bath (# pieces 1-6)Main level10.7 x 5.5
Primary BedroomMain level(11.9x12.2) + (4.3x6.6)
Laundry roomMain level7.9 x 6.3
BedroomMain level12.3 x 9.9
Parking Spaces
Name Spaces
Heated Garage
Land
Total Size 250 x 299 x 200 x 350 | 1 - 3 acres
Access Type Year-round access
Acreage Yes
Sewer Septic System
Size of Irregular Land 250 x 299 x 200 x 350

The information contained on this site is based in whole or in part on information that is provided under copyright by the Toronto Regional Real Estate Board (TRREB) or by members of The Canadian Real Estate Association (CREA), who are responsible for its accuracy. TRREB and CREA reproduce and distribute this information as a service for their members and assume no responsibility for its accuracy. All information displayed is believed to be accurate but is not guaranteed and should be independently verified. No warranties or representations of any kind are made with respect to the accuracy of such information.
The information provided herein must only be used by consumers that have a bona fide interest in the purchase, sale, or lease of real estate and may not be used for any commercial purpose or any other purpose.

FREE ESTIMATES ARE COMING

Reserve Your Spot To Be Notified
or

Coming soon to select cities
in North America

(We'll never share your details)