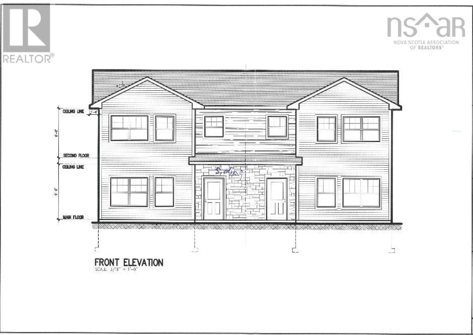
This brand new, three bedroom, 1.5 bath family home is now under construction. These quality built homes are conveniently located on the bus route. Sidewalks lead you to downtown, where you can enjoy many amenities, including shopping, theatre, the gym, dining, the Veterinary and many more! It's just a short drive to Acadia University, many local award-winning wineries, Hwy # 101 access and Kingsport, where you can enjoy views of some of the highest tides in the world. The kitchen boasts ample cabinets, with a peninsula and space for a dishwasher. You can access the deck via patio doors from the dining area. The laundry is conveniently located on the upper level near the bedrooms. Large windows allow for lots of natural light. Easy care vinyl plank flooring is found throughout the home, except the stairway, where you'll find non-slip carpet. Lot to be subdivided prior to closing. Total lot size to be approx 5500 sf, but will be determined when divided. (id:47421)
Interested in obtaining the full price history for this property? Contact us!Contact us! Our real estate professionals would be happy to provide a complete listing history with historical sold prices and dates.
Detailed Information
Bedrooms
3
Bathrooms
2
Amenities Nearby
Golf Course, Park, Playground, Public Transit, Shopping, Place of Worship
Community Features
Recreational Facilities, School Bus
Listing Contract Date
2025-08-19
Location Description
Highbury Road to Moores Landing, left to Kara Anne. Watch for sign on the left.
Municipal ID
55557227
Ownership Type
Freehold
Property Type
Single Family
Transaction Type
For sale
Building
Basement Type
None
Construction Style (Attachment)
Semi-detached
Cooling Type
Heat Pump
Exterior Finish
Vinyl
Flooring Type
Carpeted, Vinyl Plank
Foundation Type
Concrete Slab
# of Half Bathrooms
1
Stories Total
2
Total Finished Area
1520 sqft
Type
House
Utility Water
Municipal water
Rooms
Room
Level
Dimensions
Notes
Primary Bedroom
Second level
12.6 x 14
Other
Second level
8.10x8.3 - jog walkin
Bath (# pieces 1-6)
Second level
6.4 x 8.8
Bedroom
Second level
10.2 x 10.7
Bedroom
Second level
10.2 x 8.3
Laundry room
Second level
6. x 9
Foyer
Main level
4.11 x 6.3
Living room
Main level
12. x 20.7
Dining room
Main level
10.8 x 10.5
Kitchen
Main level
12. x 10.5
Bath (# pieces 1-6)
Main level
6.1 x 6.9
Utility room
Main level
3.6 x 4.11
Parking Spaces
Name
Spaces
Paved Yard
Land
Total Size
0.116 acres
Amenities
Golf Course, Park, Playground, Public Transit, Shopping, Place of Worship
Landscape Features
Partially landscaped
Sewer
Municipal sewage system
Size of Irregular Land
0.116
Terms of Use
Please review and agree to the following terms of use to access the listing content:
REALTOR®, REALTORS®, and the REALTOR® logo are certification marks that are owned by REALTOR® Canada Inc. and licensed exclusively to The Canadian Real Estate Association (CREA). These certification marks identify real estate professionals who are members of CREA and who must abide by CREA's By-Laws, Rules, and the REALTOR® Code. The MLS® trademark and the MLS® logo are owned by CREA and identify the quality of services provided by real estate professionals who are members of CREA;
The information contained on this site is based in whole or in part on information that is provided by members of CREA, who are responsible for its accuracy. CREA reproduces and distributes this information as a service for its members and assumes no responsibility for its accuracy;
This website is operated by a brokerage or salesperson who is a member of CREA;
The listing content on this website is protected by copyright and other laws, and is intended solely for the private, non-commercial use by individuals. Any other reproduction, distribution or use of the content, in whole or in part, is specifically forbidden. The prohibited uses include commercial use, "screen scraping", "database scraping", and any other activity intended to collect, store, reorganize or manipulate data on the pages produced by or displayed on this website.
The information contained on this site is based in whole or in part on information that is provided under copyright by the Toronto Regional Real Estate Board (TRREB) or by members of The Canadian Real Estate Association (CREA), who are responsible for its accuracy. TRREB and CREA reproduce and distribute this information as a service for their members and assume no responsibility for its accuracy. All information displayed is believed to be accurate but is not guaranteed and should be independently verified. No warranties or representations of any kind are made with respect to the accuracy of such information. The information provided herein must only be used by consumers that have a bona fide interest in the purchase, sale, or lease of real estate and may not be used for any commercial purpose or any other purpose.