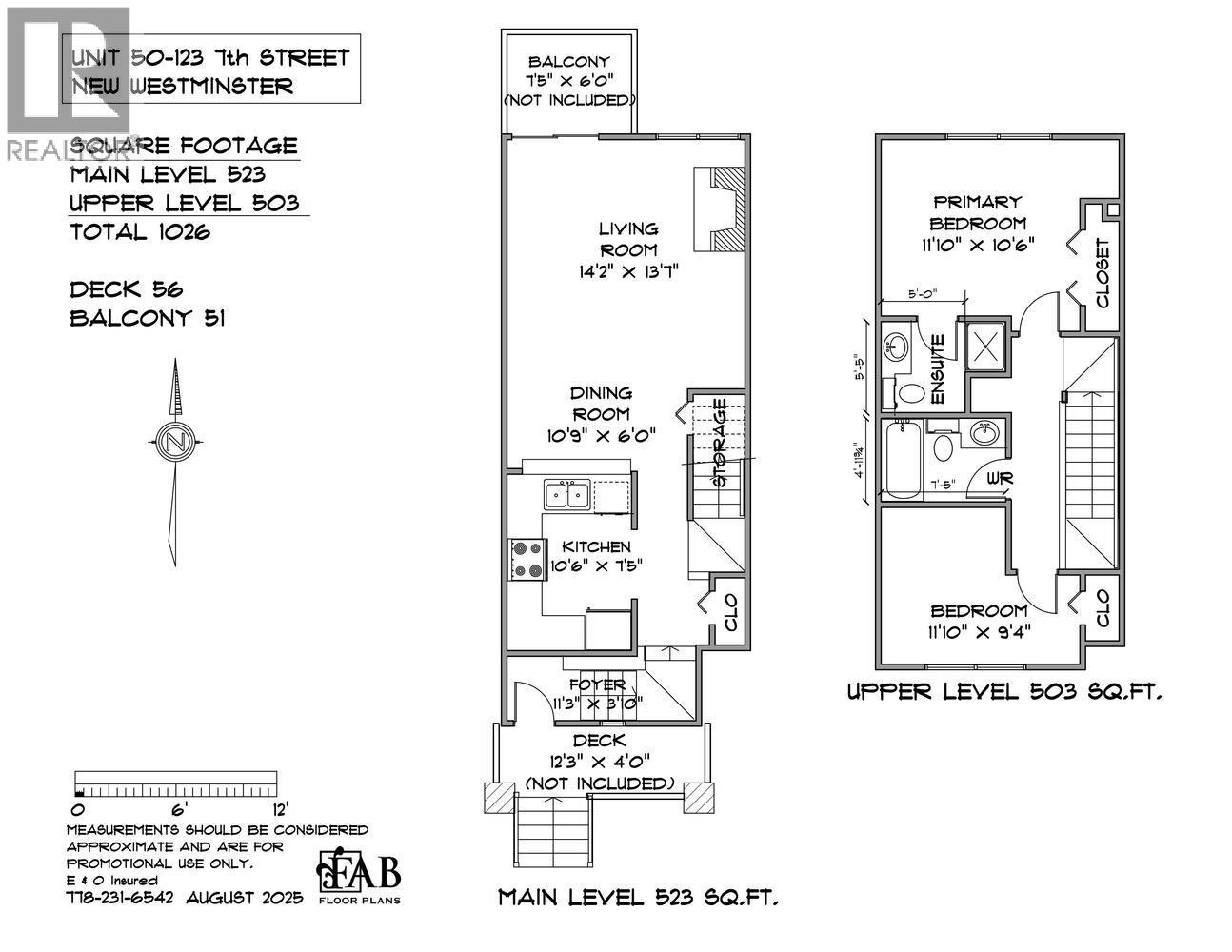
Welcome to Royal City Terrace, a well-managed townhouse community in New Westminster´s Brow of the Hill neighborhood. This bright 2-bedroom, 2-bathroom home offers 1,026 sq. ft. over two levels. Built in 1999, it features electric baseboard heating, a durable stucco and wood exterior, and asphalt shingle roofing. Includes one common property parking stall (#30); no storage locker. Close to parks, schools, shopping, and transit, this is a great fit for first-time buyers, downsizers, or investors seeking a low-maintenance home in a central location. Keys at ReMax All Points. Mon. to Fri. 9 to 5. // Sat. & Sun. 10 to 4. Tks Luke (id:47421)
Interested in obtaining the full price history for this property? Contact us!Contact us! Our real estate professionals would be happy to provide a complete listing history with historical sold prices and dates.
Detailed Information
Bedrooms
2
Bathrooms
2
Amenities Nearby
Recreation
Community Features
Pets Allowed With Restrictions, Rentals Allowed With Restrictions
Features
Central location, Private setting, Gated community
Maintenance Fee Payment Frequency
Monthly
Municipal ID
024-532-223
Ownership Type
Strata
# of Parking Spaces
1
Property Type
Single Family
Transaction Type
For sale
Views
View
Building
Amenities
Laundry - In Suite
Architectural Style
2 Level
Constructed Date
1999
Heating Fuel
Electric
Heating Type
Baseboard heaters
Type
Row / Townhouse
Land
Total Size
0 square feet
Amenities
Recreation
Terms of Use
Please review and agree to the following terms of use to access the listing content:
REALTOR®, REALTORS®, and the REALTOR® logo are certification marks that are owned by REALTOR® Canada Inc. and licensed exclusively to The Canadian Real Estate Association (CREA). These certification marks identify real estate professionals who are members of CREA and who must abide by CREA's By-Laws, Rules, and the REALTOR® Code. The MLS® trademark and the MLS® logo are owned by CREA and identify the quality of services provided by real estate professionals who are members of CREA;
The information contained on this site is based in whole or in part on information that is provided by members of CREA, who are responsible for its accuracy. CREA reproduces and distributes this information as a service for its members and assumes no responsibility for its accuracy;
This website is operated by a brokerage or salesperson who is a member of CREA;
The listing content on this website is protected by copyright and other laws, and is intended solely for the private, non-commercial use by individuals. Any other reproduction, distribution or use of the content, in whole or in part, is specifically forbidden. The prohibited uses include commercial use, "screen scraping", "database scraping", and any other activity intended to collect, store, reorganize or manipulate data on the pages produced by or displayed on this website.
The information contained on this site is based in whole or in part on information that is provided under copyright by the Toronto Regional Real Estate Board (TRREB) or by members of The Canadian Real Estate Association (CREA), who are responsible for its accuracy. TRREB and CREA reproduce and distribute this information as a service for their members and assume no responsibility for its accuracy. All information displayed is believed to be accurate but is not guaranteed and should be independently verified. No warranties or representations of any kind are made with respect to the accuracy of such information. The information provided herein must only be used by consumers that have a bona fide interest in the purchase, sale, or lease of real estate and may not be used for any commercial purpose or any other purpose.