Industrial
319 Lake Road
(303 Lake Road)
Noel, NS
B0N 0B4
| Listed By | Keller Williams Select Realty (Branch), Keller Williams Select Realty |
|---|---|
| Data Provided By | Nova Scotia Association of REALTORS® |
| MLS® Listing Number | 202527685 |
| Last Updated | May 26, 2026 |
| Property Type |
Industrial
More like this: |
|---|---|
| Community | Noel |
Interested in obtaining the full price history for this property?
Contact us!Contact us! Our real estate professionals would be happy to provide a complete listing history with historical sold prices and dates.
| Listing Contract Date | 2025-11-12 |
|---|---|
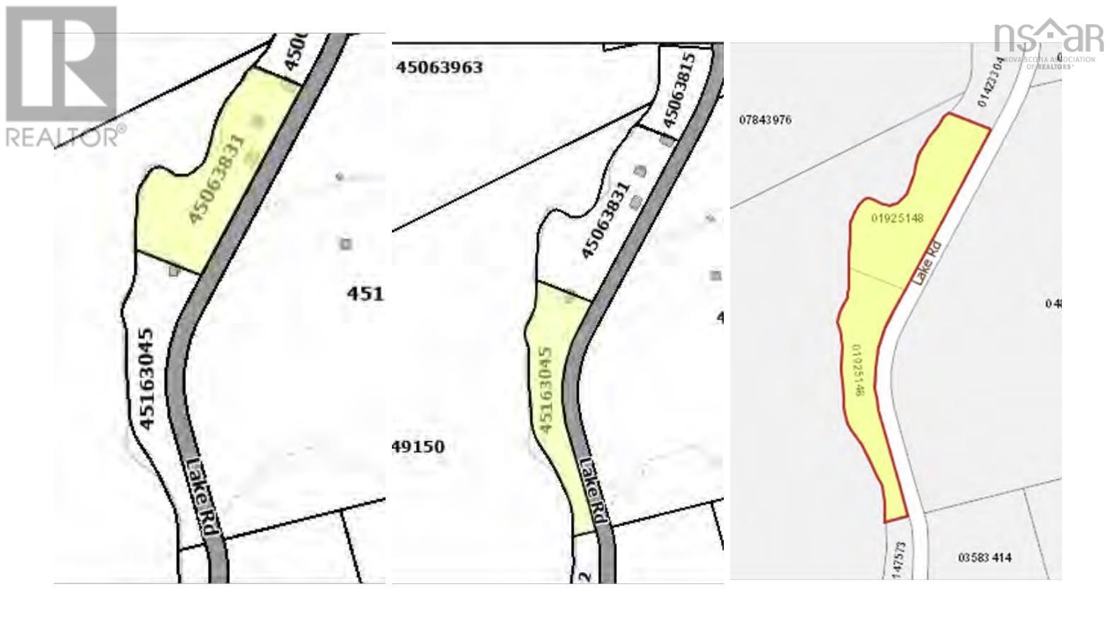
| Location Description | Highway 102, Take Exit 8 at Elsmdale, turn left at the top of the ramp and continue on highway 214, turn left ont highway 14 through nine mile river, continue straight onto Highway 202, turn right onto highwy 354, Turn right onto Lake Road, # 319 is on your left. |
| Municipal ID | 45063831 |
| Ownership Type | Freehold |
| Property Type | Industrial |
| Transaction Type | For sale |
| Business Type | Other |
|---|---|
| Business Subtype | Other |
| Constructed Date | 1978 |
|---|---|
| Cooling Type | Heat Pump |
| Flooring Type | Concrete, Wood, Other |
| Total Finished Area | 6413 sqft |
| Utility Water | Ground-level well |
| Name | Spaces |
|---|---|
| Gravel |
| Total Size | 4 acres |
|---|---|
| Acreage | Yes |
| Size of Irregular Land | 4 |
The information contained on this site is based in whole or in part on information that is provided under copyright by the Toronto Regional Real Estate Board (TRREB) or by members of The Canadian Real Estate Association (CREA), who are responsible for its accuracy. TRREB and CREA reproduce and distribute this information as a service for their members and assume no responsibility for its accuracy. All information displayed is believed to be accurate but is not guaranteed and should be independently verified. No warranties or representations of any kind are made with respect to the accuracy of such information.
The information provided herein must only be used by consumers that have a bona fide interest in the purchase, sale, or lease of real estate and may not be used for any commercial purpose or any other purpose.
FREE ESTIMATES ARE COMING
Reserve Your Spot To Be Notified
Coming soon to select cities
in North America
(We'll never share your details)







































