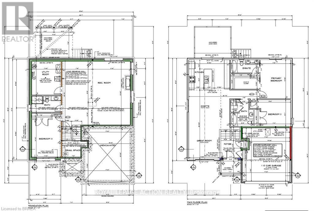
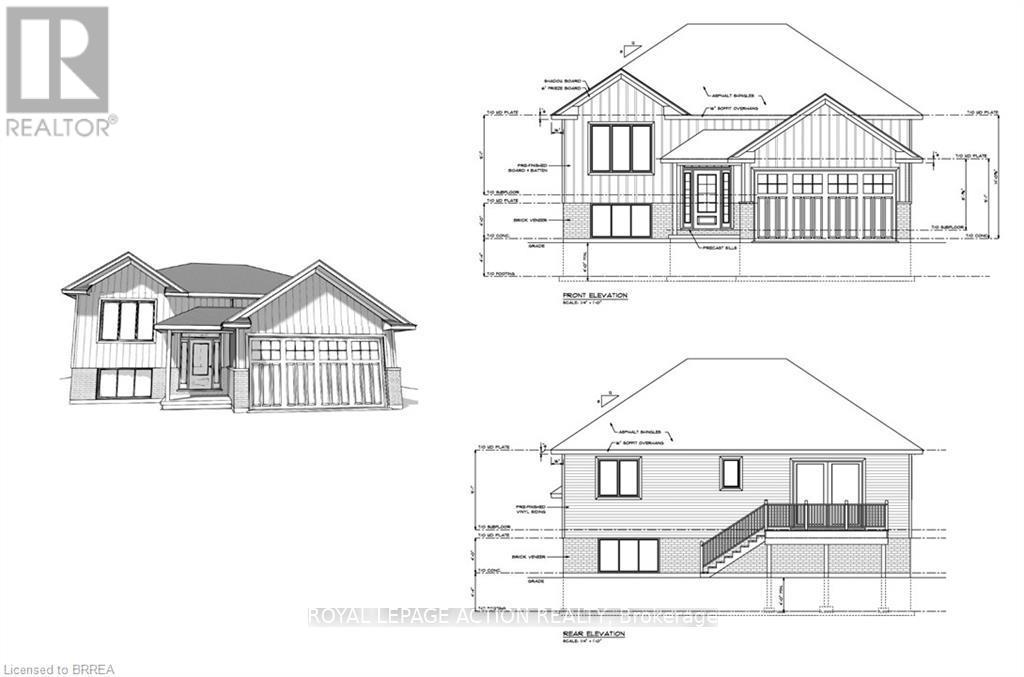
Local and trusted custom builder Samarlin Homes is proud to build their incredibly popular detached raised bungalow with the quality and care you deserve. The main floor boasts 2 bedrooms and 2 bathrooms and main floor laundry with an open concept floor plan great for families or entertaining alike. Complete with 9' ceilings, electric fireplace, laminate floors, a large kitchen with lots of storage and quartz countertops and an ensuite in the primary bedroom. The backyard will have a 10x12 wood deck off the kitchen. Located in the serene Cedar Park development in Waterford you are just steps away from trails leading to the Waterford ponds, a quick drive to grocery stores and local restaurants, easy access to HWY 24 and a quick drive to Simcoe and Port Dover. *Finished basement is optional at an additional cost - Inquire for more info*. (id:47421)
Interested in obtaining the full price history for this property? Contact us!Contact us! Our real estate professionals would be happy to provide a complete listing history with historical sold prices and dates.
Detailed Information
Bedrooms
2
Bathrooms
2
Lot
49.17 x 109 ft
Amenities Nearby
Schools
Community Features
School Bus
Features
Sump Pump
Listing Contract Date
2025-06-10
Location Description
Cross Streets: Washington Street. ** Directions: Hwy 24 to Thompson Road to Washington Street to Charles Street.
Ownership Type
Freehold
# of Parking Spaces
3
Property Type
Single Family
Structures
Deck
Transaction Type
For sale
Zoning Description
R1-A
Building
Age
New building
Amenities
Fireplace(s)
Appliances
Garage door opener remote(s)
Architectural Style
Raised bungalow
Basement Development
Unfinished
Basement Type
Full (Unfinished)
Construction Style (Attachment)
Detached
Cooling Type
Central air conditioning
Exterior Finish
Brick, Vinyl siding
Fire Protection
Smoke Detectors
Fireplace Present
Yes
# of Fireplaces
1
Flooring Type
Hardwood, Tile
Foundation Type
Poured Concrete
Heating Fuel
Natural gas
Heating Type
Forced air
Stories Total
1
Type
House
Utility Water
Municipal water
Rooms
Room
Level
Dimensions
Notes
Dining room
Main level
3.96 m x 3.51 m
Kitchen
Main level
3.51 m x 4.7 m
Living room
Main level
3.96 m x 3.51 m
Primary Bedroom
Main level
4.5 m x 3.51 m
Bathroom
Main level
Measurements not available
Bedroom 2
Main level
3.07 m x 3.45 m
Bathroom
Main level
Measurements not available
Laundry room
Main level
Measurements not available
Parking Spaces
Name
Spaces
Attached Garage
Garage
Land
Total Size
49.2 x 109 FT
Amenities
Schools
Sewer
Sanitary sewer
Size of Irregular Land
49.2 x 109 FT
Surface Water
Lake/Pond
Terms of Use
Please review and agree to the following terms of use to access the listing content:
REALTOR®, REALTORS®, and the REALTOR® logo are certification marks that are owned by REALTOR® Canada Inc. and licensed exclusively to The Canadian Real Estate Association (CREA). These certification marks identify real estate professionals who are members of CREA and who must abide by CREA's By-Laws, Rules, and the REALTOR® Code. The MLS® trademark and the MLS® logo are owned by CREA and identify the quality of services provided by real estate professionals who are members of CREA;
The information contained on this site is based in whole or in part on information that is provided by members of CREA, who are responsible for its accuracy. CREA reproduces and distributes this information as a service for its members and assumes no responsibility for its accuracy;
This website is operated by a brokerage or salesperson who is a member of CREA;
The listing content on this website is protected by copyright and other laws, and is intended solely for the private, non-commercial use by individuals. Any other reproduction, distribution or use of the content, in whole or in part, is specifically forbidden. The prohibited uses include commercial use, "screen scraping", "database scraping", and any other activity intended to collect, store, reorganize or manipulate data on the pages produced by or displayed on this website.
The information contained on this site is based in whole or in part on information that is provided under copyright by the Toronto Regional Real Estate Board (TRREB) or by members of The Canadian Real Estate Association (CREA), who are responsible for its accuracy. TRREB and CREA reproduce and distribute this information as a service for their members and assume no responsibility for its accuracy. All information displayed is believed to be accurate but is not guaranteed and should be independently verified. No warranties or representations of any kind are made with respect to the accuracy of such information. The information provided herein must only be used by consumers that have a bona fide interest in the purchase, sale, or lease of real estate and may not be used for any commercial purpose or any other purpose.