Build your dream home on a stunning, half-acre private lot! This exceptional 69ft wide x 317 ft deep lot offers a rare opportunity to create a custom home in the charming community of Listowel. Nestled in a picturesque setting at the end of a cul-de sac and set back from the road, this expansive property provides the perfect canvas for a thoughtfully designed residence that blends modern luxury with functional living. You have the opportunity to craft a home that showcases architectural elegance, high-end finishes, and meticulous craftsmanship. Imagine soaring ceilings and expansive windows that capture breathtaking views, an open-concept living space designed for seamless entertaining, and a chef-inspired kitchen featuring premium cabinetry, quartz countertops, and an optional butler’s pantry for extra storage and convenience. For those who appreciate refined details, consider features such as a striking floating staircase with glass railings, a frameless glass-enclosed home office, or a statement wine display integrated into your dining space. Design your upper level with spacious bedrooms and spa-inspired en-suites. Extend your living space with a fully finished basement featuring oversized windows, a bright recreation area, and an additional bedroom or home gym. Currently available for pre-construction customization, this is your chance to build the home you’ve always envisioned in a tranquil and scenic location. MODEL HOME LOCATED AT 1060 WALTON AVE. (id:47421)
Interested in obtaining the full price history for this property? Contact us!Contact us! Our real estate professionals would be happy to provide a complete listing history with historical sold prices and dates.
Detailed Information
Bedrooms
3+1
Bathrooms
5
Lot
69 x 317 ft
Amenities Nearby
Golf Nearby
Community Features
Quiet Area
Features
Cul-de-sac
Listing Contract Date
2025-09-14
Location Description
Walton Ave
Ownership Type
Freehold
# of Parking Spaces
8
Property Type
Single Family
Transaction Type
For sale
Zoning Description
R1-8
Building
Appliances
Water softener
Architectural Style
2 Level
Basement Development
Finished
Basement Type
Full (Finished)
Construction Style (Attachment)
Detached
Cooling Type
Central air conditioning
Exterior Finish
Brick Veneer, Stone, Vinyl siding
# of Half Bathrooms
1
Heating Fuel
Natural gas
Heating Type
Forced air
Stories Total
2
Type
House
Utility Water
Municipal water
Rooms
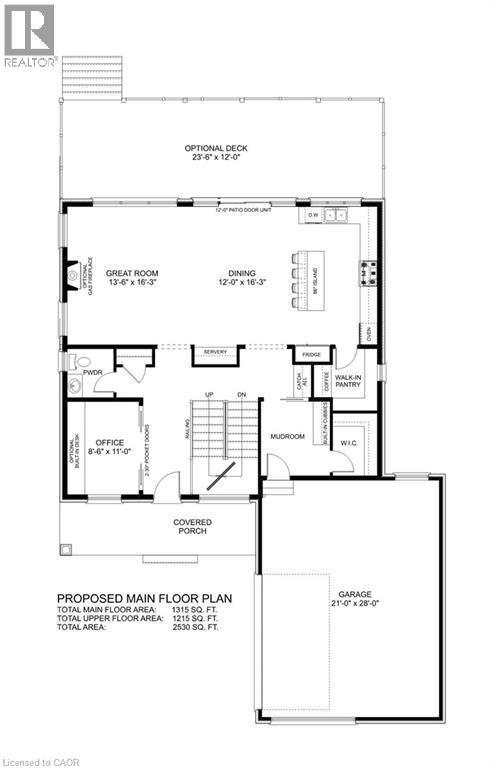
Room
Level
Dimensions
Notes
Bedroom
Second level
11'5'' x 13'4''
Bedroom
Second level
14'0'' x 11'4''
3pc Bathroom
Second level
1'0'' x 1'0''
5pc Bathroom
Second level
1'0'' x 1'0''
4pc Bathroom
Second level
1'0'' x 1'0''
Bedroom
Second level
14'4'' x 15'2''
Bedroom
Basement
1'0'' x 1'0''
3pc Bathroom
Basement
1'0'' x 1'0''
Office
Main level
8'6'' x 11'0''
2pc Bathroom
Main level
1'0'' x 1'0''
Kitchen/Dining room
Main level
12'0'' x 16'3''
Great room
Main level
13'6'' x 16'3''
Parking Spaces
Name
Spaces
Attached Garage
Land
Total Size
1/2 - 1.99 acres
Amenities
Golf Nearby
Sewer
Municipal sewage system
Terms of Use
Please review and agree to the following terms of use to access the listing content:
REALTOR®, REALTORS®, and the REALTOR® logo are certification marks that are owned by REALTOR® Canada Inc. and licensed exclusively to The Canadian Real Estate Association (CREA). These certification marks identify real estate professionals who are members of CREA and who must abide by CREA's By-Laws, Rules, and the REALTOR® Code. The MLS® trademark and the MLS® logo are owned by CREA and identify the quality of services provided by real estate professionals who are members of CREA;
The information contained on this site is based in whole or in part on information that is provided by members of CREA, who are responsible for its accuracy. CREA reproduces and distributes this information as a service for its members and assumes no responsibility for its accuracy;
This website is operated by a brokerage or salesperson who is a member of CREA;
The listing content on this website is protected by copyright and other laws, and is intended solely for the private, non-commercial use by individuals. Any other reproduction, distribution or use of the content, in whole or in part, is specifically forbidden. The prohibited uses include commercial use, "screen scraping", "database scraping", and any other activity intended to collect, store, reorganize or manipulate data on the pages produced by or displayed on this website.
The information contained on this site is based in whole or in part on information that is provided under copyright by the Toronto Regional Real Estate Board (TRREB) or by members of The Canadian Real Estate Association (CREA), who are responsible for its accuracy. TRREB and CREA reproduce and distribute this information as a service for their members and assume no responsibility for its accuracy. All information displayed is believed to be accurate but is not guaranteed and should be independently verified. No warranties or representations of any kind are made with respect to the accuracy of such information. The information provided herein must only be used by consumers that have a bona fide interest in the purchase, sale, or lease of real estate and may not be used for any commercial purpose or any other purpose.