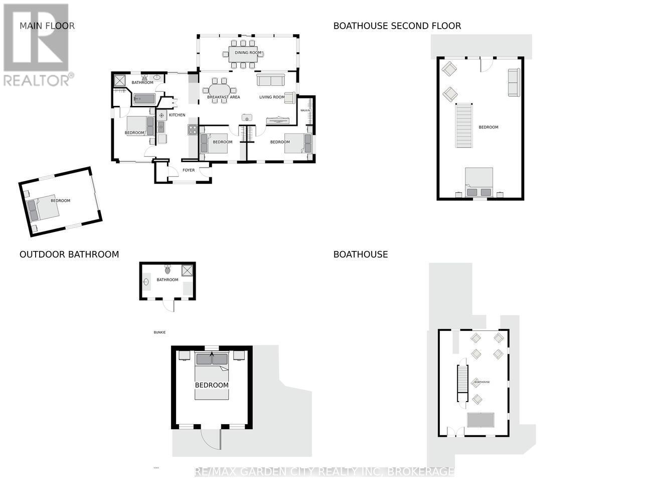
A Rare Waterfront Gem on Lake Huron! Don't miss this exceptional opportunity to own a four-season home or cottage on the pristine shores of Lake Huron. With 170 feet of gradual shoreline, this beautifully maintained property offers the perfect setting for unforgettable lakeside living. The main residence, 1179 sq. ft. of thoughtfully designed space, features one-level living with 3 bedrooms and a 4-piece bath. An open concept living and dining area is filled with natural light, showcasing picturesque lake views and a cozy woodstove. The modern kitchen includes stone countertops, under-cabinet lighting, and convenient built-in laundry. This turn-key retreat also includes a dry boathouse, detached garage, and charming guest accommodations. The boathouse is a perfect place to unwind, relax, or play games - rain or shine. The upper-level suite offers panoramic lake views from a private balcony, ideal for guests or extended family. The additional bunkies with hydro provide extra comfort and versatility. Outdoor living is at its finest here! Entertain with ease using the outdoor grill station, or relax along stone pathways that lead through landscaped grounds, designed for privacy and beauty. Swim, kayak, or simply take in the stunning sunsets over the lake - the clean, rocky shoreline is perfect for it all. Located just a short drive from Tobermorys shops, restaurants, and recreational attractions, this property offers a unique blend of serenity and convenience. Whether you're seeking a peaceful getaway or a place to host family and friends, this Lake Huron retreat is ready to welcome you. Are you ready to explore? (id:47421)
Share
Listed By
RE/MAX GARDEN CITY REALTY INC, Brokerage, RE/MAX Grey Bruce Realty Inc.
Interested in obtaining the full price history for this property? Contact us!Contact us! Our real estate professionals would be happy to provide a complete listing history with historical sold prices and dates.
Detailed Information
Bedrooms
3
Bathrooms
1
Lot
70 x 120 ft
Equipment
None
Property Easement
Unknown
Features
Cul-de-sac, Wooded area, Irregular lot size, Rocky, Rolling, Partially cleared, Level, Carpet Free, Guest Suite
Listing Contract Date
2025-08-26
Location Description
Cross Streets: Hay Bay Rd & Simpson Ave. ** Directions: Head North on Hwy 6, Turn Left onto Hay Bay Rd, Turn right onto Simpson Ave, Follow the Signs, Destination will be on the Left.
Ownership Type
Freehold
# of Parking Spaces
4
Property Type
Single Family
Rental Equipment
None
Structures
Deck, Patio(s), Outbuilding, Boathouse
Transaction Type
For sale
Views
Lake view, View of water, Direct Water View
Waterfront Type
Waterfront on lake
Waterfront Name
Lake Huron
Zoning Description
R2
Building
Age
51 to 99 years
Amenities
Fireplace(s), Separate Heating Controls
Appliances
Water Heater, Water softener, Water Treatment, Dishwasher, Dryer, Furniture, Stove, Washer, Window Coverings, Refrigerator
Architectural Style
Bungalow
Basement Type
None
Construction Style (Attachment)
Detached
Construction Style (Other)
Seasonal
Cooling Type
None
Exterior Finish
Wood
Fire Protection
Smoke Detectors
Fireplace Present
Yes
# of Fireplaces
1
Flooring Type
Tile, Hardwood
Foundation Type
Concrete, Slab
Heating Fuel
Electric
Heating Type
Baseboard heaters
Stories Total
1
Type
House
Utility Water
Drilled Well
Rooms
Room
Level
Dimensions
Notes
Foyer
Main level
1.28 m x 0.88 m
Kitchen
Main level
5.88 m x 2.82 m
Bedroom
Main level
3.36 m x 2.86 m
Bathroom
Main level
2.17 m x 2.15 m
Living room
Main level
6.65 m x 3.6 m
Dining room
Main level
6.65 m x 2.3 m
Bedroom 2
Main level
3.31 m x 2.42 m
Primary Bedroom
Main level
4.47 m x 2.42 m
Other
Main level
1.81 m x 1.13 m
Parking Spaces
Name
Spaces
Detached Garage
Garage
Utilities
Type
Description
Electricity
Installed
Wireless
Available
Electricity Connected
Connected
Telephone
Nearby
Land
Total Size
70 x 120 FT ; See surveys in Documents | 1/2 - 1.99 acres
Access Type
Year-round access, Private Docking
Sewer
Septic System
Size of Irregular Land
70 x 120 FT ; See surveys in Documents
Surface Water
Lake/Pond
Terms of Use
Please review and agree to the following terms of use to access the listing content:
REALTOR®, REALTORS®, and the REALTOR® logo are certification marks that are owned by REALTOR® Canada Inc. and licensed exclusively to The Canadian Real Estate Association (CREA). These certification marks identify real estate professionals who are members of CREA and who must abide by CREA's By-Laws, Rules, and the REALTOR® Code. The MLS® trademark and the MLS® logo are owned by CREA and identify the quality of services provided by real estate professionals who are members of CREA;
The information contained on this site is based in whole or in part on information that is provided by members of CREA, who are responsible for its accuracy. CREA reproduces and distributes this information as a service for its members and assumes no responsibility for its accuracy;
This website is operated by a brokerage or salesperson who is a member of CREA;
The listing content on this website is protected by copyright and other laws, and is intended solely for the private, non-commercial use by individuals. Any other reproduction, distribution or use of the content, in whole or in part, is specifically forbidden. The prohibited uses include commercial use, "screen scraping", "database scraping", and any other activity intended to collect, store, reorganize or manipulate data on the pages produced by or displayed on this website.
The information contained on this site is based in whole or in part on information that is provided under copyright by the Toronto Regional Real Estate Board (TRREB) or by members of The Canadian Real Estate Association (CREA), who are responsible for its accuracy. TRREB and CREA reproduce and distribute this information as a service for their members and assume no responsibility for its accuracy. All information displayed is believed to be accurate but is not guaranteed and should be independently verified. No warranties or representations of any kind are made with respect to the accuracy of such information. The information provided herein must only be used by consumers that have a bona fide interest in the purchase, sale, or lease of real estate and may not be used for any commercial purpose or any other purpose.