$1,650
FOR RENT

Attached/Row House/Townhouse Bungalow

Bedrooms: 1Bathrooms: 1

18 Maple Golf Crescent #4
Northern Bruce Peninsula, ON N0H 2R0

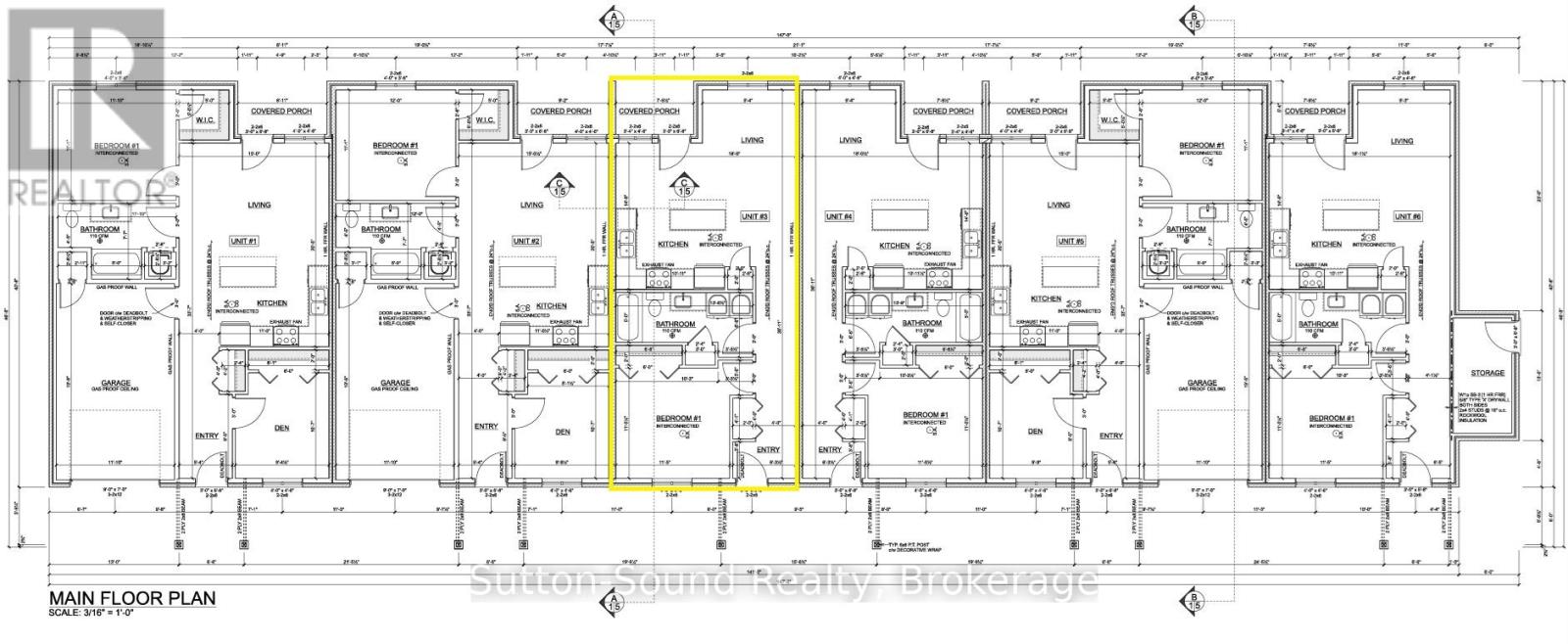
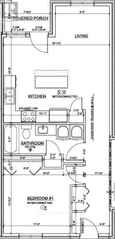
Welcome to Escarpment Heights, a thoughtfully designed retirement rental community offering the perfect blend of comfort, convenience, and peace of mind. These townhome-style apartments are an excellent option whether you're looking to enjoy year-round living in Tobermory or spend summers here and head south for the winter, knowing your property will be cared for with lawn maintenance and snow removal included. Each unit has been built with quality in mind, featuring open and spacious layouts, paved driveways, covered entrances, and private outdoor spaces. Deluxe units offer the added bonus of a single-car garage and den. Every home is equipped with in-floor heating, air conditioning, and 36" door widths for accessibility, along with a full suite of stainless steel appliances including fridge, stove, dishwasher, microwave, washer, and dryer. The Standard One-Bedroom unit provides 720 square feet of well-planned living space. It includes a large master bedroom with generous closet space and an open-concept kitchen, dining, and living area highlighted by a built-in pantry. The rental rate is $1,650 per month plus hydro, with in-floor heating, water, property taxes, lawn care, guest parking, and snow removal all included. Escarpment Heights is more than just a place to live - its a lifestyle. Set in the heart of Tobermory, its the perfect choice for those seeking a secure, low-maintenance retirement home surrounded by the natural beauty of the Bruce Peninsula. This is the ideal time to reserve your unit and secure your place in this sought-after community. Contact me today to arrange a viewing or learn more about availability at Escarpment Heights. (id:47421)
Share
Listed By Sutton-Sound Realty
Data Provided By OnePoint Association of REALTORS®
MLS® Listing Number X12387591
Last Updated Mar 27, 2026
Property Summary
Property Type Attached/Row House/Townhouse

More like this:
Community Northern Bruce Peninsula
Price History

Interested in obtaining the full price history for this property?
Contact us!Contact us! Our real estate professionals would be happy to provide a complete listing history with historical sold prices and dates.

Detailed Information
Bedrooms 1
Bathrooms 1
Lease Time Monthly
Listing Contract Date 2025-09-08
Location Description Cross Streets: Highway 6 / Maple Golf Cres. ** Directions: Heading north on Hwy 6, turn right onto Maple Golf Cres. Property is the first one on the right side.
Ownership Type Freehold
# of Parking Spaces 1
Property Type Single Family
Transaction Type For rent
Building
Age New building
Appliances Dishwasher, Dryer, Stove, Washer, Refrigerator
Architectural Style Bungalow
Basement Type None
Construction Style (Attachment) Attached
Cooling Type Wall unit
Exterior Finish Vinyl siding, Stone
Fire Protection Smoke Detectors
Foundation Type Concrete
Heating Fuel Propane
Heating Type Radiant heat
Stories Total 1
Type Row / Townhouse
Rooms
Room Level Dimensions Notes
KitchenMain level4.47 m x 5.53 m
BedroomMain level3.36 m x 3.48 m
BathroomMain level1.52 m x 4.14 m
Parking Spaces
Name Spaces
No Garage
Utilities
Type Description
ElectricityInstalled
Land
Sewer Septic System

The information contained on this site is based in whole or in part on information that is provided under copyright by the Toronto Regional Real Estate Board (TRREB) or by members of The Canadian Real Estate Association (CREA), who are responsible for its accuracy. TRREB and CREA reproduce and distribute this information as a service for their members and assume no responsibility for its accuracy. All information displayed is believed to be accurate but is not guaranteed and should be independently verified. No warranties or representations of any kind are made with respect to the accuracy of such information.
The information provided herein must only be used by consumers that have a bona fide interest in the purchase, sale, or lease of real estate and may not be used for any commercial purpose or any other purpose.

FREE ESTIMATES ARE COMING

Reserve Your Spot To Be Notified
or

Coming soon to select cities
in North America

(We'll never share your details)