Industrial
2770 Brighton Road
Oakville (WP Winston Park), ON
L6H 5T4
| Listed By | EXECUTIVE REAL ESTATE SERVICES LTD. |
|---|---|
| Data Provided By | Toronto Regional Real Estate Board |
| MLS® Listing Number | W12318981 |
| Last Updated | May 24, 2026 |
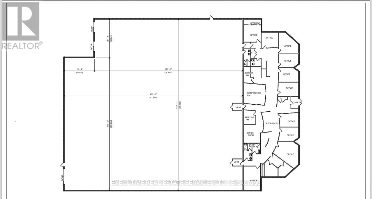
| Property Type |
Industrial
More like this: |
|---|---|
| Use | Warehouse |
| Community | 1021 - WP Winston Park |
Interested in obtaining the full price history for this property?
Contact us!Contact us! Our real estate professionals would be happy to provide a complete listing history with historical sold prices and dates.
| Bathrooms | 4 |
|---|---|
| Amenities Nearby | Highway, Public Transit |
| Equipment | Water Heater |
| Listing Contract Date | 2025-08-01 |
| Location Description | Cross Streets: Winston Park Dr & Brighton Rd. ** Directions: Take Hwy410 S merge onto QEW W toward Hamilton/Oakville exit at Ford Drive/Industrial Park area turn right onto Brighton Rd destination on your right. |
| # of Parking Spaces | 27 |
| Property Type | Industrial |
| Rental Equipment | Water Heater |
| Transaction Type | For sale |
| Zoning Description | E3 sp:43 |
| Business Type | Industrial |
|---|---|
| Business Subtype | Warehouse |
| Appliances | Furniture |
|---|---|
| Cooling Type | Partially air conditioned |
| Heating Type | Radiant heat |
| Type | Warehouse |
| Utility Water | Municipal water |
| Total Size | 1.3 acres |
|---|---|
| Acreage | Yes |
| Amenities | Highway, Public Transit |
| Size of Irregular Land | 1.3 |
The information contained on this site is based in whole or in part on information that is provided under copyright by the Toronto Regional Real Estate Board (TRREB) or by members of The Canadian Real Estate Association (CREA), who are responsible for its accuracy. TRREB and CREA reproduce and distribute this information as a service for their members and assume no responsibility for its accuracy. All information displayed is believed to be accurate but is not guaranteed and should be independently verified. No warranties or representations of any kind are made with respect to the accuracy of such information.
The information provided herein must only be used by consumers that have a bona fide interest in the purchase, sale, or lease of real estate and may not be used for any commercial purpose or any other purpose.
FREE ESTIMATES ARE COMING
Reserve Your Spot To Be Notified
Coming soon to select cities
in North America
(We'll never share your details)





