Welcome to 155 Cimarron Grove Circle, tucked away on a quiet street in the popular community of Cimarron. This well-designed 4-bedroom, 4-bathroom home offers the perfect blend of style and functionality. With real hardwood flooring, comfy carpet, and tiled bathrooms, this family home is sure to impress.The main floor features a bright, open-concept layout. The kitchen showcases maple cabinetry, Stainless steel appliances and a natural slate backsplash, flowing seamlessly into the inviting living room, complete with a cozy gas fireplace. A convenient 2-piece bathroom finishes off this level.Upstairs, the spacious primary bedroom includes a generously sized ensuite, creating a private retreat. Upper-floor laundry adds great convenience. 3 additional bedrooms, a bonus room/loft, and a 4-piece main bath complete the second level!The fully finished lower level offers even more living space with a large family room and another 4-piece bathroom. The heated double garage ensures year-round comfort.Outside, enjoy the sun on the large deck overlooking the ample pie-shaped yard—perfect for kids, gardening, or a future firepit area. With back-lane access, there’s room to store extra toys if needed.This beautifully designed home also features central air conditioning, offering everything you need in a fantastic location. (id:47421)
Interested in obtaining the full price history for this property? Contact us!Contact us! Our real estate professionals would be happy to provide a complete listing history with historical sold prices and dates.
Detailed Information
Bedrooms
4
Bathrooms
4
Lot
7.16 x 0 m
Amenities Nearby
Shopping
Features
Back lane, No Smoking Home
Listing Contract Date
2025-12-05
Municipal ID
0031342694
Ownership Type
Freehold
# of Parking Spaces
4
Plan
0513523
Property Type
Single Family
Structures
Deck
Transaction Type
For sale
Zoning Description
TN
Building
Appliances
Refrigerator, Oven - Electric, Water softener, Dishwasher, Window Coverings, Garage door opener
Basement Development
Finished
Basement Type
Full (Finished)
Constructed Date
2007
Construction Material
Wood frame
Construction Style (Attachment)
Detached
Cooling Type
Central air conditioning
Exterior Finish
Stone, Vinyl siding
Fireplace Present
Yes
# of Fireplaces
1
Flooring Type
Carpeted, Ceramic Tile, Hardwood
Foundation Type
Poured Concrete
# of Half Bathrooms
1
Heating Fuel
Natural gas
Heating Type
Forced air
Stories Total
2
Total Finished Area
1941.5 sqft
Type
House
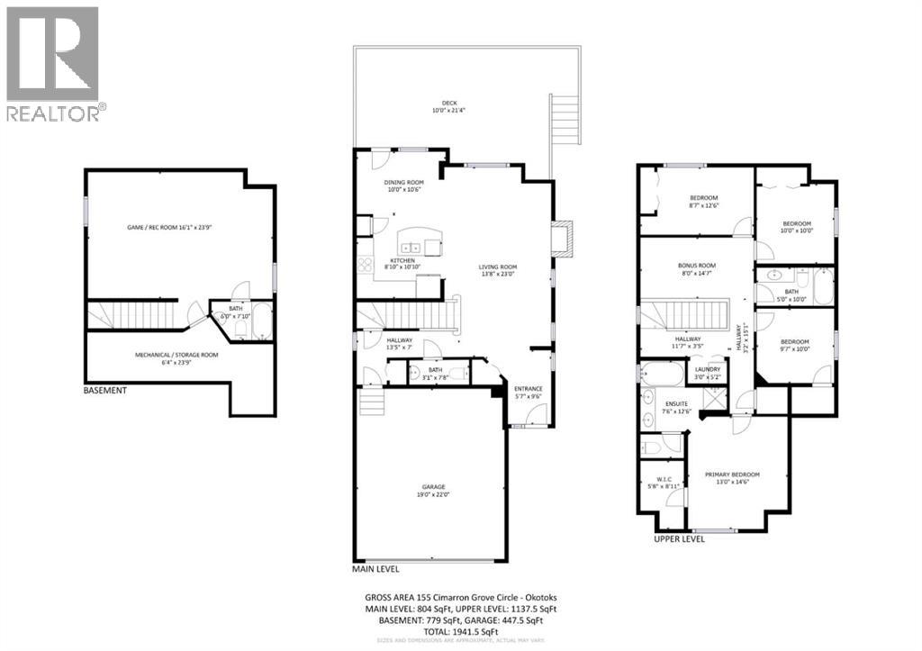
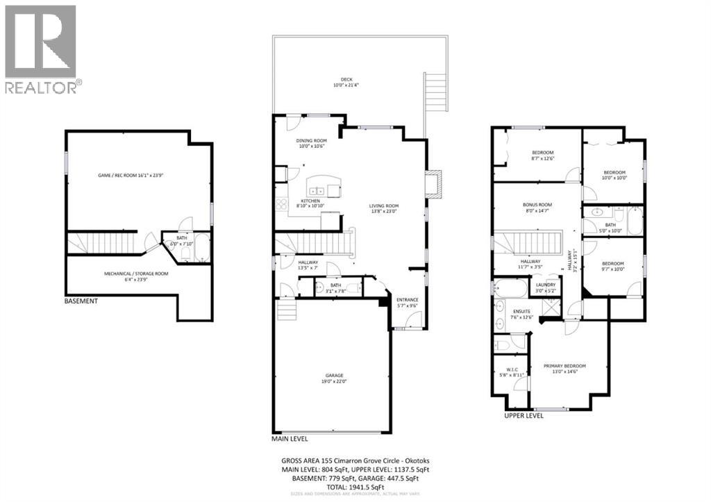
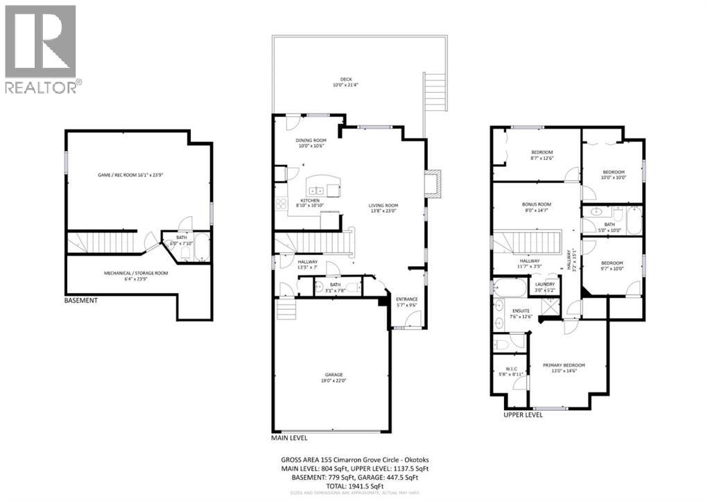
Rooms
Room
Level
Dimensions
Notes
Primary Bedroom
Second level
13.00 Ft x 14.50 Ft
Bedroom
Second level
8.58 Ft x 12.50 Ft
Bedroom
Second level
10.00 Ft x 10.00 Ft
Bedroom
Second level
9.58 Ft x 10.00 Ft
Bonus Room
Second level
8.00 Ft x 14.58 Ft
Laundry room
Second level
3.00 Ft x 5.17 Ft
5pc Bathroom
Second level
7.50 Ft x 12.50 Ft
4pc Bathroom
Second level
5.00 Ft x 10.00 Ft
4pc Bathroom
Lower level
5.00 Ft x 7.83 Ft
Recreational, Games room
Lower level
16.08 Ft x 23.75 Ft
Furnace
Lower level
6.33 Ft x 23.75 Ft
Other
Main level
5.58 Ft x 9.50 Ft
Living room
Main level
13.67 Ft x 23.00 Ft
Dining room
Main level
10.00 Ft x 10.50 Ft
Kitchen
Main level
8.83 Ft x 10.83 Ft
2pc Bathroom
Main level
3.08 Ft x 7.67 Ft
Parking Spaces
Name
Spaces
Attached Garage
2
Land
Total Size
3961 square feet
Amenities
Shopping
Fence Type
Fence
Landscape Features
Landscaped
Size of Irregular Land
3961.00
Terms of Use
Please review and agree to the following terms of use to access the listing content:
REALTOR®, REALTORS®, and the REALTOR® logo are certification marks that are owned by REALTOR® Canada Inc. and licensed exclusively to The Canadian Real Estate Association (CREA). These certification marks identify real estate professionals who are members of CREA and who must abide by CREA's By-Laws, Rules, and the REALTOR® Code. The MLS® trademark and the MLS® logo are owned by CREA and identify the quality of services provided by real estate professionals who are members of CREA;
The information contained on this site is based in whole or in part on information that is provided by members of CREA, who are responsible for its accuracy. CREA reproduces and distributes this information as a service for its members and assumes no responsibility for its accuracy;
This website is operated by a brokerage or salesperson who is a member of CREA;
The listing content on this website is protected by copyright and other laws, and is intended solely for the private, non-commercial use by individuals. Any other reproduction, distribution or use of the content, in whole or in part, is specifically forbidden. The prohibited uses include commercial use, "screen scraping", "database scraping", and any other activity intended to collect, store, reorganize or manipulate data on the pages produced by or displayed on this website.
The information contained on this site is based in whole or in part on information that is provided under copyright by the Toronto Regional Real Estate Board (TRREB) or by members of The Canadian Real Estate Association (CREA), who are responsible for its accuracy. TRREB and CREA reproduce and distribute this information as a service for their members and assume no responsibility for its accuracy. All information displayed is believed to be accurate but is not guaranteed and should be independently verified. No warranties or representations of any kind are made with respect to the accuracy of such information. The information provided herein must only be used by consumers that have a bona fide interest in the purchase, sale, or lease of real estate and may not be used for any commercial purpose or any other purpose.