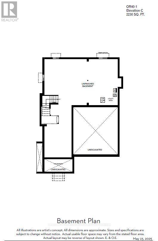
Offered by the Builder. Welcome to Five Creeks by Great Gulf - where luxury, nature, and modern living come together. This brand-new Fendley Model (Elevation B) sits on a premium ravine lot with a walkout to deck, offering sweeping natural views and the rare opportunity for a walkout basement. Designed with over 2,230 sq ft of elegant living space, this 4-bedroom, 4-bath detached home showcases 9-ft ceilings, an inviting gas fireplace, and sun-filled, open-concept living areas that seamlessly connect to the outdoors. The chef-inspired kitchen boasts quartz countertops, extended cabinetry, a stainless range hood, and a bright breakfast area with a convenient walk-in pantry and walkout to the deck overlooking the ravine - perfect for family gatherings or morning coffee. Upstairs, the primary retreat features his and hers walk-in closets, a freestanding tub, glass-enclosed shower, and double-sink vanity. Each secondary bedroom offers generous space, ensuite or semi-ensuite access, and walk-in closets - ideal for growing families. Built by one of Canada's most award-winning builders, Great Gulf, this home delivers quality craftsmanship and energy efficiency at every turn: triple-pane Energy Star windows, HRV air system, 200 AMP electrical service, rough-in EV charger, and full Tarion warranty for lasting peace of mind. Experience the privacy and tranquility of ravine living in Orangeville's newest master-planned community, just minutes from schools, shopping, and major highways. Walkout, finished basement available. A rare chance to own a luxury new-build backing onto nature - where every detail enhances comfort, connection, and lifestyle. (id:47421)
Interested in obtaining the full price history for this property? Contact us!Contact us! Our real estate professionals would be happy to provide a complete listing history with historical sold prices and dates.
Detailed Information
Bedrooms
4
Bathrooms
4
Lot
56.75 x 90.67 ft
Amenities Nearby
Park, Schools
Equipment
Water Heater
Features
Flat site
Listing Contract Date
2025-10-30
Location Description
Cross Streets: Blind Line/Hansen Blvd intersection, just west of Meyer Dr. & Mason St. ** Directions: Blind Line/Hansen Blvd intersection, just westof Meyer Dr. & Mason St.
Ownership Type
Freehold
# of Parking Spaces
4
Property Type
Single Family
Rental Equipment
Water Heater
Structures
Deck
Transaction Type
For sale
Building
Age
New building
Amenities
Fireplace(s)
Appliances
Central Vacuum
Basement Development
Finished,Unfinished
Basement Features
Walk out
Basement Type
N/A (Finished), N/A (Unfinished), N/A
Construction Style (Attachment)
Detached
Cooling Type
None
Exterior Finish
Vinyl siding, Brick
Fire Protection
Smoke Detectors
Fireplace Present
Yes
# of Fireplaces
1
Flooring Type
Hardwood
Foundation Type
Concrete
# of Half Bathrooms
1
Heating Fuel
Natural gas
Heating Type
Forced air
Stories Total
2
Type
House
Utility Water
Municipal water
Rooms
Room
Level
Dimensions
Notes
Primary Bedroom
Second level
3.66 m x 4.3 m
Bedroom 2
Second level
3.54 m x 2.87 m
Bedroom 3
Second level
3.47 m x 3.35 m
Bedroom 4
Second level
2.74 m x 3.05 m
Great room
Main level
3.66 m x 5.74 m
Kitchen
Main level
2.56 m x 4.48 m
Eating area
Main level
3.02 m x 4.48 m
Parking Spaces
Name
Spaces
Garage
Land
Total Size
56.8 x 90.7 FT
Amenities
Park, Schools
Sewer
Sanitary sewer
Size of Irregular Land
56.8 x 90.7 FT
Terms of Use
Please review and agree to the following terms of use to access the listing content:
REALTOR®, REALTORS®, and the REALTOR® logo are certification marks that are owned by REALTOR® Canada Inc. and licensed exclusively to The Canadian Real Estate Association (CREA). These certification marks identify real estate professionals who are members of CREA and who must abide by CREA's By-Laws, Rules, and the REALTOR® Code. The MLS® trademark and the MLS® logo are owned by CREA and identify the quality of services provided by real estate professionals who are members of CREA;
The information contained on this site is based in whole or in part on information that is provided by members of CREA, who are responsible for its accuracy. CREA reproduces and distributes this information as a service for its members and assumes no responsibility for its accuracy;
This website is operated by a brokerage or salesperson who is a member of CREA;
The listing content on this website is protected by copyright and other laws, and is intended solely for the private, non-commercial use by individuals. Any other reproduction, distribution or use of the content, in whole or in part, is specifically forbidden. The prohibited uses include commercial use, "screen scraping", "database scraping", and any other activity intended to collect, store, reorganize or manipulate data on the pages produced by or displayed on this website.
The information contained on this site is based in whole or in part on information that is provided under copyright by the Toronto Regional Real Estate Board (TRREB) or by members of The Canadian Real Estate Association (CREA), who are responsible for its accuracy. TRREB and CREA reproduce and distribute this information as a service for their members and assume no responsibility for its accuracy. All information displayed is believed to be accurate but is not guaranteed and should be independently verified. No warranties or representations of any kind are made with respect to the accuracy of such information. The information provided herein must only be used by consumers that have a bona fide interest in the purchase, sale, or lease of real estate and may not be used for any commercial purpose or any other purpose.