$879,900
FOR SALE

Duplex Bungalow

Bedrooms: 6+3Bathrooms: 4Lot: 50 x 98 ft

1554 Baseline Road
Ottawa, ON K2C 0B3

Incredible Investment Opportunity! All brick bungalow with legal secondary unit in prime rental location! Amazing cashflow grossing over $6,200/M! 3 Bed 1 bath upper unit and unique 3 bed 3 bath lower unit. Upper unit features 3 spacious bedrooms, a large living room, updated kitchen and 4pc bath. The lower level apartment is uniquely designed with a common full kitchen & 3 spacious bedrooms each with a wet bar and full ensuite bath bringing in nearly $3,800/M in rental income. Bus service at your doorstep, minutes walk to Algonquin and all the amenities of College Square & Merivale Rd. Great access to the highway for easy commuting by car, bus or bike! Amazing future development potential on this 50ft x 98ft lot. New proposed zoning of MS2 (Mainstreet Zone 2) allowing for a large multi unit mixed use building. Turn key investment property- enjoy great cashflow while watching your land value soar in the years to come! (id:47421)
Share
Listed By EXP REALTY
Data Provided By Ottawa Real Estate Board
MLS® Listing Number X12495026
Last Updated May 12, 2026
Property Summary
Property Type Duplex

More like this:
Community 7301 - Meadowlands/St. Claire Gardens
Price History

Interested in obtaining the full price history for this property?
Contact us!Contact us! Our real estate professionals would be happy to provide a complete listing history with historical sold prices and dates.

Detailed Information
Bedrooms 6+3
Bathrooms 4
Lot 50 x 98 ft
Features In-Law Suite
Listing Contract Date 2025-10-30
Location Description Cross Streets: Pender and Baseline. ** Directions: South side of Baseline between Pender St & St Helen's Pl.
# of Parking Spaces 6
Property Type Multi-family
Transaction Type For sale
Zoning Description Residential
Building
Amenities Separate Electricity Meters
Appliances Dishwasher, Dryer, Hood Fan, Microwave, Two stoves, Washer, Two Refrigerators
Architectural Style Bungalow
Basement Features Apartment in basement, Separate entrance
Basement Type N/A, N/A
Cooling Type Central air conditioning
Exterior Finish Brick
Foundation Type Concrete
Heating Fuel Natural gas
Heating Type Forced air
Stories Total 1
Type Duplex
Utility Water Municipal water
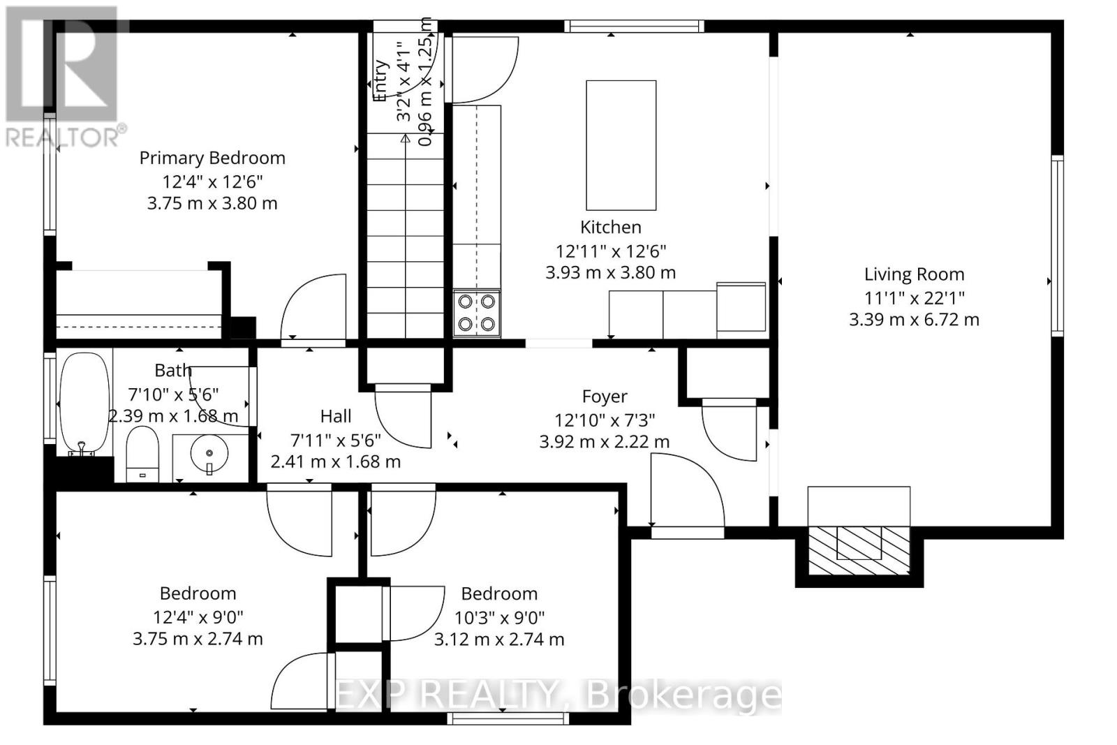
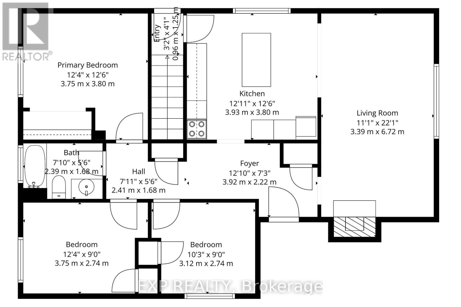
Rooms
Room Level Dimensions Notes
BedroomBasement4.81 m x 3.8 m
BathroomBasement2.27 m x 1.63 m
BedroomBasement4.34 m x 3.93 m
BathroomBasement2.08 m x 2.02 m
Utility roomBasement3.14 m x 2.08 m
Laundry roomBasement2.02 m x 1.06 m
KitchenBasement4.96 m x 2.97 m
BedroomBasement5.24 m x 3.36 m
BathroomBasement2.15 m x 1.63 m
Living roomMain level6.72 m x 3.39 m
KitchenMain level3.93 m x 3.8 m
Primary BedroomMain level3.8 m x 3.75 m
BedroomMain level3.75 m x 2.74 m
BedroomMain level3.12 m x 2.74 m
BathroomMain level2.39 m x 1.68 m
Parking Spaces
Name Spaces
No Garage
Land
Total Size 50 x 98 FT
Sewer Sanitary sewer
Size of Irregular Land 50 x 98 FT
External Links

The information contained on this site is based in whole or in part on information that is provided under copyright by the Toronto Regional Real Estate Board (TRREB) or by members of The Canadian Real Estate Association (CREA), who are responsible for its accuracy. TRREB and CREA reproduce and distribute this information as a service for their members and assume no responsibility for its accuracy. All information displayed is believed to be accurate but is not guaranteed and should be independently verified. No warranties or representations of any kind are made with respect to the accuracy of such information.
The information provided herein must only be used by consumers that have a bona fide interest in the purchase, sale, or lease of real estate and may not be used for any commercial purpose or any other purpose.

FREE ESTIMATES ARE COMING

Reserve Your Spot To Be Notified
or

Coming soon to select cities
in North America

(We'll never share your details)