*NEW PRICE!* 66 Kayenta Street | 1+1 Bedrooms + Den | 2.1 Bathrooms Immaculate Tamarack Dove freehold bungalow townhouse in Stittsville's sought-after Edenwylde adult lifestyle community. This rare, energy-efficient model offers a bright open layout with 9-ft ceilings, hardwood floors, pot lights in the kitchen and living area, and premium finishes throughout. The kitchen features granite countertops and flows into a sun-filled living space with patio doors to a private, fully fenced yard with maintenance-free landscaping. The front den/office-ideal as a workspace or potential extra bedroom-adds flexibility. The primary suite includes a walk-in closet and ensuite. The finished lower level offers a large rec room, second bedroom, full bath, laundry, and storage. Additional highlights include garage door opener, inside garage entry to mudroom with powder room, extra attic insulation, and epoxy-finished porch and garage floor. Includes access to the community centre. Community Centre is a yearly $300/fee includes a basement theater, games nights, party room rental, coffee time and more! A rare opportunity for low-maintenance adult living in a prime Stittsville location. (id:47421)
Interested in obtaining the full price history for this property? Contact us!Contact us! Our real estate professionals would be happy to provide a complete listing history with historical sold prices and dates.
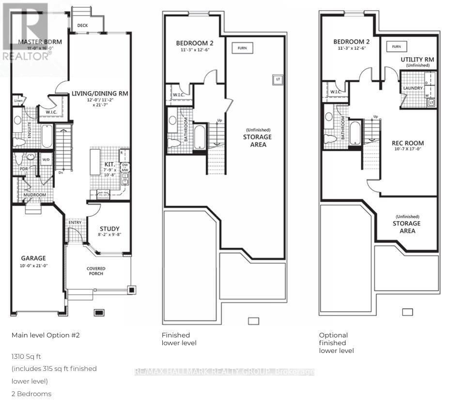
Detailed Information
Bedrooms
1+1
Bathrooms
3
Lot
24 x 98.33 ft
Equipment
Water Heater
Listing Contract Date
2026-01-22
Location Description
Cross Streets: Fernbank and Edenwylde. ** Directions: Heading east on Fernbank Rd, turn right onto Edenwylde Dr. Turn right onto Maygrass Way. Turn right onto kayenta St.
Ownership Type
Freehold
# of Parking Spaces
3
Property Type
Single Family
Rental Equipment
Water Heater
Transaction Type
For sale
Building
Age
0 to 5 years
Appliances
Water meter, Central Vacuum, Dishwasher, Dryer, Microwave, Stove, Washer, Window Coverings, Refrigerator
Architectural Style
Bungalow
Basement Development
Finished
Basement Type
Full (Finished)
Construction Style (Attachment)
Attached
Cooling Type
Central air conditioning
Exterior Finish
Brick, Vinyl siding
Foundation Type
Poured Concrete
# of Half Bathrooms
1
Heating Fuel
Natural gas
Heating Type
Forced air
Stories Total
1
Type
Row / Townhouse
Utility Water
Municipal water
Rooms
Room
Level
Dimensions
Notes
Recreational, Games room
Basement
17.1 m x 10.2 m
Bedroom 2
Basement
12.5 m x 10.89 m
Bathroom
Basement
8.1 m x 7.5 m
Laundry room
Basement
7.3 m x 6.6 m
Living room
Main level
19 m x 11.75 m
Kitchen
Main level
13.39 m x 11.3 m
Den
Main level
9.8 m x 8.1 m
Primary Bedroom
Main level
18.1 m x 10.8 m
Bathroom
Main level
4.9 m x 7.9 m
Parking Spaces
Name
Spaces
Attached Garage
Garage
Utilities
Type
Description
Cable
Installed
Electricity
Installed
Sewer
Installed
Land
Total Size
24 x 98.4 FT
Sewer
Sanitary sewer
Size of Irregular Land
24 x 98.4 FT
Open Houses
Date & Time
Comments
24/05/2026 2:00 PM - 4:00 PM
Terms of Use
Please review and agree to the following terms of use to access the listing content:
REALTOR®, REALTORS®, and the REALTOR® logo are certification marks that are owned by REALTOR® Canada Inc. and licensed exclusively to The Canadian Real Estate Association (CREA). These certification marks identify real estate professionals who are members of CREA and who must abide by CREA's By-Laws, Rules, and the REALTOR® Code. The MLS® trademark and the MLS® logo are owned by CREA and identify the quality of services provided by real estate professionals who are members of CREA;
The information contained on this site is based in whole or in part on information that is provided by members of CREA, who are responsible for its accuracy. CREA reproduces and distributes this information as a service for its members and assumes no responsibility for its accuracy;
This website is operated by a brokerage or salesperson who is a member of CREA;
The listing content on this website is protected by copyright and other laws, and is intended solely for the private, non-commercial use by individuals. Any other reproduction, distribution or use of the content, in whole or in part, is specifically forbidden. The prohibited uses include commercial use, "screen scraping", "database scraping", and any other activity intended to collect, store, reorganize or manipulate data on the pages produced by or displayed on this website.
The information contained on this site is based in whole or in part on information that is provided under copyright by the Toronto Regional Real Estate Board (TRREB) or by members of The Canadian Real Estate Association (CREA), who are responsible for its accuracy. TRREB and CREA reproduce and distribute this information as a service for their members and assume no responsibility for its accuracy. All information displayed is believed to be accurate but is not guaranteed and should be independently verified. No warranties or representations of any kind are made with respect to the accuracy of such information. The information provided herein must only be used by consumers that have a bona fide interest in the purchase, sale, or lease of real estate and may not be used for any commercial purpose or any other purpose.