$449,000
FOR SALE

Condo Townhouse

Bedrooms: 2Bathrooms: 2
Maintenance Fees: $396

81 Strathaven Private
Ottawa, ON K1J 1K7

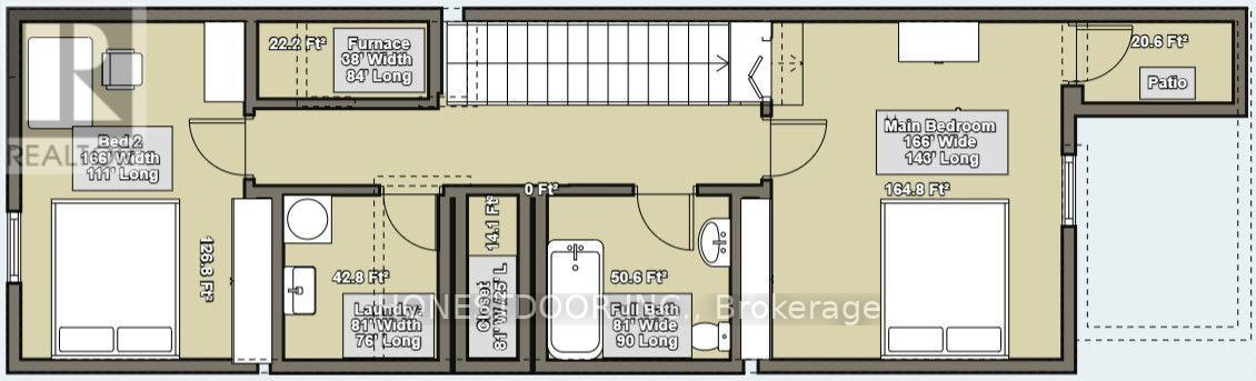
Visit the REALTOR website for further information about this Listing. Welcome to 81 Strathaven Private, a bright and inviting upper-level stacked townhome that offers exceptional privacy and beautiful treetop views as it backs directly onto Ken Steele Park. This home features approximately 1,200-1,300 sqft. of comfortable living space and was built in 2004.The layout includes two bedrooms plus a large den, which can easily serve as a third bedroom, office, or studio. A rare highlight of this property is the inclusion of two dedicated parking spaces, each of which can be rented for approximately $95 per month. The open-concept main floor welcomes you with abundant natural light, updated finishes, and a modern floating staircase. The kitchen has been thoughtfully upgraded with quartz countertops, a stylish herringbone backsplash, new sinks and fixtures, and an added coffee station/pantry that provides extra storage and convenience. The entire home features newly updated vinyl flooring throughout, creating a cohesive, modern look from top to bottom. The upper level offers two well-sized bedrooms, a full bathroom, and convenient in-unit laundry. The home has also been freshly painted, making it completely move-in ready. This location is exceptional for commuters and everyday convenience. Downtown Ottawa is just a 10-minute drive away, or approximately 15 minutes by bike. The Cyrville LRT Station is a short walk from the home, and major shopping destinations-including St. Laurent Shopping Centre, Adonis, Decathlon, Food Basics, Costco, Walmart, and Cineplex-are only minutes away. Quick access to HWY 417, the Aviation Parkway, parks, and multi-use paths makes walking, biking, transit, and driving all easy options. (id:47421)
Share
Listed By HONESTDOOR INC.
Data Provided By Toronto Regional Real Estate Board
MLS® Listing Number X12598662
Last Updated Apr 20, 2026
Property Summary
Property Type Condo Townhouse

More like this:
Maintenance Fees $396
Community 2201 - Cyrville
Price History

Interested in obtaining the full price history for this property?
Contact us!Contact us! Our real estate professionals would be happy to provide a complete listing history with historical sold prices and dates.

Detailed Information
Bedrooms 2
Bathrooms 2
Amenities Nearby Park, Schools, Public Transit
Community Features Pets Allowed With Restrictions
Equipment Water Heater
Features Cul-de-sac, Balcony, Carpet Free, In suite Laundry
Listing Contract Date 2025-12-03
Location Description Cross Streets: Cummings Ave and Ogilvie Road. ** Directions: https://maps.app.goo.gl/pFUuo1o64PoTcRiy6.
Maintenance Fee Payment Frequency Monthly
Maintenance Fee Type Water
Management Company Apollo Property Management
Ownership Type Condominium/Strata
# of Parking Spaces 2
Property Type Single Family
Rental Equipment Water Heater
Transaction Type For sale
Building
Amenities Visitor Parking
Appliances Dishwasher, Stove, Refrigerator
Basement Type None
Cooling Type Central air conditioning
Exterior Finish Brick, Vinyl siding
# of Half Bathrooms 1
Heating Fuel Natural gas
Heating Type Forced air
Type Row / Townhouse
Rooms
Room Level Dimensions Notes
Primary BedroomSecond level3.6322 m x 4.2164 m
BedroomSecond level2.8194 m x 4.2164 m
Laundry roomSecond level1.9304 m x 2.0574 m
DenMain level3.048 m x 4.2164 m
KitchenMain level2.9972 m x 3.2004 m
Dining roomMain level2.9464 m x 2.921 m
Living roomMain level3.6576 m x 4.064 m
Parking Spaces
Name Spaces
No Garage
Land
Amenities Park, Schools, Public Transit
Landscape Features Landscaped
External Links

The information contained on this site is based in whole or in part on information that is provided under copyright by the Toronto Regional Real Estate Board (TRREB) or by members of The Canadian Real Estate Association (CREA), who are responsible for its accuracy. TRREB and CREA reproduce and distribute this information as a service for their members and assume no responsibility for its accuracy. All information displayed is believed to be accurate but is not guaranteed and should be independently verified. No warranties or representations of any kind are made with respect to the accuracy of such information.
The information provided herein must only be used by consumers that have a bona fide interest in the purchase, sale, or lease of real estate and may not be used for any commercial purpose or any other purpose.

FREE ESTIMATES ARE COMING

Reserve Your Spot To Be Notified
or

Coming soon to select cities
in North America

(We'll never share your details)