This is a mere listing. (Private Sale) If you are viewing this listing on realtor.ca and would like additional information and/or arrange a viewing, please click on the ""MORE INFORMATION"" button immediately below the ""PROPERTY SUMMARY"" to obtain the developer's contact information. Welcome to 15 Port Rexton Place, a well-appointed two-apartment home located in the desirable community of Paradise. This property represents the last remaining new build on a quiet cul-de-sac, offering a rare opportunity in an established and family-friendly neighbourhood. The main unit features a bright, open-concept layout with spacious living, dining, and kitchen areas designed for both comfort and functionality. The home includes three well-sized bedrooms and two and a half bathrooms, providing ample space for family living. The basement level offers a dedicated rec room with a powder room as part of the main unit, adding valuable additional living space. A self-contained two-bedroom basement apartment provides excellent income potential or flexible options for extended family living. Conveniently located close to schools, walking trails, and amenities, this property is well suited for owner-occupiers, investors, or multi-generational households seeking a new construction home in a quiet setting. Presently Under Construction - Ready In 120 Days (id:47421)
Interested in obtaining the full price history for this property? Contact us!Contact us! Our real estate professionals would be happy to provide a complete listing history with historical sold prices and dates.
Detailed Information
Bedrooms
3+2
Bathrooms
4
Listing Contract Date
2025-12-12
Ownership Type
Freehold
Property Type
Single Family
Transaction Type
For sale
Zoning Description
Res.
Building
Appliances
Dishwasher, Refrigerator, Microwave, Stove
Constructed Date
2025
Construction Style (Attachment)
Detached
Construction Style (Split Level)
Split level
Exterior Finish
Vinyl siding
Flooring Type
Mixed Flooring
Foundation Type
Concrete
# of Half Bathrooms
1
Heating Fuel
Electric
Type
Two Apartment House
Utility Water
Municipal water
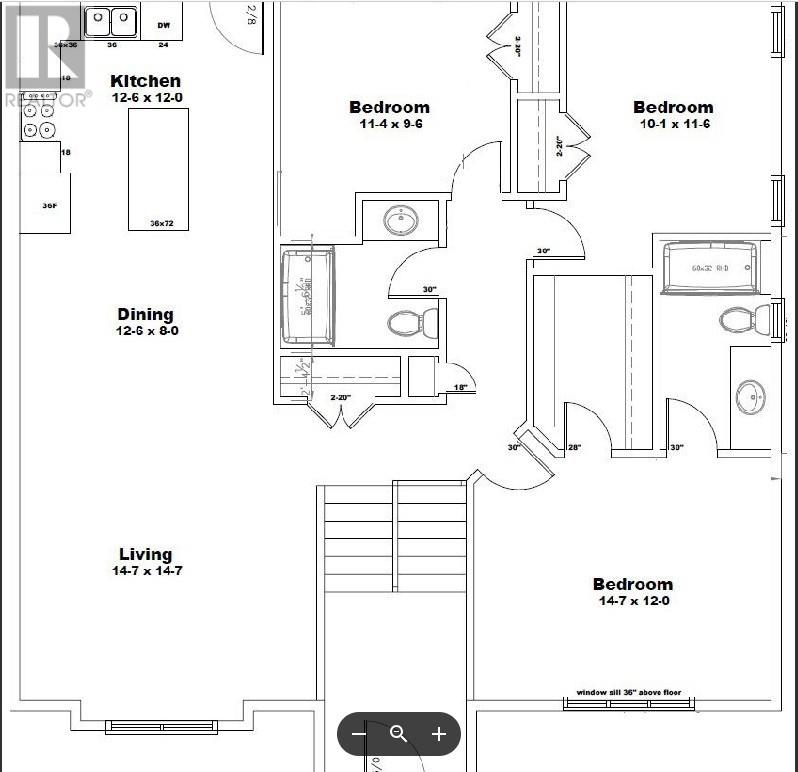
Rooms
Room
Level
Dimensions
Notes
Recreation room
Basement
13.11 x 12.4
Bath (# pieces 1-6)
Basement
2pc
Bath (# pieces 1-6)
Basement
4pc
Bedroom
Basement
10.0 x 11.0
Bedroom
Basement
10.6 x 11.0
Living room
Basement
13.11 x 12.4
Dining room
Basement
8.0 x 9.0
Kitchen
Basement
13.11 x 12.4
Bath (# pieces 1-6)
Main level
4pc
Ensuite
Main level
4pc
Bedroom
Main level
10.1 x 11.6
Bedroom
Main level
14.4 x 9.6
Primary Bedroom
Main level
14.7 x 12.0
Living room
Main level
14.7 x 14.7
Dining room
Main level
12.6 x 8.0
Kitchen
Main level
12.6 x 12.0
Land
Total Size
716 sqM | 7,251 - 10,889 sqft
Sewer
Municipal sewage system
Size of Irregular Land
716 sqM
Terms of Use
Please review and agree to the following terms of use to access the listing content:
REALTOR®, REALTORS®, and the REALTOR® logo are certification marks that are owned by REALTOR® Canada Inc. and licensed exclusively to The Canadian Real Estate Association (CREA). These certification marks identify real estate professionals who are members of CREA and who must abide by CREA's By-Laws, Rules, and the REALTOR® Code. The MLS® trademark and the MLS® logo are owned by CREA and identify the quality of services provided by real estate professionals who are members of CREA;
The information contained on this site is based in whole or in part on information that is provided by members of CREA, who are responsible for its accuracy. CREA reproduces and distributes this information as a service for its members and assumes no responsibility for its accuracy;
This website is operated by a brokerage or salesperson who is a member of CREA;
The listing content on this website is protected by copyright and other laws, and is intended solely for the private, non-commercial use by individuals. Any other reproduction, distribution or use of the content, in whole or in part, is specifically forbidden. The prohibited uses include commercial use, "screen scraping", "database scraping", and any other activity intended to collect, store, reorganize or manipulate data on the pages produced by or displayed on this website.
The information contained on this site is based in whole or in part on information that is provided under copyright by the Toronto Regional Real Estate Board (TRREB) or by members of The Canadian Real Estate Association (CREA), who are responsible for its accuracy. TRREB and CREA reproduce and distribute this information as a service for their members and assume no responsibility for its accuracy. All information displayed is believed to be accurate but is not guaranteed and should be independently verified. No warranties or representations of any kind are made with respect to the accuracy of such information. The information provided herein must only be used by consumers that have a bona fide interest in the purchase, sale, or lease of real estate and may not be used for any commercial purpose or any other purpose.