$1,848,000
FOR SALE

Detached Character

Bedrooms: 5Bathrooms: 5

776 Hirst Ave
Parksville, BC V9P 2L5

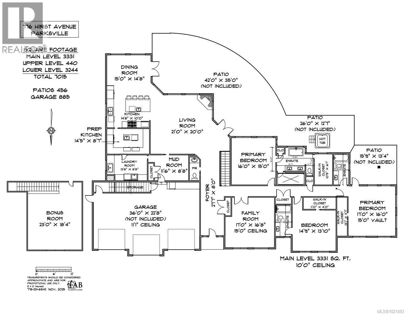
A custom ranch-style home sits on a private 1.079-acre lot backing onto parkland and offers more than 7,015 sq ft of quality living space. Built in 2018 and maintained in near-new condition, the 3,331 sq ft main floor includes a living, dining, family, mud rooms & foyer, modern kitchen, prep kitchen, three bedrooms, three and a half baths, and laundry. The fully finished 3,244 sq ft basement includes a media, wine, utility rooms, gym with a roughed-in sauna, two bedrooms, large recreation areas, and two full baths, offering plenty of flexibility for family or guests. A 440 sq ft upper level provides extra living or office space while keeping the rancher feel intact. Features include Hardi-plank siding, wood-frame construction, quality windows, a triple garage, two fireplaces, a heat pump, on-demand hot water, central air, tinted windows, electric blinds, a built-in vacuum, and in-ground sprinklers. Custom landscaping, patio with a hot tub complete this executive property. (id:47421)
Share
Listed By RE/MAX LIFESTYLES REALTY
Data Provided By Vancouver Island Real Estate Board
MLS® Listing Number 1021493
Last Updated May 04, 2026
Property Summary
Property Type Detached

More like this:
Neighbourhood Parksville
Price History

Interested in obtaining the full price history for this property?
Contact us!Contact us! Our real estate professionals would be happy to provide a complete listing history with historical sold prices and dates.

Detailed Information
Bedrooms 5
Bathrooms 5
Features Acreage, Curb & gutter, Level lot, Southern exposure, Corner Site, Irregular lot size, Other
Listing Contract Date 2025-11-30
Municipal ID 029-909-473
Ownership Type Freehold
# of Parking Spaces 6
Plan EPP57565
Property Type Single Family
Transaction Type For sale
Zoning Description RS1
Zoning Residential
Building
Appliances Dishwasher, Hot Tub, Jetted Tub, Microwave, Oven - Built-In
Architectural Style Character
Constructed Date 2018
Cooling Type Air Conditioned
Fire Protection Fire alarm system
Fireplace Present Yes
# of Fireplaces 2
Heating Fuel Natural gas
Heating Type Forced air
Type House
Rooms
Room Level Dimensions Notes
Bonus RoomSecond level23 ft x Measurements not available
Recreation roomLower level45 ft x Measurements not available
GymLower level20 ft x Measurements not available
SaunaLower levelMeasurements not available x 8 ft
Utility roomLower levelMeasurements not available x 13 ft
Wine CellarLower level16'8 x 14'5
BathroomLower level11'2 x 5'3
MediaLower level21'9 x 19'7
BathroomLower level9'8 x 8'4
BedroomLower levelMeasurements not available
EntranceLower level17'6 x 4'8
BedroomLower level12'5 x 12'1
BathroomMain level5'5 x 10'7
BedroomMain level14'9 x 13'10
BathroomMain level10'5 x 5'2
BathroomMain levelMeasurements not available x 8 ft
Primary BedroomMain level16 ft x 15 ft
Family roomMain level17 ft x Measurements not available
Living roomMain level21 ft x 20 ft
Dining roomMain level15 ft x Measurements not available
KitchenMain levelMeasurements not available x 10 ft
Laundry roomMain level13'8 x 8'8
OtherMain level11'6 x 11'8
EntranceMain levelMeasurements not available x 8 ft
Primary BedroomAdditional Accommodation17 ft x 16 ft
KitchenAdditional Accommodation14'5 x 8'7
Land
Total Size 1.08 acres
Access Type Road access
Acreage Yes
Size of Irregular Land 1.08
External Links

The information contained on this site is based in whole or in part on information that is provided under copyright by the Toronto Regional Real Estate Board (TRREB) or by members of The Canadian Real Estate Association (CREA), who are responsible for its accuracy. TRREB and CREA reproduce and distribute this information as a service for their members and assume no responsibility for its accuracy. All information displayed is believed to be accurate but is not guaranteed and should be independently verified. No warranties or representations of any kind are made with respect to the accuracy of such information.
The information provided herein must only be used by consumers that have a bona fide interest in the purchase, sale, or lease of real estate and may not be used for any commercial purpose or any other purpose.

FREE ESTIMATES ARE COMING

Reserve Your Spot To Be Notified
or

Coming soon to select cities
in North America

(We'll never share your details)