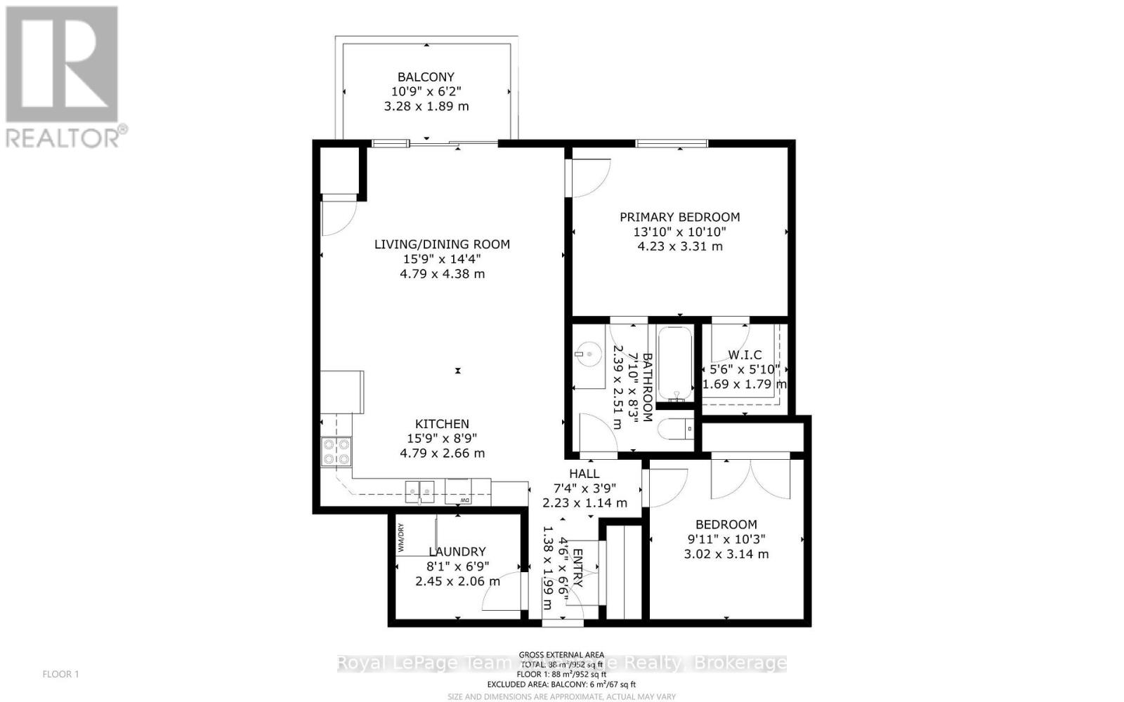
1 Bedroom + Den, 1 Bathroom Main-Floor Condo for Sale in Parry Sound, located in the sought-after Silver Birch community and offering low-maintenance living. This main-floor condominium features an open-concept living and dining area, in-suite laundry and ample storage throughout. The primary bedroom includes a walk-in closet, while the den provides flexible space for a home office, guest room or additional living area. Flooring in the den was replaced in February 2026. A centrally located 4-piece bathroom completes the layout. Additional features include a forced-air natural gas furnace, central air conditioning, exclusive underground parking and a private storage locker making this an ideal lock-and-go option. Conveniently located minutes from downtown Parry Sound with quick access to Highway 400 and within walking distance to parks, a community garden and scenic views of the Seguin River. A great option for buyers seeking a Parry Sound condo offering main-floor convenience and low-maintenance living. (id:47421)
Interested in obtaining the full price history for this property? Contact us!Contact us! Our real estate professionals would be happy to provide a complete listing history with historical sold prices and dates.
Detailed Information
Bedrooms
1
Bathrooms
1
Amenities Nearby
Golf Nearby, Hospital, Park, Place of Worship
Community Features
Pets Allowed With Restrictions, Community Centre
Features
Cul-de-sac, In suite Laundry
Listing Contract Date
2026-01-15
Location Description
Cross Streets: William Street/Silver Birch Court. ** Directions: Highway 400N; exit 229, right on Parry Sound Drive left on William Street, right on Silver Birch Court to building 20D.
Maintenance Fee Payment Frequency
Monthly
Maintenance Fee Type
Common Area Maintenance, Water
Management Company
Silver Birch Corp.
Ownership Type
Condominium/Strata
# of Parking Spaces
1
Property Type
Single Family
Structures
Patio(s)
Transaction Type
For sale
Zoning Description
R3
Building
Age
11 to 15 years
Amenities
Visitor Parking, Separate Heating Controls, Storage - Locker
Appliances
Water Heater, Dishwasher, Dryer, Range, Stove, Washer, Refrigerator
Basement Development
Unfinished
Basement Type
Full (Unfinished)
Cooling Type
Central air conditioning
Exterior Finish
Stucco
Fire Protection
Smoke Detectors
Foundation Type
Concrete
Heating Fuel
Natural gas
Heating Type
Forced air
Type
Apartment
Rooms
Room
Level
Dimensions
Notes
Foyer
Main level
1.38 m x 1.99 m
Laundry room
Main level
2.45 m x 2.06 m
Kitchen
Main level
4.79 m x 2.66 m
Living room
Main level
4.79 m x 4.38 m
Primary Bedroom
Main level
4.23 m x 3.31 m
Bathroom
Main level
2.39 m x 2.51 m
Den
Main level
3.02 m x 3.14 m
Parking Spaces
Name
Spaces
Underground
Garage
Utilities
Type
Description
Wireless
Available
Land
Access Type
Year-round access
Amenities
Golf Nearby, Hospital, Park, Place of Worship
Landscape Features
Landscaped
Terms of Use
Please review and agree to the following terms of use to access the listing content:
REALTOR®, REALTORS®, and the REALTOR® logo are certification marks that are owned by REALTOR® Canada Inc. and licensed exclusively to The Canadian Real Estate Association (CREA). These certification marks identify real estate professionals who are members of CREA and who must abide by CREA's By-Laws, Rules, and the REALTOR® Code. The MLS® trademark and the MLS® logo are owned by CREA and identify the quality of services provided by real estate professionals who are members of CREA;
The information contained on this site is based in whole or in part on information that is provided by members of CREA, who are responsible for its accuracy. CREA reproduces and distributes this information as a service for its members and assumes no responsibility for its accuracy;
This website is operated by a brokerage or salesperson who is a member of CREA;
The listing content on this website is protected by copyright and other laws, and is intended solely for the private, non-commercial use by individuals. Any other reproduction, distribution or use of the content, in whole or in part, is specifically forbidden. The prohibited uses include commercial use, "screen scraping", "database scraping", and any other activity intended to collect, store, reorganize or manipulate data on the pages produced by or displayed on this website.
The information contained on this site is based in whole or in part on information that is provided under copyright by the Toronto Regional Real Estate Board (TRREB) or by members of The Canadian Real Estate Association (CREA), who are responsible for its accuracy. TRREB and CREA reproduce and distribute this information as a service for their members and assume no responsibility for its accuracy. All information displayed is believed to be accurate but is not guaranteed and should be independently verified. No warranties or representations of any kind are made with respect to the accuracy of such information. The information provided herein must only be used by consumers that have a bona fide interest in the purchase, sale, or lease of real estate and may not be used for any commercial purpose or any other purpose.