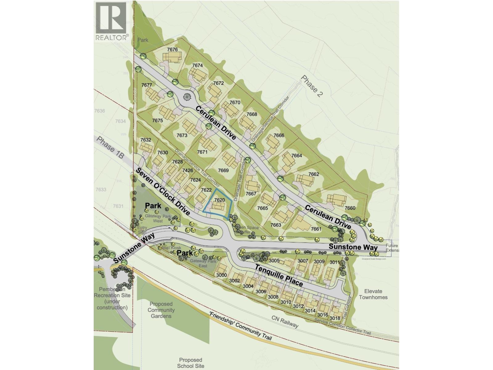
Welcome to 7620 Seven O'Clock Drive, an easy-build 7,536 square ft end lot in Sunstone with totally unobstructed views of Mount Currie. Gently sloping and designed for a custom home with big windows and great outdoor living, this is your chance to get into one of Pemberton's most desirable neighbourhoods at exceptional value. Priced to sell, it is currently the lowest-priced building lot in the area. Enjoy bike trails, hiking, golf at nearby Big Sky and Sunstone golf courses. Whistler's world-class skiing just 25 minutes away. (id:47421)
Interested in obtaining the full price history for this property? Contact us!Contact us! Our real estate professionals would be happy to provide a complete listing history with historical sold prices and dates.
Detailed Information
Lot
106 x 0 ft
Amenities Nearby
Golf Course, Recreation, Ski hill
Community Features
Rural Setting
Municipal ID
030-665-361
Ownership Type
Freehold
Property Type
Vacant Land
Transaction Type
For sale
Views
View
Building
Land
Total Size
7536 square feet
Amenities
Golf Course, Recreation, Ski hill
Size of Irregular Land
7536
Terms of Use
Please review and agree to the following terms of use to access the listing content:
REALTOR®, REALTORS®, and the REALTOR® logo are certification marks that are owned by REALTOR® Canada Inc. and licensed exclusively to The Canadian Real Estate Association (CREA). These certification marks identify real estate professionals who are members of CREA and who must abide by CREA's By-Laws, Rules, and the REALTOR® Code. The MLS® trademark and the MLS® logo are owned by CREA and identify the quality of services provided by real estate professionals who are members of CREA;
The information contained on this site is based in whole or in part on information that is provided by members of CREA, who are responsible for its accuracy. CREA reproduces and distributes this information as a service for its members and assumes no responsibility for its accuracy;
This website is operated by a brokerage or salesperson who is a member of CREA;
The listing content on this website is protected by copyright and other laws, and is intended solely for the private, non-commercial use by individuals. Any other reproduction, distribution or use of the content, in whole or in part, is specifically forbidden. The prohibited uses include commercial use, "screen scraping", "database scraping", and any other activity intended to collect, store, reorganize or manipulate data on the pages produced by or displayed on this website.
The information contained on this site is based in whole or in part on information that is provided under copyright by the Toronto Regional Real Estate Board (TRREB) or by members of The Canadian Real Estate Association (CREA), who are responsible for its accuracy. TRREB and CREA reproduce and distribute this information as a service for their members and assume no responsibility for its accuracy. All information displayed is believed to be accurate but is not guaranteed and should be independently verified. No warranties or representations of any kind are made with respect to the accuracy of such information. The information provided herein must only be used by consumers that have a bona fide interest in the purchase, sale, or lease of real estate and may not be used for any commercial purpose or any other purpose.