Opportunity awaits with this spacious 3+ 2 bedroom bungalow with in-law suite, ideally located in one of Penetanguishene's most sought-after family friendly neighborhoods. This home features hardwood floors throughout, a large eat-in kitchen with a walk-out to the back deck with a private backyard that backs onto a convenient bike trail, and a fully finished in-law suite with a cozy gas fireplace - offering flexible living arrangements ideal for extended family, guests, or potential rental income. Just minutes from local schools, parks, and the historic downtown waterfront, this home offers the perfect balance of comfort, convenience, and charm. Whether you're a growing family in need of more space, downsizers seeking main-floor living, or an investor looking for a great opportunity and flexible closing, this home has it all. (id:47421)
Interested in obtaining the full price history for this property? Contact us!Contact us! Our real estate professionals would be happy to provide a complete listing history with historical sold prices and dates.
Detailed Information
Bedrooms
3+2
Bathrooms
3
Lot
60 x 120 ft
Amenities Nearby
Beach, Hospital, Schools
Community Features
School Bus, Community Centre
Features
Flat site, In-Law Suite
Listing Contract Date
2025-11-17
Location Description
Cross Streets: Robert St E/Dunlop St. ** Directions: Hwy 93 (main St) to Robert St E to Dunlop St to Sulky Dr to Bridle Rd.
Ownership Type
Freehold
# of Parking Spaces
6
Property Type
Single Family
Structures
Deck, Drive Shed
Transaction Type
For sale
Zoning Description
R2-9
Building
Age
31 to 50 years
Amenities
Fireplace(s)
Architectural Style
Bungalow
Basement Development
Finished
Basement Type
Full (Finished)
Construction Style (Attachment)
Detached
Cooling Type
Central air conditioning
Exterior Finish
Brick, Vinyl siding
Fire Protection
Smoke Detectors
Fireplace Present
Yes
# of Fireplaces
1
Foundation Type
Poured Concrete
Heating Fuel
Natural gas
Heating Type
Forced air
Stories Total
1
Type
House
Utility Water
Municipal water
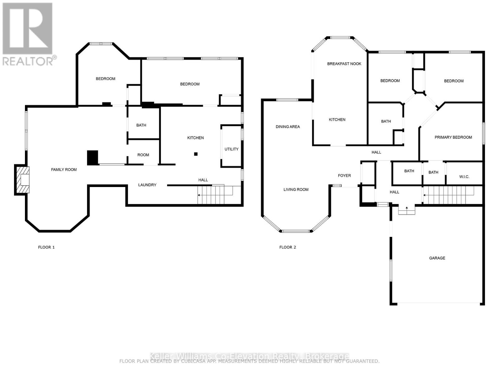
Rooms
Room
Level
Dimensions
Notes
Bedroom
Lower level
2.81 m x 6.16 m
Bedroom
Lower level
3.72 m x 3.86 m
Family room
Lower level
7.59 m x 6.23 m
Utility room
Lower level
2.48 m x 1.18 m
Other
Lower level
1.47 m x 2.02 m
Laundry room
Lower level
2.42 m x 2.45 m
Kitchen
Lower level
3.65 m x 4.99 m
Foyer
Main level
1.49 m x 1.98 m
Living room
Main level
5.2 m x 4.04 m
Dining room
Main level
2.78 m x 3.02 m
Kitchen
Main level
3.78 m x 3.29 m
Eating area
Main level
2.78 m x 3.28 m
Primary Bedroom
Main level
3.56 m x 3.88 m
Bedroom 2
Main level
3.34 m x 3.56 m
Bedroom 3
Main level
3.13 m x 2.89 m
Parking Spaces
Name
Spaces
Attached Garage
Garage
Utilities
Type
Description
Cable
Available
Electricity
Installed
Sewer
Installed
Land
Total Size
60 x 120 FT | under 1/2 acre
Amenities
Beach, Hospital, Schools
Sewer
Sanitary sewer
Size of Irregular Land
60 x 120 FT
Surface Water
Lake/Pond
Terms of Use
Please review and agree to the following terms of use to access the listing content:
REALTOR®, REALTORS®, and the REALTOR® logo are certification marks that are owned by REALTOR® Canada Inc. and licensed exclusively to The Canadian Real Estate Association (CREA). These certification marks identify real estate professionals who are members of CREA and who must abide by CREA's By-Laws, Rules, and the REALTOR® Code. The MLS® trademark and the MLS® logo are owned by CREA and identify the quality of services provided by real estate professionals who are members of CREA;
The information contained on this site is based in whole or in part on information that is provided by members of CREA, who are responsible for its accuracy. CREA reproduces and distributes this information as a service for its members and assumes no responsibility for its accuracy;
This website is operated by a brokerage or salesperson who is a member of CREA;
The listing content on this website is protected by copyright and other laws, and is intended solely for the private, non-commercial use by individuals. Any other reproduction, distribution or use of the content, in whole or in part, is specifically forbidden. The prohibited uses include commercial use, "screen scraping", "database scraping", and any other activity intended to collect, store, reorganize or manipulate data on the pages produced by or displayed on this website.
The information contained on this site is based in whole or in part on information that is provided under copyright by the Toronto Regional Real Estate Board (TRREB) or by members of The Canadian Real Estate Association (CREA), who are responsible for its accuracy. TRREB and CREA reproduce and distribute this information as a service for their members and assume no responsibility for its accuracy. All information displayed is believed to be accurate but is not guaranteed and should be independently verified. No warranties or representations of any kind are made with respect to the accuracy of such information. The information provided herein must only be used by consumers that have a bona fide interest in the purchase, sale, or lease of real estate and may not be used for any commercial purpose or any other purpose.