Welcome to 23 Amelia St just off of the Welland Canal and down from Lock 8. This fully fenced in secured property offers 2 entrances/access points to the property off of Amelia St & gated entrance off of Mellanby Ave. Zoned R4-CH this property is ready for any type of Muliti-Unit residential development from Townhomes to up tp 25 unit Apartment building with Canal views. The current residential section consists of 1715 sq.ft, with the current Industrial section consisting of 5560 sq.ft with 2 bay doors, washrooms, and lunch room area if desired. Whether you're looking to invest and develop this property with a residential approach, or utilize the warehouse space for climate controlled storage inside, and outside storage to maximize your return. There are options to consider that best suit your needs to invest in this property. (id:47421)
Interested in obtaining the full price history for this property? Contact us!Contact us! Our real estate professionals would be happy to provide a complete listing history with historical sold prices and dates.
Detailed Information
Bedrooms
4
Bathrooms
2
Lot
102 x 198 ft
Amenities Nearby
Park
Features
Flat site, Dry, Paved yard, Carpet Free, Guest Suite
Listing Contract Date
2026-01-07
Location Description
Cross Streets: Mellanby Ave to Amelia St. ** Directions: MAIN ST TO MELANBY TO AMELIA.
Ownership Type
Freehold
# of Parking Spaces
40
Property Type
Single Family
Transaction Type
For sale
Waterfront Name
Welland Canal
Zoning Description
R4-CH
Building
Architectural Style
Bungalow
Basement Type
None
Construction Style (Attachment)
Detached
Cooling Type
Central air conditioning
Exterior Finish
Vinyl siding
Fire Protection
Controlled entry
Foundation Type
Slab
# of Half Bathrooms
1
Heating Fuel
Natural gas
Heating Type
Forced air
Stories Total
1
Type
House
Utility Water
Municipal water
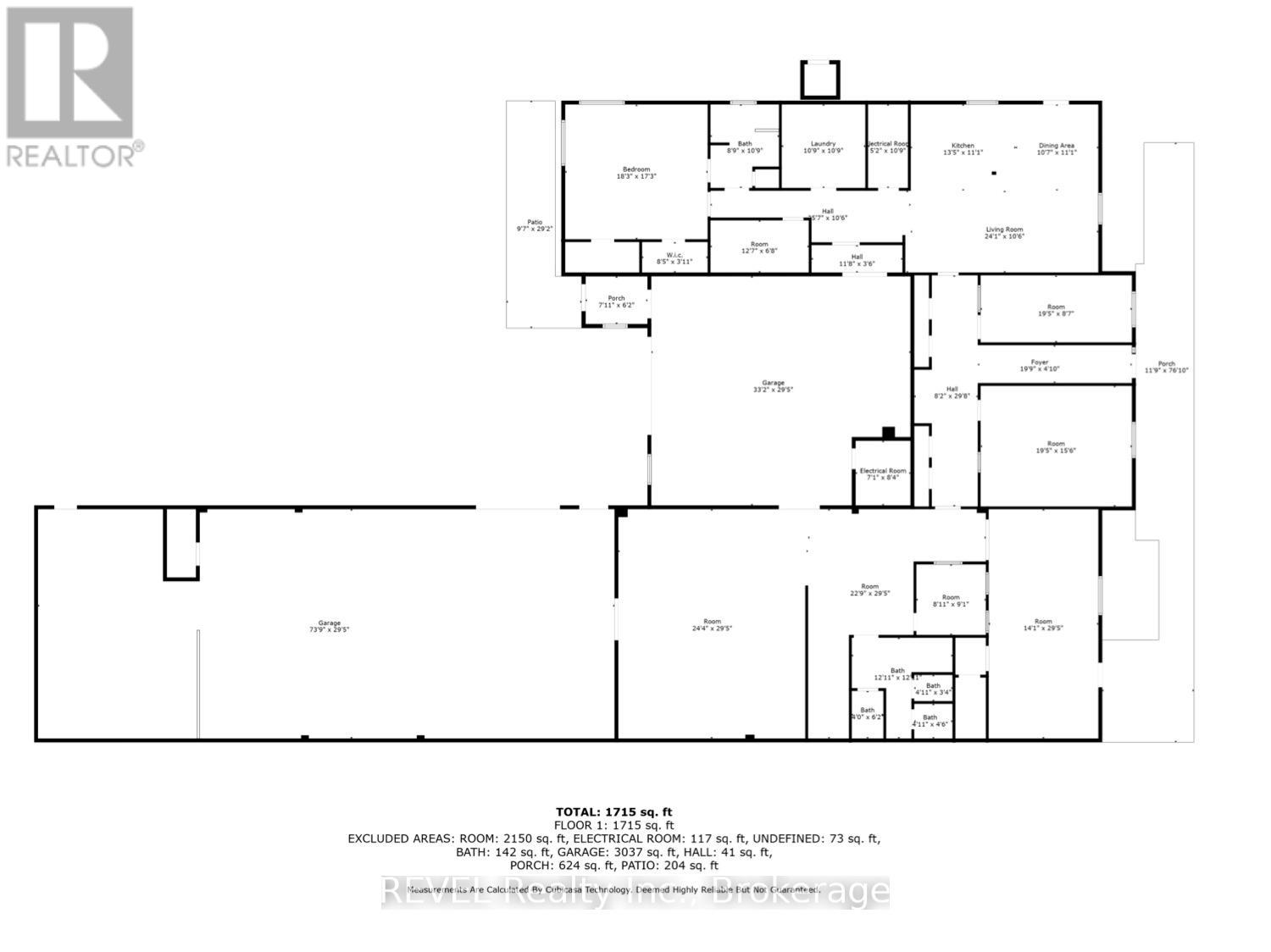
Rooms
Room
Level
Dimensions
Notes
Bedroom
Main level
5.56 m x 5.26 m
Bathroom
Main level
Measurements not available
Kitchen
Main level
4.09 m x 3.38 m
Dining room
Main level
3.23 m x 3.38 m
Living room
Main level
7.34 m x 3.2 m
Bathroom
Main level
Measurements not available
Bedroom
Main level
3.84 m x 2.03 m
Bedroom
Main level
5.92 m x 2.62 m
Bedroom
Main level
5.92 m x 5 m
Parking Spaces
Name
Spaces
Attached Garage
Garage
Utilities
Type
Description
Cable
Available
Electricity
Installed
Sewer
Installed
Land
Total Size
102 x 198 FT
Amenities
Park
Fence Type
Fenced yard
Sewer
Sanitary sewer
Size of Irregular Land
102 x 198 FT
Terms of Use
Please review and agree to the following terms of use to access the listing content:
REALTOR®, REALTORS®, and the REALTOR® logo are certification marks that are owned by REALTOR® Canada Inc. and licensed exclusively to The Canadian Real Estate Association (CREA). These certification marks identify real estate professionals who are members of CREA and who must abide by CREA's By-Laws, Rules, and the REALTOR® Code. The MLS® trademark and the MLS® logo are owned by CREA and identify the quality of services provided by real estate professionals who are members of CREA;
The information contained on this site is based in whole or in part on information that is provided by members of CREA, who are responsible for its accuracy. CREA reproduces and distributes this information as a service for its members and assumes no responsibility for its accuracy;
This website is operated by a brokerage or salesperson who is a member of CREA;
The listing content on this website is protected by copyright and other laws, and is intended solely for the private, non-commercial use by individuals. Any other reproduction, distribution or use of the content, in whole or in part, is specifically forbidden. The prohibited uses include commercial use, "screen scraping", "database scraping", and any other activity intended to collect, store, reorganize or manipulate data on the pages produced by or displayed on this website.
The information contained on this site is based in whole or in part on information that is provided under copyright by the Toronto Regional Real Estate Board (TRREB) or by members of The Canadian Real Estate Association (CREA), who are responsible for its accuracy. TRREB and CREA reproduce and distribute this information as a service for their members and assume no responsibility for its accuracy. All information displayed is believed to be accurate but is not guaranteed and should be independently verified. No warranties or representations of any kind are made with respect to the accuracy of such information. The information provided herein must only be used by consumers that have a bona fide interest in the purchase, sale, or lease of real estate and may not be used for any commercial purpose or any other purpose.