Historic 1832 Stone Home with River Views, Income Potential & Steps to the St. Lawrence - Live, eat, and sleep in history in this non-registered historic restored stone home, built in 1832 by Scottish sea captain John Rosamond. Just a short walk to the stunning St. Lawrence River with access to the river and beach, this unique property blends character, comfort, and convenience with year-round river views. Currently operated as a seasonal Bed & Breakfast, this location is ideal for guests or personal enjoyment. Walk to the nearby sand beach, public pool, park, boat launch, and tennis courts. The front yard is private and fully fenced - perfect for pets-and the veranda offers a peaceful spot to sip your morning coffee while taking in the view. Inside, you're welcomed by a spacious living/sitting room. The formal dining room features a large fireplace (not used by the current owner), and a step down leads to the kitchen. Just off the kitchen is a flexible room that could serve as an office or den, and there's also a screened-in sunporch for relaxing evenings. A main-floor bedroom shares access to a 3-piece bath, great for guests or multigenerational living. Upstairs, you'll find three bedrooms and three bathrooms, including two en suites, providing comfort and privacy for family or visitors. As a bonus, there's a self-contained 1-bedroom apartment with its own separate entrance that was rented for $1,100/month (all-inclusive), offering an opportunity for a steady income potential. For hobbyists or entrepreneurs, the nearly 1,200 sq ft, 3-car garage with its own electrical panel is a dream space for projects, collections, or even a small business. Don't miss your chance to own a piece of history in one of the most scenic and walkable locations by the river. Book your showing today! (id:47421)
Interested in obtaining the full price history for this property? Contact us!Contact us! Our real estate professionals would be happy to provide a complete listing history with historical sold prices and dates.
Detailed Information
Bedrooms
4
Bathrooms
5
Lot
74.17 x 203.08 ft
Amenities Nearby
Beach
Equipment
Water Heater
Features
Irregular lot size, Carpet Free, In-Law Suite
Listing Contract Date
2025-12-01
Location Description
Cross Streets: King Street and St ;awrence Street. ** Directions: Exit 716 off of 401 and head south on Edward Street till you come to King Street. At the light by TD Canada Trust, you will turn right, heading west. Corner of King Street West and St Lawrence St.
Ownership Type
Freehold
# of Parking Spaces
6
Property Type
Single Family
Rental Equipment
Water Heater
Structures
Deck, Patio(s), Porch, Shed
Transaction Type
For sale
Views
River view, View of water
Waterfront Type
Waterfront
Waterfront Name
St. Lawrence River
Building
Age
100+ years
Amenities
Fireplace(s)
Appliances
Water meter, Blinds, Dishwasher, Dryer, Two stoves, Washer, Window Coverings, Refrigerator
Basement Features
Apartment in basement, Separate entrance
Basement Type
N/A, N/A
Construction Style (Attachment)
Detached
Cooling Type
Central air conditioning
Exterior Finish
Stone
Fireplace Present
Yes
# of Fireplaces
5
Foundation Type
Stone
Heating Fuel
Natural gas
Heating Type
Forced air
Stories Total
2.5
Type
House
Utility Water
Municipal water
Rooms
Room
Level
Dimensions
Notes
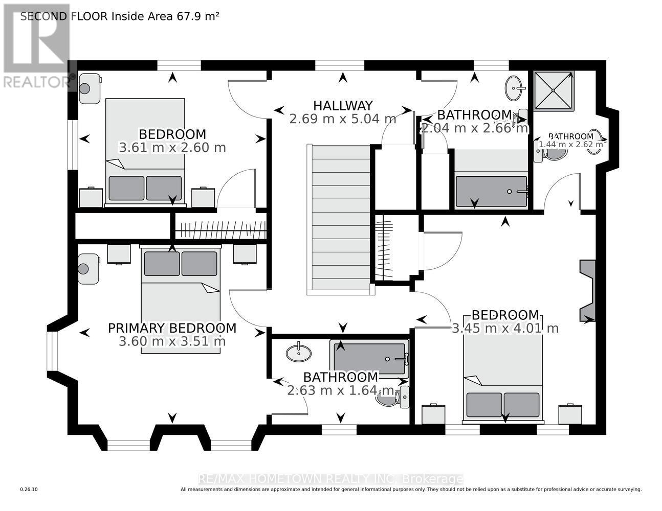
Bedroom 3
Second level
2.6 m x 3.61 m
Bathroom
Second level
2.04 m x 2.66 m
Primary Bedroom
Second level
3.51 m x 3.6 m
Bathroom
Second level
1.64 m x 2.63 m
Bedroom 2
Second level
3.45 m x 4.01 m
Bathroom
Second level
1.44 m x 2.62 m
Foyer
Main level
1.33 m x 1.87 m
Sunroom
Main level
2.33 m x 4.69 m
Living room
Main level
4.2 m x 6.69 m
Dining room
Main level
3.44 m x 4.21 m
Kitchen
Main level
2.79 m x 4.81 m
Bathroom
Main level
1.92 m x 2.33 m
Bedroom
Main level
2.84 m x 3.22 m
Parking Spaces
Name
Spaces
Detached Garage
Garage
Land
Total Size
74.2 x 203.1 FT
Amenities
Beach
Fence Type
Fenced yard
Landscape Features
Landscaped
Sewer
Sanitary sewer
Size of Irregular Land
74.2 x 203.1 FT
Surface Water
River/Stream
Terms of Use
Please review and agree to the following terms of use to access the listing content:
REALTOR®, REALTORS®, and the REALTOR® logo are certification marks that are owned by REALTOR® Canada Inc. and licensed exclusively to The Canadian Real Estate Association (CREA). These certification marks identify real estate professionals who are members of CREA and who must abide by CREA's By-Laws, Rules, and the REALTOR® Code. The MLS® trademark and the MLS® logo are owned by CREA and identify the quality of services provided by real estate professionals who are members of CREA;
The information contained on this site is based in whole or in part on information that is provided by members of CREA, who are responsible for its accuracy. CREA reproduces and distributes this information as a service for its members and assumes no responsibility for its accuracy;
This website is operated by a brokerage or salesperson who is a member of CREA;
The listing content on this website is protected by copyright and other laws, and is intended solely for the private, non-commercial use by individuals. Any other reproduction, distribution or use of the content, in whole or in part, is specifically forbidden. The prohibited uses include commercial use, "screen scraping", "database scraping", and any other activity intended to collect, store, reorganize or manipulate data on the pages produced by or displayed on this website.
The information contained on this site is based in whole or in part on information that is provided under copyright by the Toronto Regional Real Estate Board (TRREB) or by members of The Canadian Real Estate Association (CREA), who are responsible for its accuracy. TRREB and CREA reproduce and distribute this information as a service for their members and assume no responsibility for its accuracy. All information displayed is believed to be accurate but is not guaranteed and should be independently verified. No warranties or representations of any kind are made with respect to the accuracy of such information. The information provided herein must only be used by consumers that have a bona fide interest in the purchase, sale, or lease of real estate and may not be used for any commercial purpose or any other purpose.