Located in The Banks subdivision, this brand new half duplex showcases a bright, open-concept layout with a stylish West Coast contemporary design. The main living area is thoughtfully designed for both everyday living and entertaining, featuring abundant natural light and modern finishes throughout. The home includes a 1 bedroom suite, offering flexibility for guests or additional income. Ideally situated within walking distance to the river, schools, and nearby recreation. Finally, the backyard is fully fenced and features a lovely back deck. (id:47421)
Interested in obtaining the full price history for this property? Contact us!Contact us! Our real estate professionals would be happy to provide a complete listing history with historical sold prices and dates.
Detailed Information
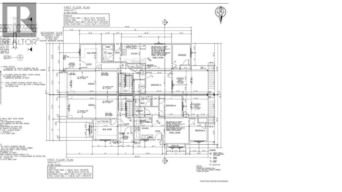
Bedrooms
5
Bathrooms
3
Listing Contract Date
2025-12-17
Municipal ID
031-946-755
Ownership Type
Freehold
Property Type
Single Family
Transaction Type
For sale
Building
Architectural Style
Basement entry
Basement Development
Finished
Basement Type
Full (Finished)
Constructed Date
2026
Construction Style (Attachment)
Attached
Exterior Finish
Composite Siding
Foundation Type
Concrete Perimeter
Heating Fuel
Natural gas
Heating Type
Forced air
Roof Material
Asphalt shingle
Roof Style
Conventional
Stories Total
1
Total Finished Area
2161 sqft
Type
Duplex
Utility Water
Municipal water
Rooms
Room
Level
Dimensions
Notes
Mud room
Basement
12 ft x 10 ft
Bedroom 4
Basement
12 ft x 11 ft
Bedroom 5
Basement
9 ft x 10 ft
Family room
Basement
12 ft x 12 ft
Kitchen
Basement
12 ft x 9 ft
Bedroom 2
Main level
11 ft x 10 ft
Bedroom 3
Main level
10 ft x 13 ft
Primary Bedroom
Main level
17 ft 6 in x 10 ft 6 in
Family room
Main level
12 ft x 12 ft
Dining room
Main level
9 ft x 12 ft
Kitchen
Main level
9 ft x 12 ft
Laundry room
Main level
12 ft x 6 ft
Parking Spaces
Name
Spaces
Garage
1
Terms of Use
Please review and agree to the following terms of use to access the listing content:
REALTOR®, REALTORS®, and the REALTOR® logo are certification marks that are owned by REALTOR® Canada Inc. and licensed exclusively to The Canadian Real Estate Association (CREA). These certification marks identify real estate professionals who are members of CREA and who must abide by CREA's By-Laws, Rules, and the REALTOR® Code. The MLS® trademark and the MLS® logo are owned by CREA and identify the quality of services provided by real estate professionals who are members of CREA;
The information contained on this site is based in whole or in part on information that is provided by members of CREA, who are responsible for its accuracy. CREA reproduces and distributes this information as a service for its members and assumes no responsibility for its accuracy;
This website is operated by a brokerage or salesperson who is a member of CREA;
The listing content on this website is protected by copyright and other laws, and is intended solely for the private, non-commercial use by individuals. Any other reproduction, distribution or use of the content, in whole or in part, is specifically forbidden. The prohibited uses include commercial use, "screen scraping", "database scraping", and any other activity intended to collect, store, reorganize or manipulate data on the pages produced by or displayed on this website.
The information contained on this site is based in whole or in part on information that is provided under copyright by the Toronto Regional Real Estate Board (TRREB) or by members of The Canadian Real Estate Association (CREA), who are responsible for its accuracy. TRREB and CREA reproduce and distribute this information as a service for their members and assume no responsibility for its accuracy. All information displayed is believed to be accurate but is not guaranteed and should be independently verified. No warranties or representations of any kind are made with respect to the accuracy of such information. The information provided herein must only be used by consumers that have a bona fide interest in the purchase, sale, or lease of real estate and may not be used for any commercial purpose or any other purpose.