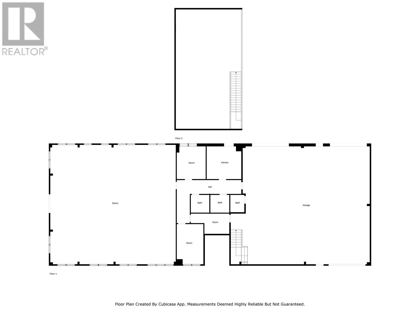
Newly constructed industrial building on a fully landscaped, partly paved & fully fenced 0.89 acre lot. Built with attention to detail & designed for multi tenanted options. M3 industrial zoning. Total of 6366 sq ft has a footprint of 5400 sq ft plus 966 sq ft mezzanine. The shop/warehouse is 2264 sq ft, has 3 overhead 12x14' doors, drive thru end bay, 2 floor drains with oil separator, 17'6 to the overhead heaters, 2 piece bath & access to the mezzanine. Office area of 976 sq ft is finished with 2 offices, kit/staff room, space for a shop service counter & 2 washrooms. Front of building is 2160 sq ft, unfinished - planned for reception, 7 offices, board room, open work area, has RI plumbing & is designed for an optional 2nd floor. Lot layout allows for an additional building. Great location on the corner of Hartway Dr & Monterey Rd with excellent visibility & easy access from Highway 97 N. Adjacent businesses are Carl's Jr, Starbucks, Open Door Cafe, a self storage facility & Co-op cardlock. (id:47421)
Interested in obtaining the full price history for this property? Contact us!Contact us! Our real estate professionals would be happy to provide a complete listing history with historical sold prices and dates.
Detailed Information
Listing Contract Date
2025-02-16
Property Type
Industrial
Road
Paved road
Storage
Outside Storage
Transaction Type
For sale
Building
Constructed Date
2022
Land
Total Size
0.89 acres
Size of Irregular Land
0.89
Terms of Use
Please review and agree to the following terms of use to access the listing content:
REALTOR®, REALTORS®, and the REALTOR® logo are certification marks that are owned by REALTOR® Canada Inc. and licensed exclusively to The Canadian Real Estate Association (CREA). These certification marks identify real estate professionals who are members of CREA and who must abide by CREA's By-Laws, Rules, and the REALTOR® Code. The MLS® trademark and the MLS® logo are owned by CREA and identify the quality of services provided by real estate professionals who are members of CREA;
The information contained on this site is based in whole or in part on information that is provided by members of CREA, who are responsible for its accuracy. CREA reproduces and distributes this information as a service for its members and assumes no responsibility for its accuracy;
This website is operated by a brokerage or salesperson who is a member of CREA;
The listing content on this website is protected by copyright and other laws, and is intended solely for the private, non-commercial use by individuals. Any other reproduction, distribution or use of the content, in whole or in part, is specifically forbidden. The prohibited uses include commercial use, "screen scraping", "database scraping", and any other activity intended to collect, store, reorganize or manipulate data on the pages produced by or displayed on this website.
The information contained on this site is based in whole or in part on information that is provided under copyright by the Toronto Regional Real Estate Board (TRREB) or by members of The Canadian Real Estate Association (CREA), who are responsible for its accuracy. TRREB and CREA reproduce and distribute this information as a service for their members and assume no responsibility for its accuracy. All information displayed is believed to be accurate but is not guaranteed and should be independently verified. No warranties or representations of any kind are made with respect to the accuracy of such information. The information provided herein must only be used by consumers that have a bona fide interest in the purchase, sale, or lease of real estate and may not be used for any commercial purpose or any other purpose.