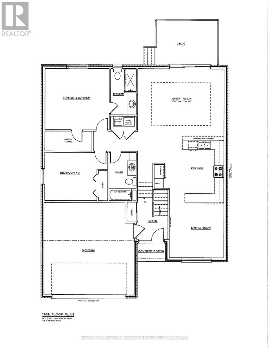
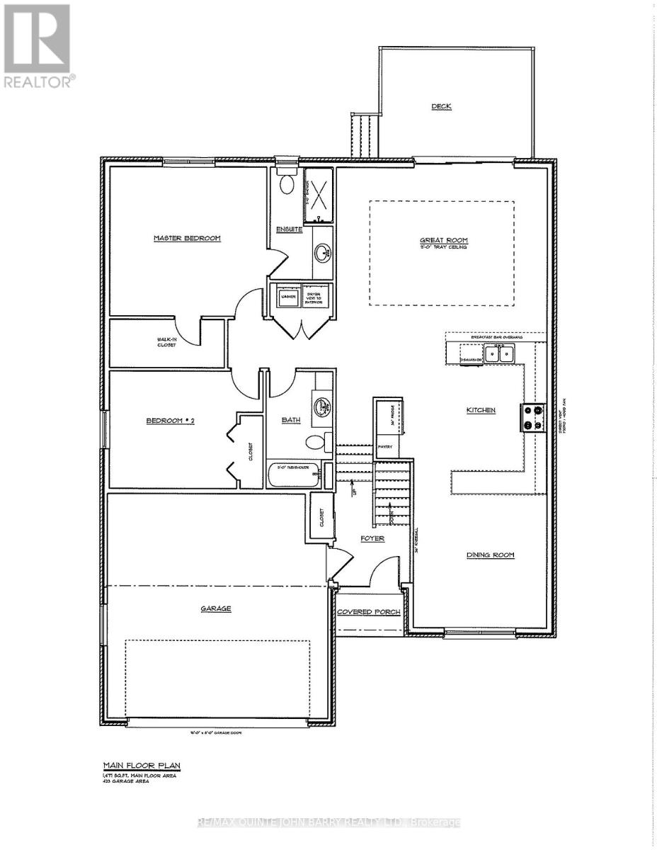
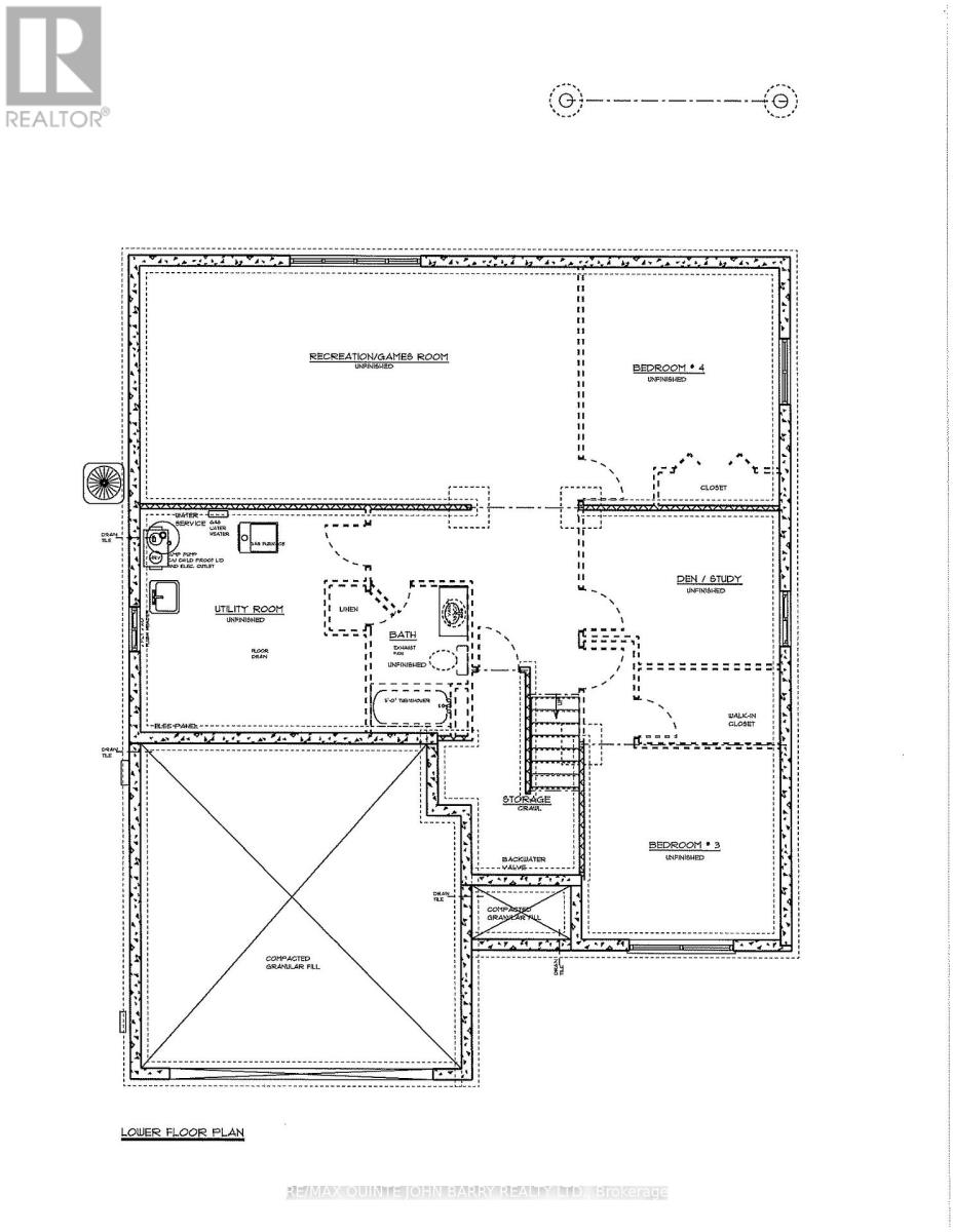
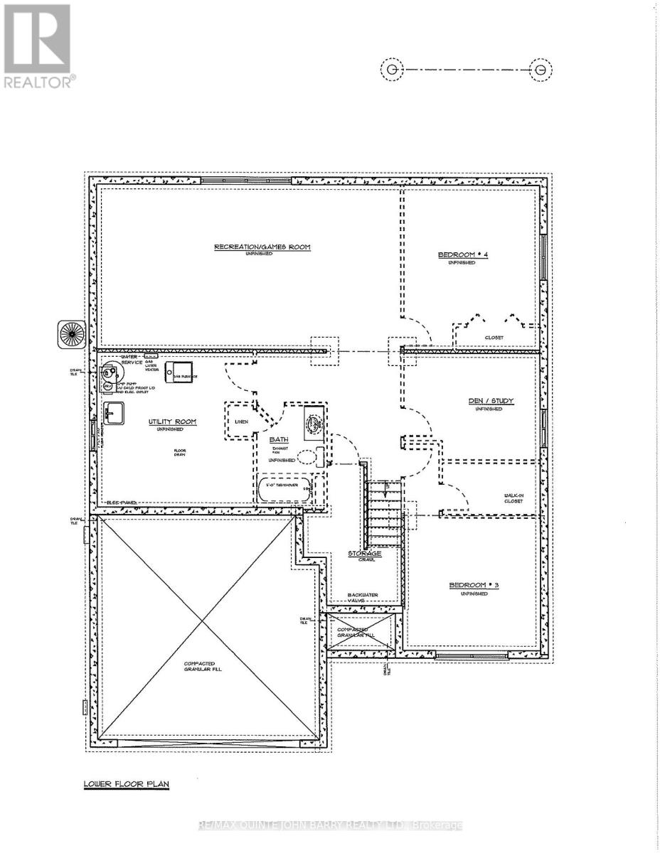
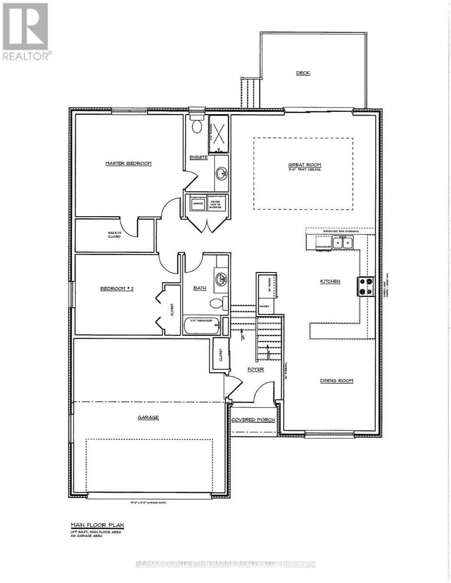
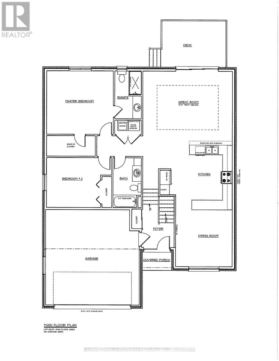
*** Price includes the currently legislated HST New Housing Rebate of $24,000. Proposed Federal and Provincial rebate programs may provide approximately $61,581 in additional savings for eligible buyers, resulting in a potential adjusted purchase price of approximately $658,319 *** Built by Klemencic Homes, this finished 1,477 sq ft Linden Model offers immediate possession and is move-in ready, thoughtfully designed for modern living. The open-concept, carpet-free main floor features a welcoming foyer, a bright kitchen with standard quartz countertops overlooking the dining and family areas, and access to a rear deck - perfect for everyday living and easy entertaining. The primary bedroom includes a walk-in closet and private 3 pc ensuite, complemented by a second bedroom, a 4-pc main bath, and convenient main-floor laundry. The unfinished lower level adds flexibility, offering future potential for a recreation space, additional bedrooms, office or den, and utility room. Backed by a 7-year Tarion Warranty. (id:47421)
Interested in obtaining the full price history for this property? Contact us!Contact us! Our real estate professionals would be happy to provide a complete listing history with historical sold prices and dates.
Detailed Information
Bedrooms
2
Bathrooms
2
Lot
49.17 x 108.25 ft
Amenities Nearby
Golf Nearby, Hospital, Park, Place of Worship, Schools
Community Features
School Bus
Equipment
Water Heater - Tankless, Water Heater
Listing Contract Date
2026-01-01
Location Description
Cross Streets: Hillside Meadow Drive. ** Directions: South on County Rd 40 (Wooler Road), Left onto Loyalist Parkway, Left onto 2nd Dughill Rd to Hillside Meadow to Parkland Cir.
Ownership Type
Freehold
# of Parking Spaces
6
Property Type
Single Family
Rental Equipment
Water Heater - Tankless, Water Heater
Structures
Deck
Transaction Type
For sale
Zoning Description
R3-8
Building
Age
New building
Architectural Style
Bungalow
Basement Development
Unfinished
Basement Type
Full (Unfinished)
Construction Style (Attachment)
Detached
Cooling Type
Central air conditioning
Exterior Finish
Brick, Stone
Foundation Type
Concrete
Heating Fuel
Natural gas
Heating Type
Forced air
Stories Total
1
Type
House
Utility Water
Municipal water
Rooms
Room
Level
Dimensions
Notes
Kitchen
Main level
3.66 m x 4.42 m
Dining room
Main level
3.66 m x 3.66 m
Family room
Main level
4.47 m x 5.77 m
Primary Bedroom
Main level
4.29 m x 4.06 m
Bedroom
Main level
3.2 m x 3.48 m
Parking Spaces
Name
Spaces
Attached Garage
Garage
Utilities
Type
Description
Cable
Available
Electricity
Installed
Sewer
Installed
Land
Total Size
49.2 x 108.3 FT
Amenities
Golf Nearby, Hospital, Park, Place of Worship, Schools
Sewer
Sanitary sewer
Size of Irregular Land
49.2 x 108.3 FT
Terms of Use
Please review and agree to the following terms of use to access the listing content:
REALTOR®, REALTORS®, and the REALTOR® logo are certification marks that are owned by REALTOR® Canada Inc. and licensed exclusively to The Canadian Real Estate Association (CREA). These certification marks identify real estate professionals who are members of CREA and who must abide by CREA's By-Laws, Rules, and the REALTOR® Code. The MLS® trademark and the MLS® logo are owned by CREA and identify the quality of services provided by real estate professionals who are members of CREA;
The information contained on this site is based in whole or in part on information that is provided by members of CREA, who are responsible for its accuracy. CREA reproduces and distributes this information as a service for its members and assumes no responsibility for its accuracy;
This website is operated by a brokerage or salesperson who is a member of CREA;
The listing content on this website is protected by copyright and other laws, and is intended solely for the private, non-commercial use by individuals. Any other reproduction, distribution or use of the content, in whole or in part, is specifically forbidden. The prohibited uses include commercial use, "screen scraping", "database scraping", and any other activity intended to collect, store, reorganize or manipulate data on the pages produced by or displayed on this website.
The information contained on this site is based in whole or in part on information that is provided under copyright by the Toronto Regional Real Estate Board (TRREB) or by members of The Canadian Real Estate Association (CREA), who are responsible for its accuracy. TRREB and CREA reproduce and distribute this information as a service for their members and assume no responsibility for its accuracy. All information displayed is believed to be accurate but is not guaranteed and should be independently verified. No warranties or representations of any kind are made with respect to the accuracy of such information. The information provided herein must only be used by consumers that have a bona fide interest in the purchase, sale, or lease of real estate and may not be used for any commercial purpose or any other purpose.