$389,000
FOR SALE

Condo Townhouse Multi-Level

Bedrooms: 3Bathrooms: 2
Maintenance Fees: $512

8040 Radium Golf Course Road #7
Radium Hot Springs, BC V0A 1M0

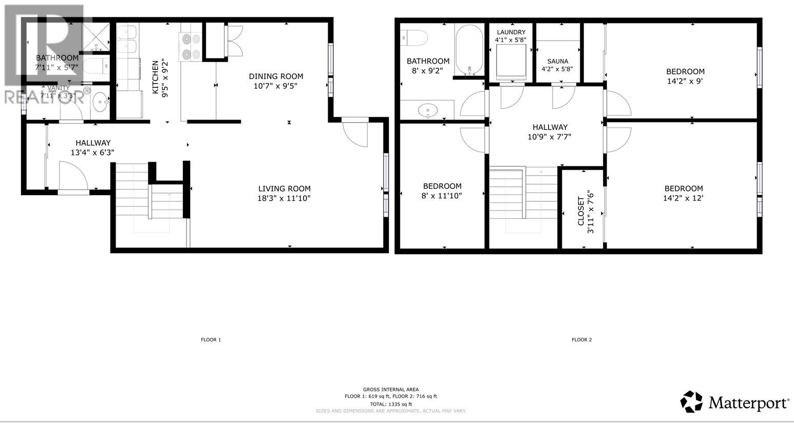
*Great views! *Great layout! *Great condition! Welcome to #7 Radium Hill. You are up on top (no basement bedrooms here) with lots of sunshine (south facing covered deck) and awesome views of the Radium Golf Course, with glimpses of the Purcell and Rocky Mountains. This unit has had an extensive renovation (kitchen, bathrooms, flooring, paint) about ten years ago and has been lightly used (not used for short term rentals). This the largest layout, featuring three full bedrooms, sauna, and two lofts (perfect for sleeping the entire extended family). Whether this is a recreational retreat and the chance to make memories in the mountains, or even viable for full time living- don't hesitate on this quality offering! (id:47421)
Share
Listed By eXp Realty
Data Provided By Association of Interior REALTORS®
MLS® Listing Number 10371663
Last Updated May 01, 2026
Property Summary
Property Type Condo Townhouse

More like this:
Maintenance Fees $512
Neighbourhood Radium Hot Springs
Community Radium Golf Course Condos
Price History

Interested in obtaining the full price history for this property?
Contact us!Contact us! Our real estate professionals would be happy to provide a complete listing history with historical sold prices and dates.

Detailed Information
Bedrooms 3
Bathrooms 2
Community Features Rentals Allowed
Listing Contract Date 2025-12-30
Maintenance Fee Payment Frequency Monthly
Maintenance Fee Type Cable TV, Reserve Fund Contributions, Insurance, Ground Maintenance, Other, See Remarks, Sewer, Waste Removal, Water
Municipal ID 006-911-323
Ownership Type Strata
Property Type Single Family
Transaction Type For sale
Building
Architectural Style Multi-level
Constructed Date 1981
Construction Style (Attachment) Attached
Construction Style (Split Level) Other
Heating Type Baseboard heaters
Stories Total 3
Type Row / Townhouse
Utility Water Private Utility
Rooms
Room Level Dimensions Notes
OtherSecond level3'11'' x 7'6''
Laundry roomSecond level4'1'' x 5'8''
OtherSecond level10'9'' x 7'7''
SaunaSecond level4'2'' x 5'8''
Primary BedroomSecond level14'2'' x 12'
BedroomSecond level14'2'' x 9'
BedroomSecond level8' x 11'10''
Full bathroomSecond level8' x 9'2''
OtherMain level13'4'' x 6'3''
OtherMain level7'11'' x 3'3''
Living roomMain level18'3'' x 11'10''
Dining roomMain level10'7'' x 9'5''
KitchenMain level9'5'' x 9'2''
Full bathroomMain level7'11'' x 5'7''
Parking Spaces
Name Spaces
Additional Parking
Land
Total Size under 1 acre
Sewer Municipal sewage system
External Links

The information contained on this site is based in whole or in part on information that is provided under copyright by the Toronto Regional Real Estate Board (TRREB) or by members of The Canadian Real Estate Association (CREA), who are responsible for its accuracy. TRREB and CREA reproduce and distribute this information as a service for their members and assume no responsibility for its accuracy. All information displayed is believed to be accurate but is not guaranteed and should be independently verified. No warranties or representations of any kind are made with respect to the accuracy of such information.
The information provided herein must only be used by consumers that have a bona fide interest in the purchase, sale, or lease of real estate and may not be used for any commercial purpose or any other purpose.

FREE ESTIMATES ARE COMING

Reserve Your Spot To Be Notified
or

Coming soon to select cities
in North America

(We'll never share your details)