Welcome To Lakepoint Village's Land Leased Community Located Just Outside Of Orillia With All The Amenities You Need! This Home Offers Elegant Main Floor Living. This Severn A Model is New Construction - A Great Opportunity to Select Your Preferred Finishes. **EXTRAS** Central Air (id:47421)
Interested in obtaining the full price history for this property? Contact us!Contact us! Our real estate professionals would be happy to provide a complete listing history with historical sold prices and dates.
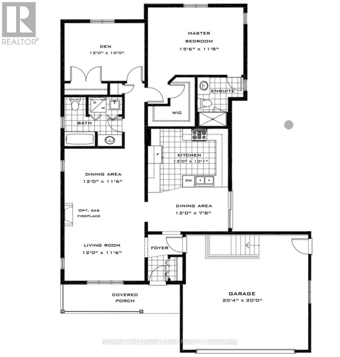
Detailed Information
Bedrooms
2
Bathrooms
2
Lot
60 x 82 ft
Equipment
Water Heater
Listing Contract Date
2025-09-09
Location Description
Cross Streets: Plum Point Rd/Conc 10. ** Directions: Hwy 12 to Plum Point Road.
Ownership Type
Leasehold/Leased Land
# of Parking Spaces
4
Property Type
Single Family
Rental Equipment
Water Heater
Transaction Type
For sale
Building
Age
New building
Architectural Style
Bungalow
Basement Type
Crawl space
Construction Style (Attachment)
Detached
Cooling Type
Central air conditioning
Exterior Finish
Vinyl siding
Foundation Type
Poured Concrete
Heating Fuel
Propane
Heating Type
Forced air
Stories Total
1
Type
House
Rooms
Room
Level
Dimensions
Notes
Kitchen
Main level
3.05 m x 3.96 m
Eating area
Main level
3.65 m x 2.37 m
Living room
Main level
3.65 m x 3.5 m
Dining room
Main level
3.65 m x 3.5 m
Primary Bedroom
Main level
4.75 m x 3.5 m
Bedroom 2
Main level
3.65 m x 3.05 m
Parking Spaces
Name
Spaces
Attached Garage
Garage
Land
Total Size
60 x 82 FT
Size of Irregular Land
60 x 82 FT
Terms of Use
Please review and agree to the following terms of use to access the listing content:
REALTOR®, REALTORS®, and the REALTOR® logo are certification marks that are owned by REALTOR® Canada Inc. and licensed exclusively to The Canadian Real Estate Association (CREA). These certification marks identify real estate professionals who are members of CREA and who must abide by CREA's By-Laws, Rules, and the REALTOR® Code. The MLS® trademark and the MLS® logo are owned by CREA and identify the quality of services provided by real estate professionals who are members of CREA;
The information contained on this site is based in whole or in part on information that is provided by members of CREA, who are responsible for its accuracy. CREA reproduces and distributes this information as a service for its members and assumes no responsibility for its accuracy;
This website is operated by a brokerage or salesperson who is a member of CREA;
The listing content on this website is protected by copyright and other laws, and is intended solely for the private, non-commercial use by individuals. Any other reproduction, distribution or use of the content, in whole or in part, is specifically forbidden. The prohibited uses include commercial use, "screen scraping", "database scraping", and any other activity intended to collect, store, reorganize or manipulate data on the pages produced by or displayed on this website.
The information contained on this site is based in whole or in part on information that is provided under copyright by the Toronto Regional Real Estate Board (TRREB) or by members of The Canadian Real Estate Association (CREA), who are responsible for its accuracy. TRREB and CREA reproduce and distribute this information as a service for their members and assume no responsibility for its accuracy. All information displayed is believed to be accurate but is not guaranteed and should be independently verified. No warranties or representations of any kind are made with respect to the accuracy of such information. The information provided herein must only be used by consumers that have a bona fide interest in the purchase, sale, or lease of real estate and may not be used for any commercial purpose or any other purpose.