Welcome to 3071 Dumont Way, a stunning, brand-new 1,753 sq ft two-storey home in the desirable neighborhood of The Towns. The bright, open-concept main floor is enhanced by soaring 9ft ceilings, creating an airy and spacious feel throughout the kitchen with its large island, the dedicated dining room, inviting living room, and the highly sought-after main-floor bedroom and 3-piece full bathroom. Upstairs, the private second level is home to a spacious primary bedroom with a 4-piece ensuite and walk-in closet, two additional bedrooms, another full bathroom, a versatile bonus room, and a dedicated laundry room. A major highlight is the legal basement suite, providing an excellent mortgage helper with its own separate entrance, a full second kitchen, a comfortable living room, two additional bedrooms, and a 3-piece bathroom. This exceptional property offers a total of 6 bedrooms and 4 bathrooms, plus the comfort of central air and a natural gas BBQ hookup. With a double attached, heated, and fully insulated garage and an HRV, this home delivers the perfect blend of style, comfort, and investment potential. Kitchen appliances and laundry for both units are included in the purchase price. A showing of a similar kind of home can be arranged. Basement suite incentive is already included in the asking price. Don’t miss this one — book your viewing today! (id:47421)
Interested in obtaining the full price history for this property? Contact us!Contact us! Our real estate professionals would be happy to provide a complete listing history with historical sold prices and dates.
Detailed Information
Bedrooms
6
Bathrooms
4
Features
Double width or more driveway, Sump Pump
Listing Contract Date
2025-11-03
Ownership Type
Freehold
Property Type
Single Family
Structures
Deck
Transaction Type
For sale
Building
Appliances
Washer, Refrigerator, Dishwasher, Dryer, Microwave, Garage door opener remote(s), Stove
Architectural Style
2 Level
Basement Development
Finished
Basement Type
Full (Finished)
Constructed Date
2025
Construction Style (Attachment)
Detached
Cooling Type
Central air conditioning
Heating Fuel
Electric, Natural gas
Heating Type
Baseboard heaters, Forced air
Stories Total
2
Type
House
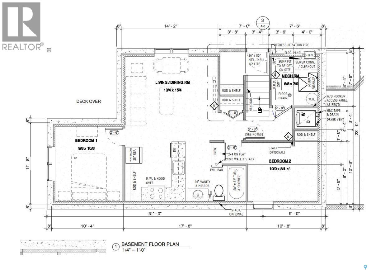
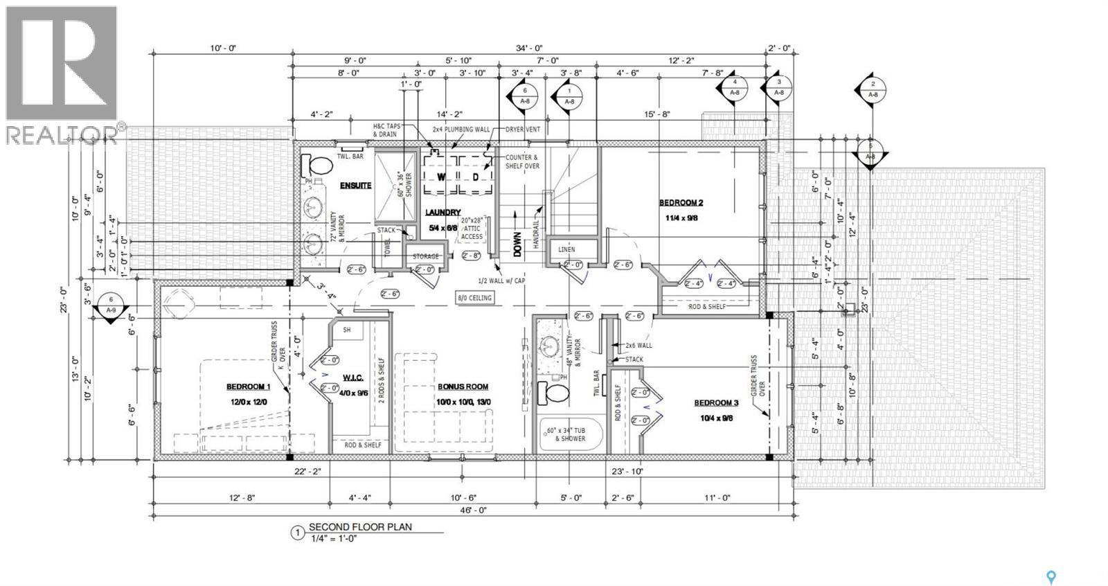
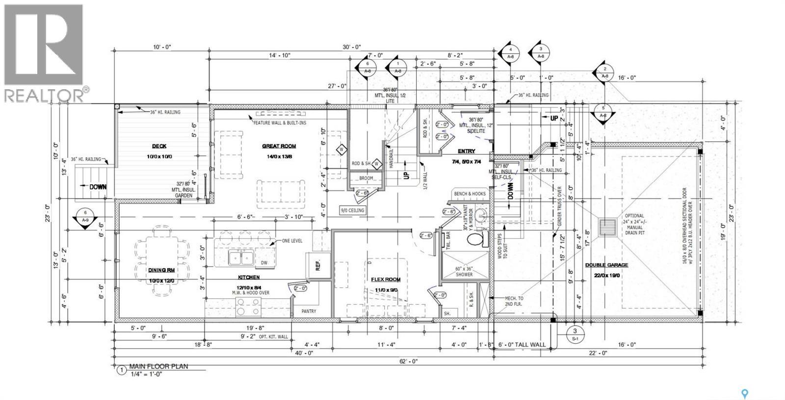
Rooms
Room
Level
Dimensions
Notes
Primary Bedroom
Second level
12 ft x 12 ft
4pc Ensuite bath
Second level
Measurements not available
Bedroom
Second level
9 ft 8 in x 11 ft 4 in
Bedroom
Second level
9 ft 8 in x 10 ft 4 in
4pc Bathroom
Second level
Measurements not available
Bonus Room
Second level
13 ft x 10 ft
Laundry room
Second level
Measurements not available
Kitchen
Basement
9 ft x 7 ft 2 in
Living room
Basement
15 ft 4 in x 13 ft 4 in
Bedroom
Basement
10 ft 8 in x 9 ft 8 in
Bedroom
Basement
8 ft 4 in x 10 ft
3pc Bathroom
Basement
Measurements not available
Laundry room
Basement
Measurements not available
Foyer
Main level
Measurements not available
Kitchen
Main level
8 ft 4 in x 12 ft 10 in
Living room
Main level
13 ft 8 in x 14 ft
Dining room
Main level
12 ft x 10 ft
Bedroom
Main level
9 ft x 11 ft
3pc Bathroom
Main level
Measurements not available
Parking Spaces
Name
Spaces
Attached Garage
Heated Garage
Parking Space(s)
4
Land
Total Size
3560 square feet
Size of Irregular Land
3560.00
Terms of Use
Please review and agree to the following terms of use to access the listing content:
REALTOR®, REALTORS®, and the REALTOR® logo are certification marks that are owned by REALTOR® Canada Inc. and licensed exclusively to The Canadian Real Estate Association (CREA). These certification marks identify real estate professionals who are members of CREA and who must abide by CREA's By-Laws, Rules, and the REALTOR® Code. The MLS® trademark and the MLS® logo are owned by CREA and identify the quality of services provided by real estate professionals who are members of CREA;
The information contained on this site is based in whole or in part on information that is provided by members of CREA, who are responsible for its accuracy. CREA reproduces and distributes this information as a service for its members and assumes no responsibility for its accuracy;
This website is operated by a brokerage or salesperson who is a member of CREA;
The listing content on this website is protected by copyright and other laws, and is intended solely for the private, non-commercial use by individuals. Any other reproduction, distribution or use of the content, in whole or in part, is specifically forbidden. The prohibited uses include commercial use, "screen scraping", "database scraping", and any other activity intended to collect, store, reorganize or manipulate data on the pages produced by or displayed on this website.
The information contained on this site is based in whole or in part on information that is provided under copyright by the Toronto Regional Real Estate Board (TRREB) or by members of The Canadian Real Estate Association (CREA), who are responsible for its accuracy. TRREB and CREA reproduce and distribute this information as a service for their members and assume no responsibility for its accuracy. All information displayed is believed to be accurate but is not guaranteed and should be independently verified. No warranties or representations of any kind are made with respect to the accuracy of such information. The information provided herein must only be used by consumers that have a bona fide interest in the purchase, sale, or lease of real estate and may not be used for any commercial purpose or any other purpose.