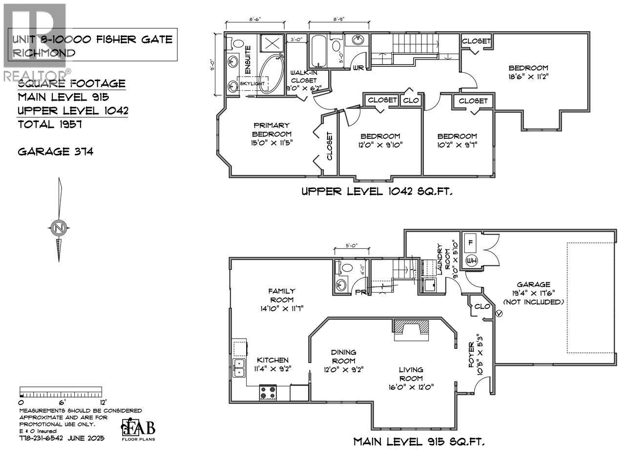
This Court-Ordered Foreclosure Sale is your chance to own a standout home in Alderbridge Estates-one of Richmond´s most desirable family neighborhoods. With nearly 2,000 square ft of living space, this 4-bedroom townhome feels more like a detached house. The only shared wall is at the double side-by-side garage, offering added privacy and quiet. Inside, the layout is bright and spacious, with a fenced backyard right off the kitchen and dining area-perfect for outdoor entertaining or a safe play area for kids. Upstairs features four well-sized bedrooms, a large laundry and storage room, and ample closet space throughout. Just minutes from Tomsett Elementary, parks, shopping, and everyday amenities. Homes like this rarely hit the market-don´t miss your opportunity. Thank you, Luke (id:47421)
Interested in obtaining the full price history for this property? Contact us!Contact us! Our real estate professionals would be happy to provide a complete listing history with historical sold prices and dates.
Detailed Information
Bedrooms
4
Bathrooms
3
Community Features
Pets Allowed With Restrictions
Features
Central location, Private setting
Maintenance Fee Payment Frequency
Monthly
Municipal ID
018-996-183
Ownership Type
Strata
# of Parking Spaces
2
Property Type
Single Family
Transaction Type
For sale
Building
Appliances
All
Architectural Style
2 Level
Constructed Date
1994
Heating Fuel
Electric, Natural gas
Heating Type
Radiant heat
Type
Row / Townhouse
Parking Spaces
Name
Spaces
Garage
2
Visitor Parking
Land
Total Size
0 square feet
Terms of Use
Please review and agree to the following terms of use to access the listing content:
REALTOR®, REALTORS®, and the REALTOR® logo are certification marks that are owned by REALTOR® Canada Inc. and licensed exclusively to The Canadian Real Estate Association (CREA). These certification marks identify real estate professionals who are members of CREA and who must abide by CREA's By-Laws, Rules, and the REALTOR® Code. The MLS® trademark and the MLS® logo are owned by CREA and identify the quality of services provided by real estate professionals who are members of CREA;
The information contained on this site is based in whole or in part on information that is provided by members of CREA, who are responsible for its accuracy. CREA reproduces and distributes this information as a service for its members and assumes no responsibility for its accuracy;
This website is operated by a brokerage or salesperson who is a member of CREA;
The listing content on this website is protected by copyright and other laws, and is intended solely for the private, non-commercial use by individuals. Any other reproduction, distribution or use of the content, in whole or in part, is specifically forbidden. The prohibited uses include commercial use, "screen scraping", "database scraping", and any other activity intended to collect, store, reorganize or manipulate data on the pages produced by or displayed on this website.
The information contained on this site is based in whole or in part on information that is provided under copyright by the Toronto Regional Real Estate Board (TRREB) or by members of The Canadian Real Estate Association (CREA), who are responsible for its accuracy. TRREB and CREA reproduce and distribute this information as a service for their members and assume no responsibility for its accuracy. All information displayed is believed to be accurate but is not guaranteed and should be independently verified. No warranties or representations of any kind are made with respect to the accuracy of such information. The information provided herein must only be used by consumers that have a bona fide interest in the purchase, sale, or lease of real estate and may not be used for any commercial purpose or any other purpose.