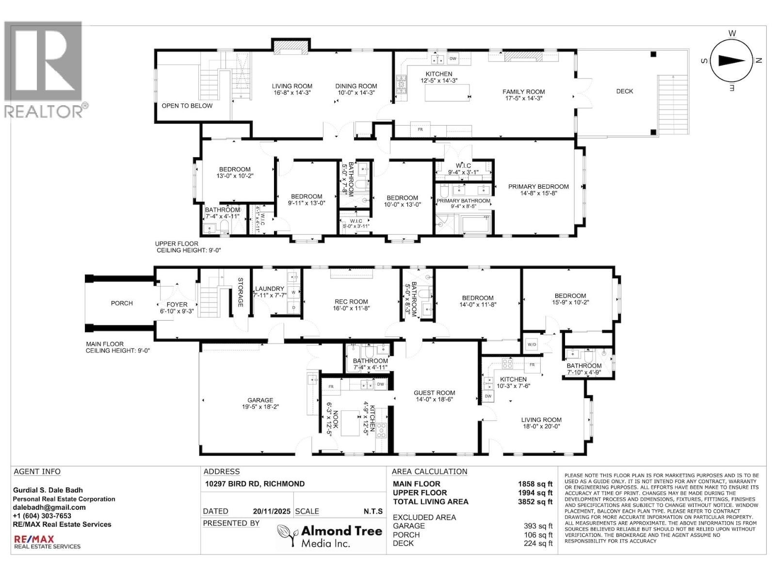
Custom-designed and built luxurious 7-bedroom, 6-bathroom Family Home residence in a central location with easy access to shopping, schools, Bus, SkyTrain, and major Bridges and the Tunnel for unmatched convenience. The upper level offers 4 spacious bedrooms, while the lower level includes a 1-bedroom legal suite plus an additional 2-bedroom suite for owners. A double garage with an electric gate and a fully fenced and landscaped backyard. Enjoy summer BBQ on a fully covered second-floor sundeck with mountain, greenbelt views, House features HRV & A/C, security system plus camera system for peace of mind. Ideal home for growing family with room for everyone. Must see to appreciate home. (id:47421)
Interested in obtaining the full price history for this property? Contact us!Contact us! Our real estate professionals would be happy to provide a complete listing history with historical sold prices and dates.
Detailed Information
Bedrooms
7
Bathrooms
6
Lot
40 x 0 ft
Amenities Nearby
Recreation, Shopping
Features
Central location, Private setting
Municipal ID
029-630-886
Ownership Type
Freehold
# of Parking Spaces
6
Property Type
Single Family
Transaction Type
For sale
Views
View
Building
Appliances
All, Oven - Built-In
Architectural Style
2 Level
Constructed Date
2016
Construction Style (Attachment)
Detached
Cooling Type
Air Conditioned
Fire Protection
Security system
Fireplace Present
Yes
# of Fireplaces
2
Fixture
Drapes/Window coverings
Heating Fuel
Natural gas
Heating Type
Heat Pump, Radiant heat
Type
House
Parking Spaces
Name
Spaces
Garage
Carport
Garage
2
Land
Total Size
7413 square feet
Amenities
Recreation, Shopping
Size of Irregular Land
7413
Terms of Use
Please review and agree to the following terms of use to access the listing content:
REALTOR®, REALTORS®, and the REALTOR® logo are certification marks that are owned by REALTOR® Canada Inc. and licensed exclusively to The Canadian Real Estate Association (CREA). These certification marks identify real estate professionals who are members of CREA and who must abide by CREA's By-Laws, Rules, and the REALTOR® Code. The MLS® trademark and the MLS® logo are owned by CREA and identify the quality of services provided by real estate professionals who are members of CREA;
The information contained on this site is based in whole or in part on information that is provided by members of CREA, who are responsible for its accuracy. CREA reproduces and distributes this information as a service for its members and assumes no responsibility for its accuracy;
This website is operated by a brokerage or salesperson who is a member of CREA;
The listing content on this website is protected by copyright and other laws, and is intended solely for the private, non-commercial use by individuals. Any other reproduction, distribution or use of the content, in whole or in part, is specifically forbidden. The prohibited uses include commercial use, "screen scraping", "database scraping", and any other activity intended to collect, store, reorganize or manipulate data on the pages produced by or displayed on this website.
The information contained on this site is based in whole or in part on information that is provided under copyright by the Toronto Regional Real Estate Board (TRREB) or by members of The Canadian Real Estate Association (CREA), who are responsible for its accuracy. TRREB and CREA reproduce and distribute this information as a service for their members and assume no responsibility for its accuracy. All information displayed is believed to be accurate but is not guaranteed and should be independently verified. No warranties or representations of any kind are made with respect to the accuracy of such information. The information provided herein must only be used by consumers that have a bona fide interest in the purchase, sale, or lease of real estate and may not be used for any commercial purpose or any other purpose.