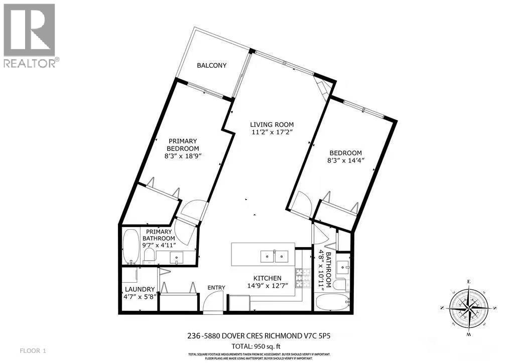
Riverdale-one of the best community in Richmond, Steps to the dyke, trails, shopping plaza at Terra Nova, and Richmond oval. JN Burnett Secondary and Archibald Blair Elementary. Renovated, modern ,bright & spacious 2 bedroom 2 full baths, condo facing the well landscaped courtyard & wonderful river and mountain view. Fantastic layout with open kitchen, separate bedrooms for privacy, gas fireplace, covered balcony with great water and mountain view, designer paint, and laminated flooring. 1 secured under building parking and 1 storage locker. A very well maintained rain screen building, metal roof, piping retrofit, common area carpet replaced, with roomy lounge, gym and plenty of visitor parking stalls. Openhouse,Sun2:00-4:00. (id:47421)
Interested in obtaining the full price history for this property? Contact us!Contact us! Our real estate professionals would be happy to provide a complete listing history with historical sold prices and dates.
Detailed Information
Bedrooms
2
Bathrooms
2
Amenities Nearby
Playground
Community Features
Pets Allowed
Features
Elevator, Gated community
Maintenance Fee Payment Frequency
Monthly
Municipal ID
023-233-885
Ownership Type
Strata
# of Parking Spaces
1
Property Type
Single Family
Structures
Clubhouse
Transaction Type
For sale
Views
View
Waterfront Type
Waterfront
Building
Amenities
Exercise Centre, Laundry - In Suite, Recreation Centre
Appliances
All
Constructed Date
1995
Heating Fuel
Natural gas
Heating Type
Baseboard heaters
Type
Apartment
Land
Total Size
0 square feet
Amenities
Playground
Landscape Features
Garden Area
Terms of Use
Please review and agree to the following terms of use to access the listing content:
REALTOR®, REALTORS®, and the REALTOR® logo are certification marks that are owned by REALTOR® Canada Inc. and licensed exclusively to The Canadian Real Estate Association (CREA). These certification marks identify real estate professionals who are members of CREA and who must abide by CREA's By-Laws, Rules, and the REALTOR® Code. The MLS® trademark and the MLS® logo are owned by CREA and identify the quality of services provided by real estate professionals who are members of CREA;
The information contained on this site is based in whole or in part on information that is provided by members of CREA, who are responsible for its accuracy. CREA reproduces and distributes this information as a service for its members and assumes no responsibility for its accuracy;
This website is operated by a brokerage or salesperson who is a member of CREA;
The listing content on this website is protected by copyright and other laws, and is intended solely for the private, non-commercial use by individuals. Any other reproduction, distribution or use of the content, in whole or in part, is specifically forbidden. The prohibited uses include commercial use, "screen scraping", "database scraping", and any other activity intended to collect, store, reorganize or manipulate data on the pages produced by or displayed on this website.
The information contained on this site is based in whole or in part on information that is provided under copyright by the Toronto Regional Real Estate Board (TRREB) or by members of The Canadian Real Estate Association (CREA), who are responsible for its accuracy. TRREB and CREA reproduce and distribute this information as a service for their members and assume no responsibility for its accuracy. All information displayed is believed to be accurate but is not guaranteed and should be independently verified. No warranties or representations of any kind are made with respect to the accuracy of such information. The information provided herein must only be used by consumers that have a bona fide interest in the purchase, sale, or lease of real estate and may not be used for any commercial purpose or any other purpose.