When Viewing This Property on Realtor.ca Please Click on the Multimedia or Virtual Tour Link for More Property Info. Welcome to The Village at the Fairways, Riverview!! High Quality, executive semidetached homes. This is an exclusive community for Atlantic Canadas award-winning custom homebuilder. This is the closest residential development to Downtown Moncton!!!! Our pricing includes Very energy efficient units, with mini split heat pumps, Tray ceiling with crown molding, aluminum railings, Landscaped lawn and paved driveway, attached garage, 10 Year New Home Warranty. we also have a maintenance agreement in place so that all the lawn cutting, and snow removal happens at the same time, keeping the community beautiful! The main floor is perfect for entertaining with an open concept kitchen with island, dining room and living room, master bedroom with walk-in closet and en-suite bath, second bedroom, second full bathroom, mud room off the garage with laundry. This house plans is much larger than most at 1362 Square Feet and options are fully customizable for each customer. We also have options in this development for 2 car garages and fully customized floor plans. (id:47421)
Interested in obtaining the full price history for this property? Contact us!Contact us! Our real estate professionals would be happy to provide a complete listing history with historical sold prices and dates.
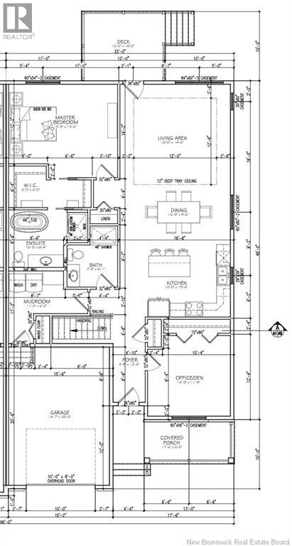
Detailed Information
Bedrooms
2
Bathrooms
2
Features
Balcony/Deck/Patio
Location Description
Pinewood Rd to Rosebank Cres
Maintenance Fee Payment Frequency
Monthly
Municipal ID
05124458
Ownership Type
Freehold
Property Type
Single Family
Structures
None
Transaction Type
For sale
Building
Constructed Date
2025
Cooling Type
Air Conditioned, Heat Pump
Exterior Finish
Stone, Vinyl
Flooring Type
Ceramic, Laminate
Foundation Type
Concrete
Heating Fuel
Electric
Heating Type
Baseboard heaters, Heat Pump
Total Finished Area
1362 sqft
Type
House
Utility Water
Municipal water
Rooms
Room
Level
Dimensions
Notes
4pc Bathroom
Main level
12'0'' x 8'0''
Bedroom
Main level
19'0'' x 13'0''
Primary Bedroom
Main level
12'0'' x 8'0''
Dining room
Main level
15'0'' x 10'0''
Kitchen
Main level
15'0'' x 10'0''
Living room
Main level
15'0'' x 15'0''
Parking Spaces
Name
Spaces
Attached Garage
Garage
Land
Total Size
0 acres
Access Type
Year-round access, Private Road
Landscape Features
Landscaped
Sewer
Municipal sewage system
Terms of Use
Please review and agree to the following terms of use to access the listing content:
REALTOR®, REALTORS®, and the REALTOR® logo are certification marks that are owned by REALTOR® Canada Inc. and licensed exclusively to The Canadian Real Estate Association (CREA). These certification marks identify real estate professionals who are members of CREA and who must abide by CREA's By-Laws, Rules, and the REALTOR® Code. The MLS® trademark and the MLS® logo are owned by CREA and identify the quality of services provided by real estate professionals who are members of CREA;
The information contained on this site is based in whole or in part on information that is provided by members of CREA, who are responsible for its accuracy. CREA reproduces and distributes this information as a service for its members and assumes no responsibility for its accuracy;
This website is operated by a brokerage or salesperson who is a member of CREA;
The listing content on this website is protected by copyright and other laws, and is intended solely for the private, non-commercial use by individuals. Any other reproduction, distribution or use of the content, in whole or in part, is specifically forbidden. The prohibited uses include commercial use, "screen scraping", "database scraping", and any other activity intended to collect, store, reorganize or manipulate data on the pages produced by or displayed on this website.
The information contained on this site is based in whole or in part on information that is provided under copyright by the Toronto Regional Real Estate Board (TRREB) or by members of The Canadian Real Estate Association (CREA), who are responsible for its accuracy. TRREB and CREA reproduce and distribute this information as a service for their members and assume no responsibility for its accuracy. All information displayed is believed to be accurate but is not guaranteed and should be independently verified. No warranties or representations of any kind are made with respect to the accuracy of such information. The information provided herein must only be used by consumers that have a bona fide interest in the purchase, sale, or lease of real estate and may not be used for any commercial purpose or any other purpose.