Commercial/Retail
Maintenance Fees: $482
251 Spruce Street #105
Rural Red Deer County, AB
T4E 1B4
| Listed By | RCR - Royal Carpet Realty Ltd. |
|---|---|
| Data Provided By | Central Alberta REALTORS® Association |
| MLS® Listing Number | A2265646 |
| Last Updated | May 30, 2026 |
| Property Type |
Commercial/Retail
More like this: |
|---|---|
| Use | Auto Service/Repair |
| Maintenance Fees | $482 |
| Community | Piper Creek Business Park |
Interested in obtaining the full price history for this property?
Contact us!Contact us! Our real estate professionals would be happy to provide a complete listing history with historical sold prices and dates.
| Listing Contract Date | 2025-10-20 |
|---|---|
| Maintenance Fee Payment Frequency | Monthly |
| Municipal ID | 0039086699 |
| Ownership Type | Condominium/Strata |
| Plan | 2220317 |
| Property Type | Other |
| Transaction Type | For sale |
| Total Buildings | 1 |
| Zoning Description | BSI |
| Business Type | Automobile, Construction, Industrial, Industrial, Manufacturing, Other, Other, Recreation, Retail and Wholesale |
|---|---|
| Business Subtype | Auto service/repair, Construction, Warehouse, Industrial, Manufacturing, Professional office(s), Other, Recreation, Wholesale |
| Constructed Date | 2015 |
|---|---|
| Construction Material | Wood frame |
| Foundation Type | Poured Concrete |
| Heating Fuel | Natural gas |
| Heating Type | Forced air, Radiant heat |
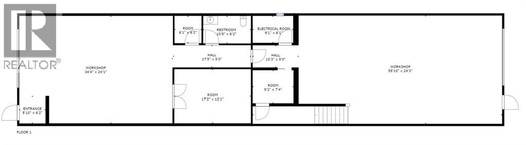
| Size (Exterior) | 3332 square feet |
| Total Finished Area | 3332 sqft |
| Type | Commercial Mix |
| Utility Water | Municipal water |
| Type | Description |
|---|---|
| Electricity | Connected |
| Natural Gas | Connected |
| Sewer | Connected |
| Water | Connected |
| Total Size | 0.00X0.00 | Unknown |
|---|---|
| Sewer | Municipal sewage system |
| Size of Irregular Land | 0.00X0.00 |
The information contained on this site is based in whole or in part on information that is provided under copyright by the Toronto Regional Real Estate Board (TRREB) or by members of The Canadian Real Estate Association (CREA), who are responsible for its accuracy. TRREB and CREA reproduce and distribute this information as a service for their members and assume no responsibility for its accuracy. All information displayed is believed to be accurate but is not guaranteed and should be independently verified. No warranties or representations of any kind are made with respect to the accuracy of such information.
The information provided herein must only be used by consumers that have a bona fide interest in the purchase, sale, or lease of real estate and may not be used for any commercial purpose or any other purpose.
FREE ESTIMATES ARE COMING
Reserve Your Spot To Be Notified
Coming soon to select cities
in North America
(We'll never share your details)



























