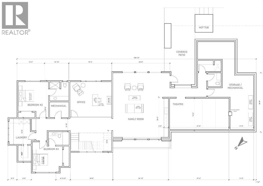
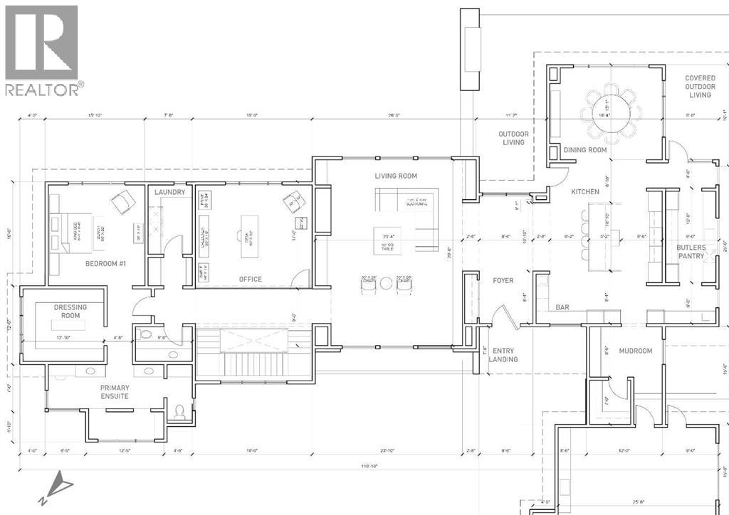
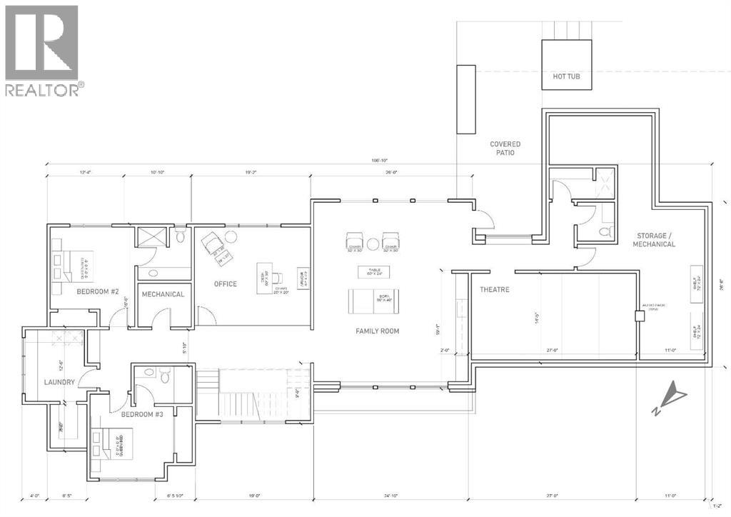
Experience the rare opportunity to own one of the most desirable properties in Silverhorn, an exclusive enclave in the heart of Bearspaw. This magnificent 2.12-acre estate lot—the largest in Phase 1—is perfectly positioned on a serene cul-de-sac surrounded by distinguished luxury residences, offering a remarkable setting for your dream home. Nestled into a wooded hillside overlooking a tranquil natural pond, this southeast-facing homesite is ideally suited for a walkout design, allowing you to fully embrace the peaceful beauty of its natural surroundings. The lot offers exceptional servicing, including water co-op, gas, power, electricity, Shaw high-speed fiber optic cable, and septic connection—all conveniently located at the lot line. Silverhorn’s architectural guidelines ensure enduring quality, refined aesthetics, and design integrity throughout the community, safeguarding your investment and maintaining the neighbourhood’s prestigious character. You also have the freedom to select your own builder, and *included* with *this* property are IBI Group–approved plans for a 3820 sq. ft. modern bungalow with a triple garage, and fully finished walk-out lower level with an additional 2800 square feet. The home has been meticulously and thoughtfully crafted and designed to harmonize with the land itself—its clean, contemporary architecture takes full advantage of the southeast orientation, expansive pond views, and the gentle contours of the wooded hillside. Every detail, from the window placement to the outdoor living spaces, has been thoughtfully crafted to celebrate the natural topography and serene setting, creating a home that feels both rooted in nature and refined in design. With a conservation-first vision, Silverhorn features over 50% open space, 7 kilometres of scenic walking trails, and ample privacy buffers between each property. Perfectly located just minutes west of Calgary, it offers a seamless balance between peaceful country living and urban convenience .Embrace the lifestyle you’ve been waiting for—a sanctuary of space, serenity, and sophistication in Silverhorn, Bearspaw’s premier estate community.Embrace the lifestyle you’ve been waiting for—a sanctuary of space, serenity, and sophistication in Silverhorn, Bearspaw’s premier estate community. (id:47421)
Interested in obtaining the full price history for this property? Contact us!Contact us! Our real estate professionals would be happy to provide a complete listing history with historical sold prices and dates.
Detailed Information
Listing Contract Date
2025-10-15
Municipal ID
0036614899
Ownership Type
Freehold
Plan
1510793
Property Type
Vacant Land
Transaction Type
For sale
Zoning Description
R-CRD p0.4
Building
Age
Age is unknown
Land
Total Size
2.12 acres
Acreage
Yes
Fence Type
Not fenced
Size of Irregular Land
2.12
Terms of Use
Please review and agree to the following terms of use to access the listing content:
REALTOR®, REALTORS®, and the REALTOR® logo are certification marks that are owned by REALTOR® Canada Inc. and licensed exclusively to The Canadian Real Estate Association (CREA). These certification marks identify real estate professionals who are members of CREA and who must abide by CREA's By-Laws, Rules, and the REALTOR® Code. The MLS® trademark and the MLS® logo are owned by CREA and identify the quality of services provided by real estate professionals who are members of CREA;
The information contained on this site is based in whole or in part on information that is provided by members of CREA, who are responsible for its accuracy. CREA reproduces and distributes this information as a service for its members and assumes no responsibility for its accuracy;
This website is operated by a brokerage or salesperson who is a member of CREA;
The listing content on this website is protected by copyright and other laws, and is intended solely for the private, non-commercial use by individuals. Any other reproduction, distribution or use of the content, in whole or in part, is specifically forbidden. The prohibited uses include commercial use, "screen scraping", "database scraping", and any other activity intended to collect, store, reorganize or manipulate data on the pages produced by or displayed on this website.
The information contained on this site is based in whole or in part on information that is provided under copyright by the Toronto Regional Real Estate Board (TRREB) or by members of The Canadian Real Estate Association (CREA), who are responsible for its accuracy. TRREB and CREA reproduce and distribute this information as a service for their members and assume no responsibility for its accuracy. All information displayed is believed to be accurate but is not guaranteed and should be independently verified. No warranties or representations of any kind are made with respect to the accuracy of such information. The information provided herein must only be used by consumers that have a bona fide interest in the purchase, sale, or lease of real estate and may not be used for any commercial purpose or any other purpose.