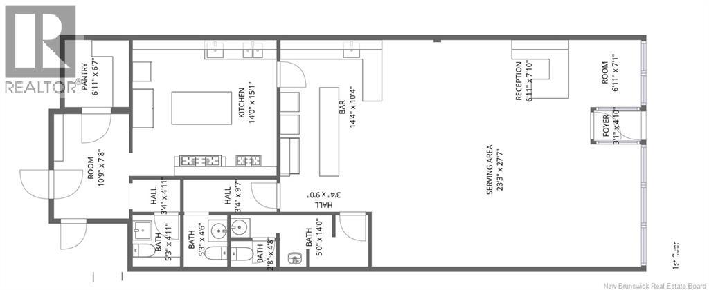
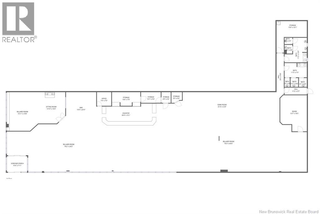
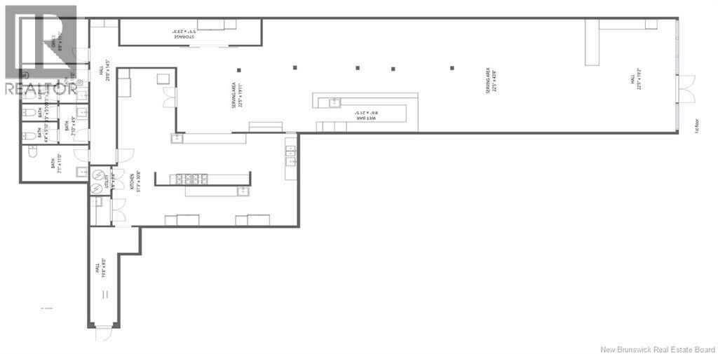
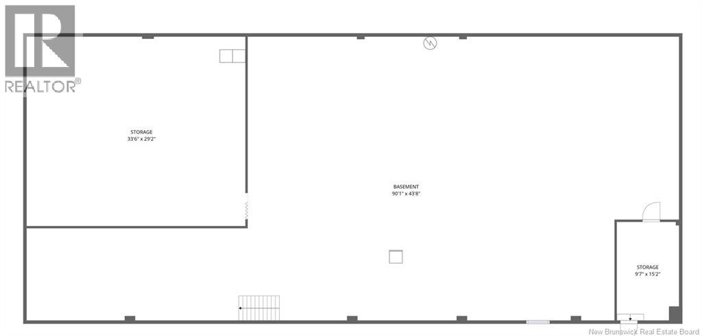
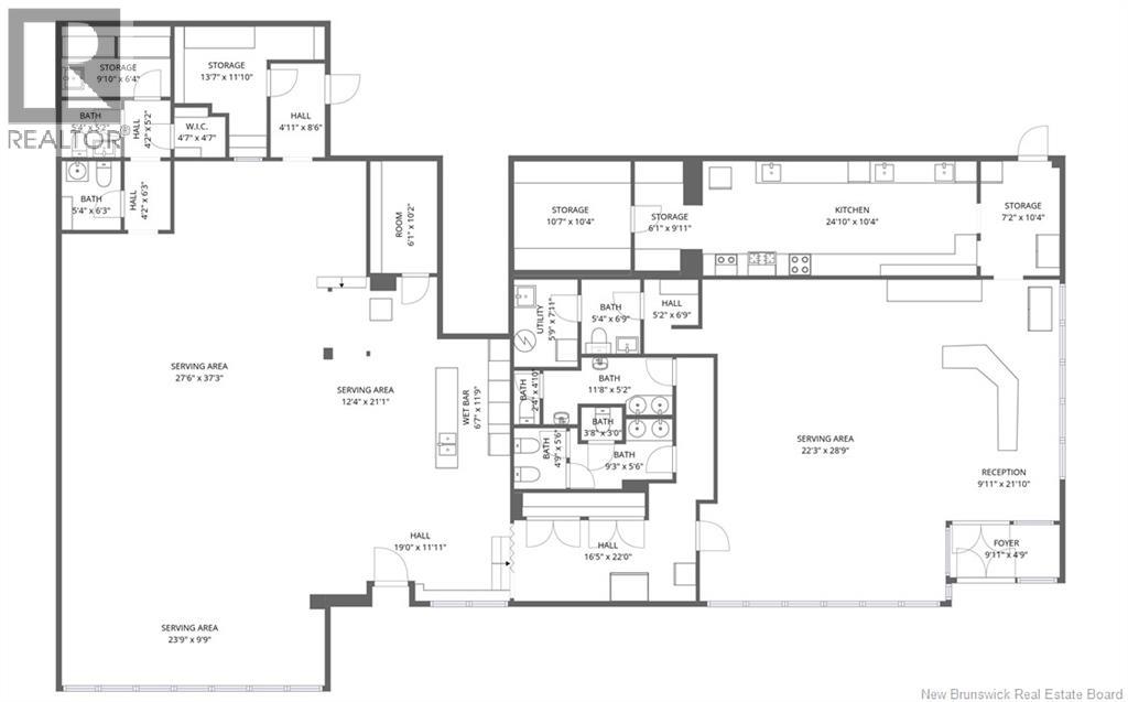
Exceptional opportunity to acquire a well-established, fully leased commercial plaza totaling just over 27,000 square feet. The property is home to 15 successful businesses, some of which have been operating at this location for over 30 years, reflecting long-term tenant stability and consistent performance. Ideally situated at a busy, high-visibility intersection on the rapidly growing west side, this plaza benefits from strong traffic counts, excellent exposure, and continued development in the surrounding area. Set on a generous 2.3-acre lot, the property offers ample on-site parking with 140+ spaces and three points of access from two major roads, allowing for smooth flow and easy access for patrons and tenants. The building also features approximately 4800 square feet of undeveloped basement space, offering additional income potential with exterior access. (id:47421)
Interested in obtaining the full price history for this property? Contact us!Contact us! Our real estate professionals would be happy to provide a complete listing history with historical sold prices and dates.
Detailed Information
Amenities Nearby
Public Transit
Equipment
None
Features
Level lot, Corner Site, Visual exposure
Location Description
Follow Catherwood St, Right on Manawagonish.
Municipal ID
55187181
Ownership Type
Freehold
Property Type
Other
Rental Equipment
None
Structures
None
Transaction Type
For sale
Zoning Description
General Commercial
Building
Constructed Date
1973
Cooling Type
Heat Pump
Exterior Finish
Brick, Metal
Fire Protection
Smoke Detectors, Sprinkler System-Fire, Security system
Heating Fuel
Electric, Natural gas
Heating Type
Heat Pump
Total Finished Area
27646 sqft
Land
Total Size
9242 square meters
Access Type
Year-round access, Public Road
Acreage
Yes
Amenities
Public Transit
Size of Irregular Land
9242
Terms of Use
Please review and agree to the following terms of use to access the listing content:
REALTOR®, REALTORS®, and the REALTOR® logo are certification marks that are owned by REALTOR® Canada Inc. and licensed exclusively to The Canadian Real Estate Association (CREA). These certification marks identify real estate professionals who are members of CREA and who must abide by CREA's By-Laws, Rules, and the REALTOR® Code. The MLS® trademark and the MLS® logo are owned by CREA and identify the quality of services provided by real estate professionals who are members of CREA;
The information contained on this site is based in whole or in part on information that is provided by members of CREA, who are responsible for its accuracy. CREA reproduces and distributes this information as a service for its members and assumes no responsibility for its accuracy;
This website is operated by a brokerage or salesperson who is a member of CREA;
The listing content on this website is protected by copyright and other laws, and is intended solely for the private, non-commercial use by individuals. Any other reproduction, distribution or use of the content, in whole or in part, is specifically forbidden. The prohibited uses include commercial use, "screen scraping", "database scraping", and any other activity intended to collect, store, reorganize or manipulate data on the pages produced by or displayed on this website.
The information contained on this site is based in whole or in part on information that is provided under copyright by the Toronto Regional Real Estate Board (TRREB) or by members of The Canadian Real Estate Association (CREA), who are responsible for its accuracy. TRREB and CREA reproduce and distribute this information as a service for their members and assume no responsibility for its accuracy. All information displayed is believed to be accurate but is not guaranteed and should be independently verified. No warranties or representations of any kind are made with respect to the accuracy of such information. The information provided herein must only be used by consumers that have a bona fide interest in the purchase, sale, or lease of real estate and may not be used for any commercial purpose or any other purpose.