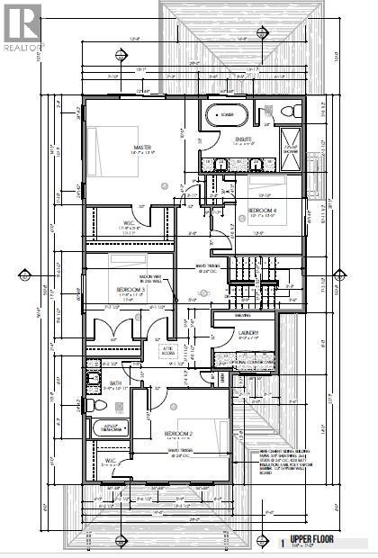
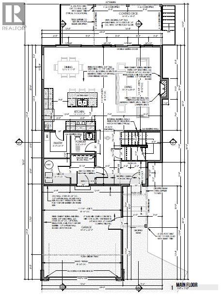
New home by Perfection Builders with 2,223 finished sq. ft. and potential for a 2-bedroom legal suite. The main level offers an open-concept living area with 9’ ceilings, a gas fireplace, vinyl plank flooring, and a custom kitchen with an island. Upstairs features four bedrooms, including a primary with a walk-in closet and ensuite, plus a laundry room and a second full bathroom. Includes central A/C and a 10-year new home warranty. Situated on a 0.18-acre lot in a convenient, central location close to schools, parks, shopping, and other amenities. Don't miss your chance to own this perfect family home in Joy Acres today. (id:47421)
Interested in obtaining the full price history for this property? Contact us!Contact us! Our real estate professionals would be happy to provide a complete listing history with historical sold prices and dates.
Detailed Information
Bedrooms
4
Bathrooms
3
Listing Contract Date
2025-12-08
Municipal ID
031-710-514
Ownership Type
Freehold
# of Parking Spaces
2
Property Type
Single Family
Transaction Type
For sale
Building
Constructed Date
2025
Construction Style (Attachment)
Detached
Cooling Type
Central air conditioning
# of Half Bathrooms
1
Heating Type
Forced air
Stories Total
3
Type
House
Utility Water
Municipal water
Rooms
Room
Level
Dimensions
Notes
Laundry room
Second level
8' x 7'9''
4pc Bathroom
Second level
10'11'' x 5'9''
Bedroom
Second level
12'6'' x 11'8''
Bedroom
Second level
11'8'' x 11'
Bedroom
Second level
10'1'' x 10'5''
Full ensuite bathroom
Second level
13'2'' x 9'6''
Primary Bedroom
Second level
14'7'' x 13'9''
Pantry
Main level
6'3'' x 6'3''
2pc Bathroom
Main level
5'9'' x 5'3''
Dining room
Main level
12' x 11'
Living room
Main level
15'3'' x 20'
Kitchen
Main level
12'5'' x 9'
Parking Spaces
Name
Spaces
Attached Garage
2
Land
Total Size
0.18 acres
Sewer
Municipal sewage system
Size of Irregular Land
0.18
Terms of Use
Please review and agree to the following terms of use to access the listing content:
REALTOR®, REALTORS®, and the REALTOR® logo are certification marks that are owned by REALTOR® Canada Inc. and licensed exclusively to The Canadian Real Estate Association (CREA). These certification marks identify real estate professionals who are members of CREA and who must abide by CREA's By-Laws, Rules, and the REALTOR® Code. The MLS® trademark and the MLS® logo are owned by CREA and identify the quality of services provided by real estate professionals who are members of CREA;
The information contained on this site is based in whole or in part on information that is provided by members of CREA, who are responsible for its accuracy. CREA reproduces and distributes this information as a service for its members and assumes no responsibility for its accuracy;
This website is operated by a brokerage or salesperson who is a member of CREA;
The listing content on this website is protected by copyright and other laws, and is intended solely for the private, non-commercial use by individuals. Any other reproduction, distribution or use of the content, in whole or in part, is specifically forbidden. The prohibited uses include commercial use, "screen scraping", "database scraping", and any other activity intended to collect, store, reorganize or manipulate data on the pages produced by or displayed on this website.
The information contained on this site is based in whole or in part on information that is provided under copyright by the Toronto Regional Real Estate Board (TRREB) or by members of The Canadian Real Estate Association (CREA), who are responsible for its accuracy. TRREB and CREA reproduce and distribute this information as a service for their members and assume no responsibility for its accuracy. All information displayed is believed to be accurate but is not guaranteed and should be independently verified. No warranties or representations of any kind are made with respect to the accuracy of such information. The information provided herein must only be used by consumers that have a bona fide interest in the purchase, sale, or lease of real estate and may not be used for any commercial purpose or any other purpose.