Own your own piece of heaven on beautiful Salt Spring Island! Admire the spectacular ocean view, and stunning sunsets. Groceries, restaurants and entertainment are found nearby in Ganges (7 minutes). Enjoy Salt Spring’s vibrant arts community. Hike the many trails in Mount Erskine Provincial Park which borders the property. Options are endless! 9 minutes from the Vesuvius ferry, the newly refurbished, open-concept carriage house sits on 21.66 acres of forested land and boasts floor-to-ceiling windows, a 40 x 10 ft. deck facing Vancouver Island. The 25 x 30 ft. garage/workshop can be used as is or converted to additional living space. Two 200-amp services and two ample wells (10gpm and 4gpm). Zoning permits subdivision into three lots, each with a main residence and cottage. Three fully serviced (water/hydro/septic) and three partially serviced RV/trailer sites provide immediate rental income opportunities. Contact your realtor and see what this unique property has to offer. (id:47421)
Interested in obtaining the full price history for this property? Contact us!Contact us! Our real estate professionals would be happy to provide a complete listing history with historical sold prices and dates.
Detailed Information
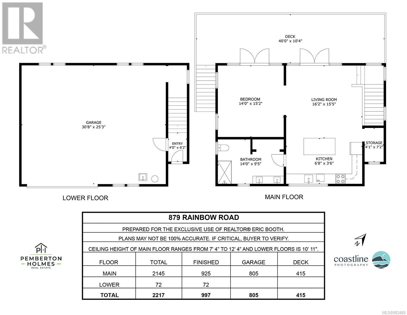
Bedrooms
1
Bathrooms
1
Features
Private setting, Irregular lot size
Listing Contract Date
2024-12-28
Municipal ID
006-256-198
Ownership Type
Freehold
# of Parking Spaces
2
Plan
VIP3296
Property Type
Single Family
Transaction Type
For sale
Views
Mountain view
Zoning Description
Rural
Zoning
Rural residential
Building
Appliances
Dryer, Stove, Refrigerator, Washer
Architectural Style
Westcoast
Constructed Date
2016
Cooling Type
None
Heating Fuel
Electric
Heating Type
Baseboard heaters
Type
House
Rooms
Room
Level
Dimensions
Notes
Entrance
Lower level
4' x 6'
Bathroom
Main level
4-Piece
Primary Bedroom
Main level
15' x 14'
Kitchen
Main level
16' x 9'
Living room
Main level
16' x 15'
Parking Spaces
Name
Spaces
Garage
Land
Total Size
21.66 acres
Acreage
Yes
Size of Irregular Land
21.66
Terms of Use
Please review and agree to the following terms of use to access the listing content:
REALTOR®, REALTORS®, and the REALTOR® logo are certification marks that are owned by REALTOR® Canada Inc. and licensed exclusively to The Canadian Real Estate Association (CREA). These certification marks identify real estate professionals who are members of CREA and who must abide by CREA's By-Laws, Rules, and the REALTOR® Code. The MLS® trademark and the MLS® logo are owned by CREA and identify the quality of services provided by real estate professionals who are members of CREA;
The information contained on this site is based in whole or in part on information that is provided by members of CREA, who are responsible for its accuracy. CREA reproduces and distributes this information as a service for its members and assumes no responsibility for its accuracy;
This website is operated by a brokerage or salesperson who is a member of CREA;
The listing content on this website is protected by copyright and other laws, and is intended solely for the private, non-commercial use by individuals. Any other reproduction, distribution or use of the content, in whole or in part, is specifically forbidden. The prohibited uses include commercial use, "screen scraping", "database scraping", and any other activity intended to collect, store, reorganize or manipulate data on the pages produced by or displayed on this website.
The information contained on this site is based in whole or in part on information that is provided under copyright by the Toronto Regional Real Estate Board (TRREB) or by members of The Canadian Real Estate Association (CREA), who are responsible for its accuracy. TRREB and CREA reproduce and distribute this information as a service for their members and assume no responsibility for its accuracy. All information displayed is believed to be accurate but is not guaranteed and should be independently verified. No warranties or representations of any kind are made with respect to the accuracy of such information. The information provided herein must only be used by consumers that have a bona fide interest in the purchase, sale, or lease of real estate and may not be used for any commercial purpose or any other purpose.