Welcome to this beautifully designed home located in the sought-after Kensington community, where everyday conveniences are just a 5-minute drive away. Enjoy close proximity to grocery stores, restaurants, medical offices, fitness facilities, and recreation centres—perfect for a balanced and connected lifestyle. As you enter, you are greeted by a spacious tiled foyer that sets the tone for the home’s thoughtful layout. The main floor features an open-concept living and dining area, ideal for both everyday living and entertaining. Tucked just off the dining space, the kitchen offers added privacy while remaining seamlessly connected. This level also includes two well-appointed bedrooms and a modern four-piece common bathroom. The upper level is dedicated to the primary retreat, featuring a generous bedroom, a walk-in closet, and a large ensuite with dual Jack-and-Jill sinks—designed for both comfort and functionality. All bedrooms are carpeted for added warmth and comfort. Throughout the home, you’ll find quality finishes, including quartz countertops and soft-close cabinetry. The living room is further enhanced by a stylish feature wall and a cozy fireplace, creating a welcoming focal point. Buyers still have the opportunity to personalize this home. Choose your preferred exterior finishes, including stonework and vinyl siding colours, as well as interior selections such as paint, countertop designs, cabinetry colours, carpet, flooring, and more. Construction is ongoing, meaning the earlier you secure the home, the more options you’ll have to truly make it your own. An optional basement development is available, offering exceptional flexibility and income potential. This upgrade includes a two-bedroom legal suite, along with an additional bedroom and bathroom on the owner’s side—an ideal setup for rental income or multi-generational living. Appliances are not included; however, the builder will provide a $4,000 appliance credit. (id:47421)
Interested in obtaining the full price history for this property? Contact us!Contact us! Our real estate professionals would be happy to provide a complete listing history with historical sold prices and dates.
Detailed Information
Bedrooms
3
Bathrooms
2
Lot
34 x 0 ft
Features
Treed, Rectangular, Double width or more driveway, Sump Pump
Listing Contract Date
2026-01-04
Ownership Type
Freehold
Property Type
Single Family
Structures
Deck
Transaction Type
For sale
Building
Appliances
Garage door opener remote(s)
Architectural Style
Bi-level
Basement Development
Unfinished
Basement Type
Full (Unfinished)
Constructed Date
2026
Construction Style (Attachment)
Detached
Fireplace Fuel
Electric
Fireplace Present
Yes
Fireplace Type
Conventional
Heating Fuel
Natural gas
Heating Type
Forced air
Type
House
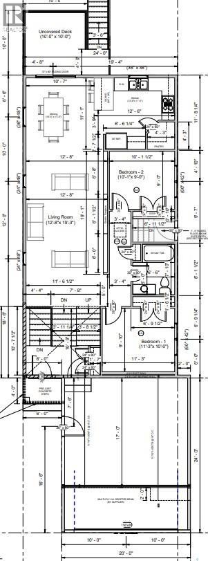
Rooms
Room
Level
Dimensions
Notes
Bedroom
Second level
15ft x 13ft
4pc Ensuite bath
Second level
11ft x 5ft
Other
Basement
43ft x 21ft
Foyer
Main level
4ft x 10ft
Living room
Main level
19ft x 12ft
Dining room
Main level
11ft x 10ft
Kitchen
Main level
11ft x 12ft
Bedroom
Main level
11ft x 9ft
4pc Bathroom
Main level
6ft x 7ft
Bedroom
Main level
9ft x 10ft
Parking Spaces
Name
Spaces
Attached Garage
Parking Space(s)
4
Land
Total Size
4122.84 square feet
Size of Irregular Land
4122.84
Terms of Use
Please review and agree to the following terms of use to access the listing content:
REALTOR®, REALTORS®, and the REALTOR® logo are certification marks that are owned by REALTOR® Canada Inc. and licensed exclusively to The Canadian Real Estate Association (CREA). These certification marks identify real estate professionals who are members of CREA and who must abide by CREA's By-Laws, Rules, and the REALTOR® Code. The MLS® trademark and the MLS® logo are owned by CREA and identify the quality of services provided by real estate professionals who are members of CREA;
The information contained on this site is based in whole or in part on information that is provided by members of CREA, who are responsible for its accuracy. CREA reproduces and distributes this information as a service for its members and assumes no responsibility for its accuracy;
This website is operated by a brokerage or salesperson who is a member of CREA;
The listing content on this website is protected by copyright and other laws, and is intended solely for the private, non-commercial use by individuals. Any other reproduction, distribution or use of the content, in whole or in part, is specifically forbidden. The prohibited uses include commercial use, "screen scraping", "database scraping", and any other activity intended to collect, store, reorganize or manipulate data on the pages produced by or displayed on this website.
The information contained on this site is based in whole or in part on information that is provided under copyright by the Toronto Regional Real Estate Board (TRREB) or by members of The Canadian Real Estate Association (CREA), who are responsible for its accuracy. TRREB and CREA reproduce and distribute this information as a service for their members and assume no responsibility for its accuracy. All information displayed is believed to be accurate but is not guaranteed and should be independently verified. No warranties or representations of any kind are made with respect to the accuracy of such information. The information provided herein must only be used by consumers that have a bona fide interest in the purchase, sale, or lease of real estate and may not be used for any commercial purpose or any other purpose.