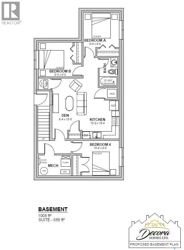
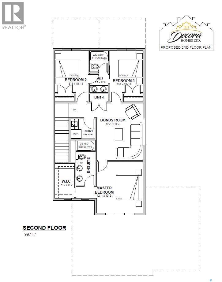
Welcome to this new home by Decora Homes, offering a well-planned layout with excellent income potential through a legal 2-bedroom secondary suite, backing onto green space for added privacy. The main floor features an open-concept living, dining, and kitchen area with a pantry; and providing direct access to a covered deck. This level also includes a den, mudroom, and welcoming foyer, designed for everyday functionality. The second floor offers a primary bedroom with a walk-in closet and 5-piece ensuite, along with two additional bedrooms connected by a Jack-and-Jill bathroom. A bonus room and upper-level laundry complete this level. The basement includes a legal 2-bedroom secondary suite with a full kitchen, living area, 4-piece bathroom, and in-suite laundry. A separate fourth bedroom is reserved for the main unit’s use. Additional features include a triple attached garage, concrete triple driveway, stainless steel appliances for both the main residence and suite, and front landscaping. GST & PST included with rebates to the builder. Covered under the Progressive Home Warranty Program. Plans, prices, and specifications are subject to change. Photos for reference only. (id:47421)
Interested in obtaining the full price history for this property? Contact us!Contact us! Our real estate professionals would be happy to provide a complete listing history with historical sold prices and dates.
Detailed Information
Bedrooms
6
Bathrooms
4
Lot
42 x 0 ft
Features
Sump Pump
Listing Contract Date
2026-01-22
Ownership Type
Freehold
Property Type
Single Family
Transaction Type
For sale
Building
Appliances
Washer, Refrigerator, Dishwasher, Dryer, Microwave, Garage door opener remote(s), Stove
Architectural Style
2 Level
Basement Development
Finished
Basement Type
Full (Finished)
Constructed Date
2026
Construction Style (Attachment)
Detached
Cooling Type
Central air conditioning
Fireplace Fuel
Electric
Fireplace Present
Yes
Fireplace Type
Conventional
Heating Fuel
Natural gas
Heating Type
Forced air
Stories Total
2
Type
House
Rooms
Room
Level
Dimensions
Notes
Primary Bedroom
Second level
13 ft 3 in x 12 ft 1 in
5pc Ensuite bath
Second level
x x x
Bedroom
Second level
10 ft 11 in x 8 ft 8 in
Bedroom
Second level
10 ft 11 in x 8 ft 8 in
5pc Bathroom
Second level
x x x
Bonus Room
Second level
14 ft 8 in x 12 ft 1 in
Laundry room
Second level
5 ft 2 in x 6 ft 3 in
Bedroom
Basement
9 ft 5 in x 10 ft
Kitchen/Dining room
Basement
10 ft 4 in x 10 ft
Living room
Basement
10 ft 6 in x 8 ft 4 in
Bedroom
Basement
9 ft 4 in x 9 ft 8 in
Bedroom
Basement
9 ft 3 in x 9 ft 3 in
4pc Bathroom
Basement
x x x
Laundry room
Basement
x x x
Living room
Main level
13 ft 3 in x 12 ft
Dining room
Main level
13 ft 6 in x 10 ft 11 in
Kitchen
Main level
12 ft 2 in x 13 ft
Foyer
Main level
8 ft 8 in x 5 ft 7 in
Den
Main level
8 ft 10 in x 8 ft 8 in
Mud room
Main level
8 ft 10 in x 5 ft 4 in
3pc Bathroom
Main level
x x x
Parking Spaces
Name
Spaces
Attached Garage
Parking Space(s)
6
Land
Total Size
5227 square feet
Landscape Features
Lawn
Size of Irregular Land
5227.00
Terms of Use
Please review and agree to the following terms of use to access the listing content:
REALTOR®, REALTORS®, and the REALTOR® logo are certification marks that are owned by REALTOR® Canada Inc. and licensed exclusively to The Canadian Real Estate Association (CREA). These certification marks identify real estate professionals who are members of CREA and who must abide by CREA's By-Laws, Rules, and the REALTOR® Code. The MLS® trademark and the MLS® logo are owned by CREA and identify the quality of services provided by real estate professionals who are members of CREA;
The information contained on this site is based in whole or in part on information that is provided by members of CREA, who are responsible for its accuracy. CREA reproduces and distributes this information as a service for its members and assumes no responsibility for its accuracy;
This website is operated by a brokerage or salesperson who is a member of CREA;
The listing content on this website is protected by copyright and other laws, and is intended solely for the private, non-commercial use by individuals. Any other reproduction, distribution or use of the content, in whole or in part, is specifically forbidden. The prohibited uses include commercial use, "screen scraping", "database scraping", and any other activity intended to collect, store, reorganize or manipulate data on the pages produced by or displayed on this website.
The information contained on this site is based in whole or in part on information that is provided under copyright by the Toronto Regional Real Estate Board (TRREB) or by members of The Canadian Real Estate Association (CREA), who are responsible for its accuracy. TRREB and CREA reproduce and distribute this information as a service for their members and assume no responsibility for its accuracy. All information displayed is believed to be accurate but is not guaranteed and should be independently verified. No warranties or representations of any kind are made with respect to the accuracy of such information. The information provided herein must only be used by consumers that have a bona fide interest in the purchase, sale, or lease of real estate and may not be used for any commercial purpose or any other purpose.