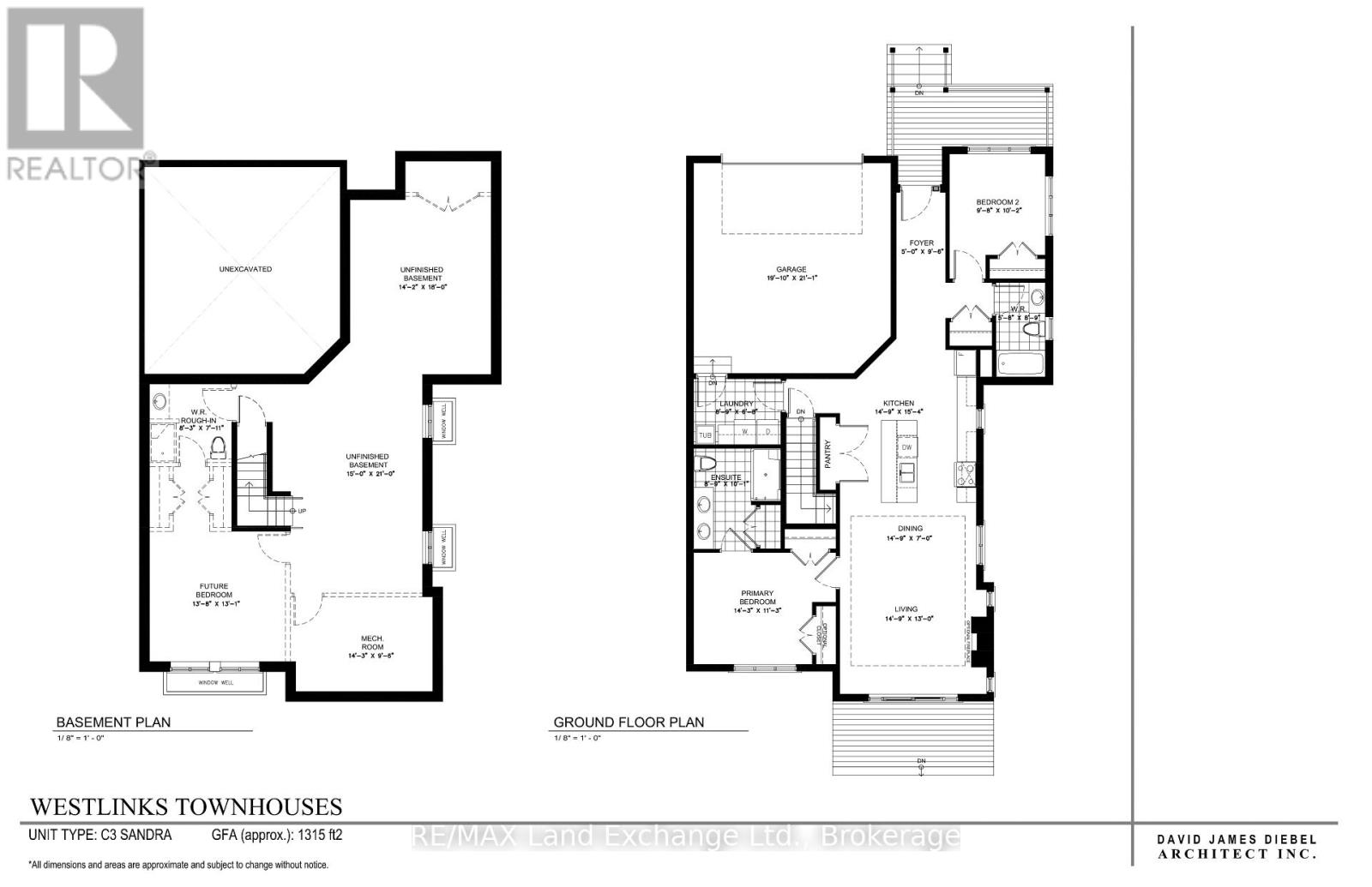
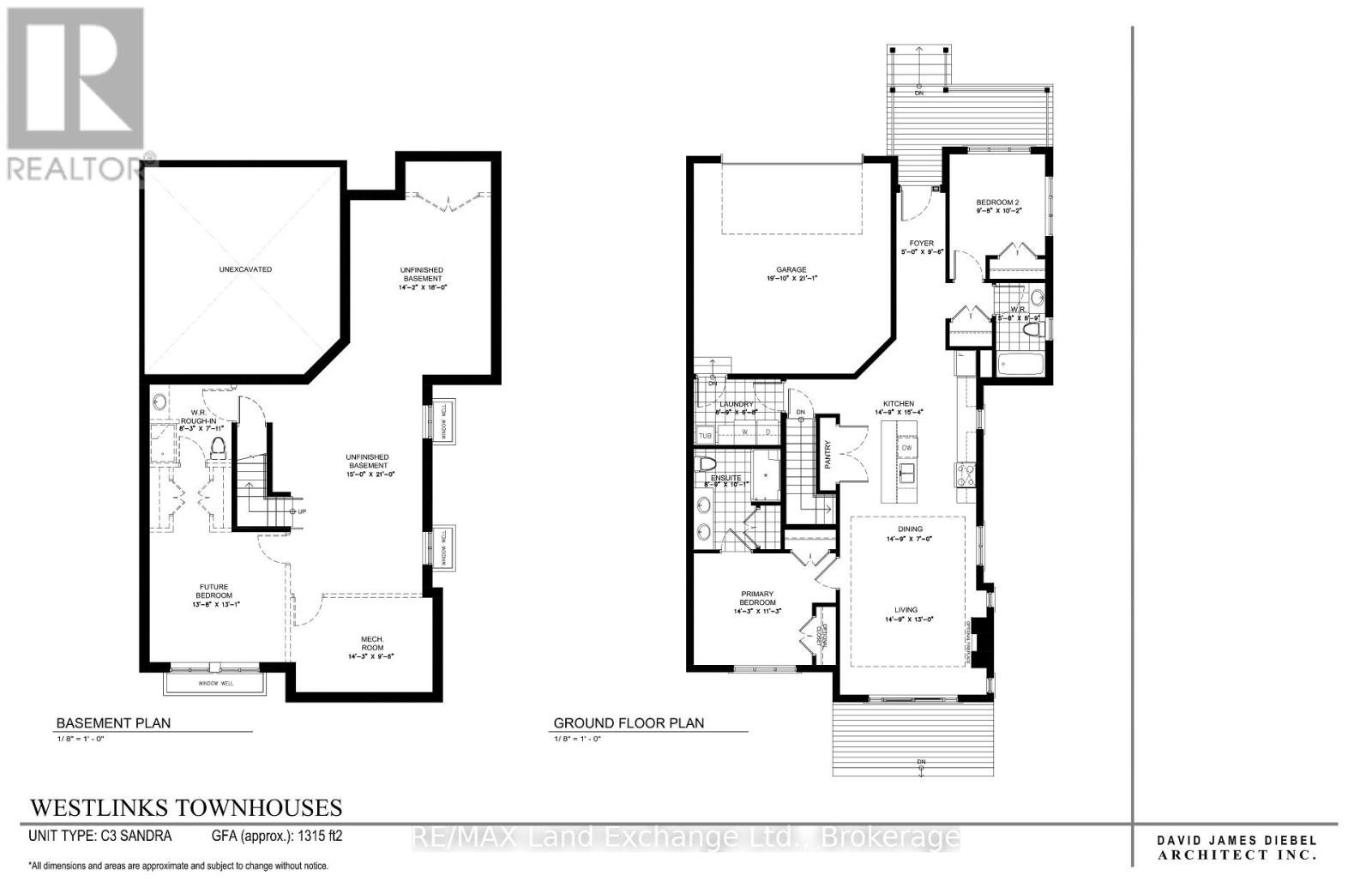
LIMITED TIME ONLY: FREE condo fees for the first THREE years - an $18,000 value! Sports Club membership is included in condo fees for $161.59 and can be transferred. The remaining condo fees are $338.41/month. Welcome to the Westlinks Development-Phase 3 Condominium Townhouses. Block F Unit # 22 (see site plan). The SANDRA model is a bright exterior unit with a double-car garage. It offers a spacious plan with an open concept kitchen, dining area, living room, plus two bedrooms, an ensuite bathroom, a four-piece guest bathroom, laundry & large foyer. There is a full, unfinished basement with a bathroom rough-in. Ask about the basement finishing package and other additional upgrade selections. If you act fast, you can personalize your home before construction starts. Located on the edge of Port Elgin, close to all amenities, Westlinks is a front porch community suitable for all ages. There is a 12-hole links-style golf course, a tennis/pickle-ball court, workout/fitness room, all with membership privileges and included in the condo fees. Serviced by a private condo road, natural gas, municipal water and sewer. The photos are not of this property but of another finished model, which will give you a sense of the floor plan and finishes. The exterior photo is the builder's conceptual drawing. Property taxes and property assessment are to be determined. Don't miss your chance to secure one of these condos at the Westlinks development. (id:47421)
Interested in obtaining the full price history for this property? Contact us!Contact us! Our real estate professionals would be happy to provide a complete listing history with historical sold prices and dates.
Detailed Information
Bedrooms
2
Bathrooms
2
Amenities Nearby
Beach, Golf Nearby, Marina, Hospital, Schools
Community Features
Pets Allowed With Restrictions
Equipment
Water Heater
Features
Sump Pump
Listing Contract Date
2025-05-15
Location Description
Cross Streets: Gustavus. ** Directions: GO EAST ON GUSTAVUS ST., TURNS INTO BRUCE COUNTY RD. 17, WESTLINKS DEVELOPMENT IS ON THE RIGHT, TURN RIGHT ONTO WESTLINKS DRIVE, TURN LEFT ONTO FAIRWAY LANE, ON THE LEFT SIDE OF FAIRWAY LANE TO PRIVATE CONDO ROAD EAGLE COURT - last block on rt side.
Maintenance Fee Payment Frequency
Monthly
Maintenance Fee Type
Common Area Maintenance, Insurance
Management Company
Home Property Management
Ownership Type
Condominium/Strata
# of Parking Spaces
2
Property Type
Single Family
Rental Equipment
Water Heater
Transaction Type
For sale
Zoning Description
R415
Building
Age
New building
Amenities
Visitor Parking, Exercise Centre
Appliances
Water Heater - Tankless, Water meter
Architectural Style
Bungalow
Basement Development
Unfinished
Basement Type
Full (Unfinished)
Cooling Type
None, Air exchanger
Exterior Finish
Vinyl siding
Foundation Type
Poured Concrete
Heating Fuel
Natural gas
Heating Type
Forced air
Stories Total
1
Type
Row / Townhouse
Rooms
Room
Level
Dimensions
Notes
Kitchen
Main level
4.54 m x 4.69 m
Dining room
Main level
4.54 m x 2.13 m
Living room
Main level
4.54 m x 3.96 m
Primary Bedroom
Main level
4.35 m x 3.44 m
Bedroom 2
Main level
2.99 m x 3.1 m
Laundry room
Main level
2.71 m x 2.07 m
Parking Spaces
Name
Spaces
Attached Garage
Garage
Land
Amenities
Beach, Golf Nearby, Marina, Hospital, Schools
Terms of Use
Please review and agree to the following terms of use to access the listing content:
REALTOR®, REALTORS®, and the REALTOR® logo are certification marks that are owned by REALTOR® Canada Inc. and licensed exclusively to The Canadian Real Estate Association (CREA). These certification marks identify real estate professionals who are members of CREA and who must abide by CREA's By-Laws, Rules, and the REALTOR® Code. The MLS® trademark and the MLS® logo are owned by CREA and identify the quality of services provided by real estate professionals who are members of CREA;
The information contained on this site is based in whole or in part on information that is provided by members of CREA, who are responsible for its accuracy. CREA reproduces and distributes this information as a service for its members and assumes no responsibility for its accuracy;
This website is operated by a brokerage or salesperson who is a member of CREA;
The listing content on this website is protected by copyright and other laws, and is intended solely for the private, non-commercial use by individuals. Any other reproduction, distribution or use of the content, in whole or in part, is specifically forbidden. The prohibited uses include commercial use, "screen scraping", "database scraping", and any other activity intended to collect, store, reorganize or manipulate data on the pages produced by or displayed on this website.
The information contained on this site is based in whole or in part on information that is provided under copyright by the Toronto Regional Real Estate Board (TRREB) or by members of The Canadian Real Estate Association (CREA), who are responsible for its accuracy. TRREB and CREA reproduce and distribute this information as a service for their members and assume no responsibility for its accuracy. All information displayed is believed to be accurate but is not guaranteed and should be independently verified. No warranties or representations of any kind are made with respect to the accuracy of such information. The information provided herein must only be used by consumers that have a bona fide interest in the purchase, sale, or lease of real estate and may not be used for any commercial purpose or any other purpose.